在过去的三十年里,建筑师们一直试图摆脱“鞋盒式设计”音乐厅的统治。波尔图文化剧院试图以另一种方式重振传统音乐厅:重新定义神圣的内部与外面的公众之间的关系,而不是与这种传统形状不可避免的声学优势作斗争。
波尔图音乐厅是波尔图国家交响乐团的新家,位于城市中心历史上著名的环形山区域的公共广场中。建筑具有非常具有识别性的外观,由白色混凝土构成,在这一建造地标建筑的时代让人感到坚实而可靠。
在内部,一个升起的1300座鞋盒状音乐厅在两侧都有玻璃立面,让音乐厅与城市进行了连接,自身便成为了舞台的一部分。波尔图音乐厅以一种创新的方式展示了自己的内部,同时为城市本身带来了一些光明。
找到音乐之家是OMA思维发展的关键;。我们选择不在环绕着圆形大厅的旧建筑环中建造新的音乐厅,而是在Rotunda公园前面的一个石灰华铺设的高原上建造一座独立的建筑,毗邻工人阶级区,位于办公区域的旁边。因为这一概念,象征、可见性以及可达性用同一种方式解决了。
除了大礼堂被设计为从建筑物的坚固形式端对端挖空的简单质量,Casa da Musica还包含一个更小,更灵活的表演空间,没有固定的座位,十个排练室,录音工作室,教育区,餐厅,露台,酒吧,贵宾室,其中还有行政空间、以及一个可以容纳600辆车的停车空间。
建筑的另一方面是创造性地利用了材料和颜色:除了大礼堂两端独特的窗帘状玻璃墙外,墙壁采用胶合板覆盖,金色浮雕木材图案,透视呈现戏剧性的震撼;贵宾区的手绘瓷砖描绘了传统的田园风光,而屋顶露台则采用几何黑白瓷砖图案;公共区域的地板有时用铝材铺成覆盖。
设计师故意没有设计一个巨大的大厅;相反,而是利用连续的公共路线通过楼梯,平台和自动扶梯连接大礼堂周围的空间。在波尔图于2001年被选为欧洲的两大文化中心之后,当地的文化部长创立了波尔图2001组织,这一组织用于发起和筹备城市中的文化活动。在此背景下,五个国际建筑实践,其中包括OMA,被邀请参加限制性比赛,以便在波尔图的历史中心重新定义新的音乐厅。
城市规划由于波尔图的这一区域完全没有进行过开发,这一部分仍然是一个“完整”的城市“,OMA选择不将新的音乐厅表达为Rotunda da Boavista周围的小型圆形墙的一部分,而是创造一个站立在新的,更亲密的单独建筑广场与Rotunda da Boavista的历史公园相连,包含了三个城市街区所包围。通过这一概念,象征主义,可见性和访问权问题以一种姿态得以解决。
通过连续性和对比度,在我们介入之后,Rotunda da Boavista的公园不再仅仅是旧波尔图和新波尔图之间的枢纽,而是成为两个不同城市模型模式之下的一种积极碰撞。
声学设计
声学本世纪已经看到了一种建筑上疯狂的逃离臭名昭着的“鞋盒”形音乐厅的暴政束缚。然而,在研究了现有音乐厅的音质后,我们不得不与我们的声学专家一起总结,世界上最好的大厅都还是传统经典的鞋盒形状。这给我们开始思考下了一些问题:在音乐厅等传统类型的情况下,我们或者建筑师应该如何面对音乐厅这样一种非常传统的建筑形式进行创新性的设计?
建筑概念
建筑概念大多数文化机构只服务于人口的一部分。大多数人都知道他们的外形,只有少数人知道里面发生了什么。OMA将这种关系当成是内部的音乐厅与外部的公共空间之间的关系进行处理,因此将内部的两个鞋盒状的音(BIM)乐厅进行整合,成为了一个好像被切了角的独立的形状。该建筑在没有教学的情况下向城市展示其内容;与此同时,这座城市以前所未有的方式暴露在公众面前,进行了全新的这座城市内部空间的展示。
而在公共广场和音乐厅之间的“剩下的空间”中包含了所有服务空间,大厅、餐厅、露台、技术空间以及垂直交通空间。一条连续的公共路线通过楼梯,平台和自动扶梯连接所有公共功能和位于大礼堂周围的“剩余空间”:建筑成为建筑冒险。循环创造了使用建筑物进行节日同时表演的可能性,一座音乐之家。
该建筑提供大量的排练室,独奏室和更衣室,以容纳波尔图爱乐乐团,并为来访和嘉宾表演提供额外的设备间等房间。在设计阶段,OMA专门为波尔图文化剧院研究了现有和葡萄牙材料的新材料和新应用,例如音乐厅中用作玻璃的材料,以及不同房间中地砖的材料,还有椅子、天蓬和墙壁的材料。
结构设计
建筑师为波尔图文化剧院的呈现的视觉和由其醒目的建材来定义的内部空间,室内传统形式好像被抽离了一般。建筑物400mm厚的切面外壳和主礼堂的两个1m厚的墙壁是建筑物的主要承载和稳定系统,它能承受很大的重量并具有很好的稳定性。观众席的墙壁作为内部隔膜,在纵向方向上将不同的厅堂连接在一起。Arup和OMA研究了建筑外墙表皮的混凝土材料。
模型
图纸
总平面图
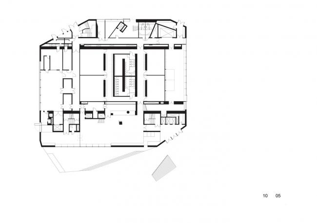
标准层平面图
地下一层平面图
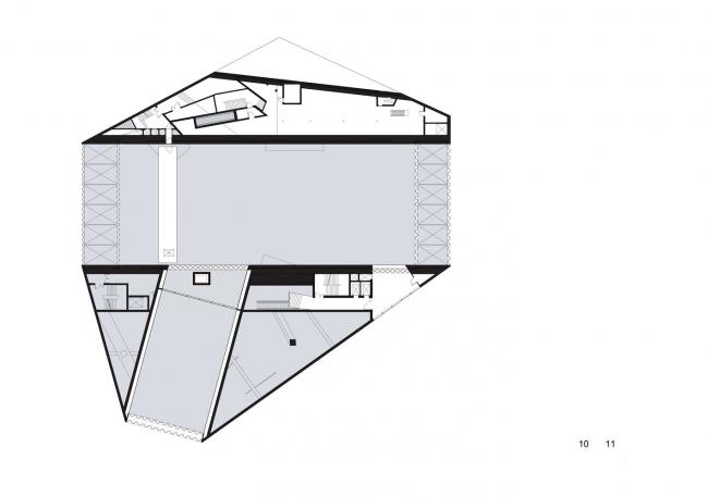
一层平面图
三层平面图
四层平面图
五层平面图
六层平面图
八层平面图
东北立面图
西南立面图
西北立面图
东南立面图
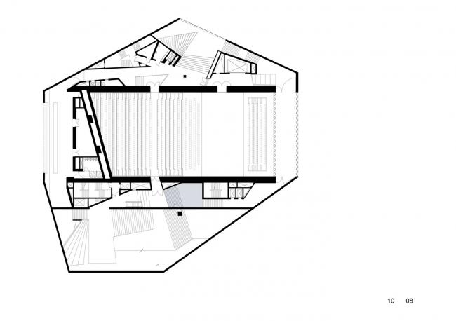
剖面图
剖面图
表皮分析图示
项目信息
建筑师:OMA建筑师事务所
地点:Avenida da Boavista 604,4050-104 波尔图,葡萄牙
主持建筑师:Rem Koolhaas和Ellen van Loon
项目建筑师:阿德里安娜费舍尔,米歇尔霍华德
总建筑面积:22000.0平方米
项目年份:2005年
建筑摄影:Philippe Ruault
制造商:Danpal,thyssenkrupp,Jofebar
当地建筑师:ANC Architects, Jorge Carvalho, Teresa Novais
项目协调:Cecil Balmond, Rory McGowan (Arup) – Rui Furtado, Marco Carvalho (Afa)
防火工程:Arup fire, George Faller Code Consultancy Code Consultancy
声学设计:TNO Eindhoven and Dorsser Blesgraaf, Renz van Luxemburg, Theo Raijmakers
室内 窗帘:Inside Outside, Petra Blaisse, Peter Niessen, Marieke van den Heuvel(BIM建筑), Mathias Lehner
透视图:Ducks Scéno, Michel Cova, Stephan Abromeit, Aldo de Sousa
立面:Robert Jan van Santen; ARUP facades
幕墙工程:ABT Arnhem (NL), Rob Nijsse Auditorium
椅子Maarten van Severen
门厅家具Daciano da Costa, António Sena da Silva, Leonor Álvares de Oliveira, Fernando Távora

BIM建筑网




















































