该项目位于布鲁塞尔荷兰地区的西部,是一个非正式的文化研究中心,以及周边的各种配套设施。而比利时迪尔贝克 MWD的文化研究中心进一步加强了这种建筑带给城市的作用影响力,为此提供音乐,戏剧和舞蹈方面的教育课程和活动空间,此外还包含一个正式的礼堂剧院供社区的人们使用。
城市意义上的挑战
这个新建建筑项目场地位于迪尔贝克市的中心地带,并且处于一个复杂困难的场地环境之中,其中有各种各样的对比情况:例如场地南向,是市内的主广场(Gemeenteplein),并且链接着当地的市政厅和餐馆商业街; 西侧则是CC韦斯特兰德文化中心,由设计师A. Hoppenbrouwers在野兽主义的高峰设计的纪念建筑代表作; 场地北向是,名为Wolfsputten的自然生态林地保护区; 东边是一群紧凑的郊区别墅,有着农场的典型的倾斜屋顶样式。所以我们遇到的城市的挑战与问题就是是如何协调不同的周边环境与如何处理建筑之间的关系,同时设计创造出具有自身品质的建筑。
首先,是建筑体量与形态的考量与设计。新建的建筑在房屋的体量规模上应该和西侧巨大的CC Westrand韦斯特兰德文化中心存在一种逐步过渡的关系处理。然后是建筑形式。沿着街道上一系列的特殊材质的山墙可以反映出建筑对面的另一侧的房屋,并由此后来变成了一个看起来像韦斯特兰德文化中心对面的巨大悬挑结构。第三,是功能的设计。建筑的唯一的入口位于Westrand一侧。在其他周边没有任何额外的出入口提供,无论是工作人员流线的还是自然的通用入口。只是面向文化中心的一侧,我们将礼堂的体量从地面升起,形成一个通向学院入口的有遮掩的公共空间,围合出了一个人界定空间。最后,我们用具体的图像,以及动态立面创造了光学的视觉效果。如果你走向树木,你会看到反射出来的树木呈象。这就是场地北向名为Wolfsputten的自然生态林地保护区。如果您向相反方向行走,则会看到Hoppenbrouwers的色调混搭立面。
设计CC Westrand文化中心的建筑师Alfons Hoppenbrouwers是一位研究色调与色彩的专家。他花了大部分时间画画,事实上,当你走向Hoppenbrouwers时,新建筑的外立面就是基于他原有的一幅画作设计而成的。转化成二维平面作品是则是数学和色彩的双重结合。通过线条,角度,比例,(BIM培训)几何性,韵律,颜色色调和纹理质感的多种实践。同时这些也是作曲的创作元素,而且事实上他的几幅画作也都是他对音乐作品的诠释,例如构成了研究文化中心的立面形式,也是经典音乐的色彩表达作品。这个经典之作来源与15世纪佛兰芒语的复调音乐家约翰内斯·奥克海姆(Johannes Ockeghem)的36首和旋。
其余的立面我们复刻和重现了相同的韵律与节奏,但在具有不同纹理质感的金属面板中,反映了天空和森林的呈象。
功能上的灵活性设计
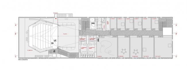
当大悬挑的礼堂升到首层的公共空间之上时,人们经过透明的入口空间通向主大厅。因此,人们便来到了建筑物的中央空间,这有助于分隔礼堂的公共空间的功能和学院里需求更加私密的空间分区。但是两者共同分享主要的服务空间,其中包含接待区域,衣帽间,男女厕所和更衣室等等,人们也能够直接到达到顶层的礼堂舞台。教室,芭蕾舞教室和管弦乐室分为两层,中央的枢纽空间包括结构,技术服务和交通等后勤分区的类别,沿着宽敞的走廊,可以更改挪移三角钢琴的位置并重新根据所需的要求来组织各个教室的功能分区。
使用者的考量
场所的变通和考量也是项目的关键之一。礼堂下面的公共空间就是一个明显的例子:即使在建筑物建成之前,这个空间也被当地协会开放给公众用于周末活动。同时在大堂的内部空间,大堂可用于接待,可通过直接更改门从教师的厨房获得一定的空间支持。在建筑的另一端有另一个可以多用处使用的场地,这是一个带长凳和面向森林景观的双层楼梯间。很容易想象人们坐在长椅上休憩,或许等待上课,或者有空白的空间让学生完成一定的练习,或者只是与同行人交流谈话等等。不同的行为发生在这个充满可变的场所内。
能源和资源
建筑体量和热惯性。紧凑的建筑布局与形态能够降低表面/体积比和一定的能源能量损耗。在建筑物内部我们可以看到薄的承重墙,为建筑提供良好的热惯性,并在外面覆盖厚厚的连续绝缘覆层,在有效的构件位置内完成低碳环保的建筑设计。此外这类建材之间的隔离薄板对于热惯性和必要的隔音(BIM学习)都是很大的效果。
自然光照。
建筑的外窗布置成能够提供恰到好处的漫射日光,同时最大限度地减少热损失消耗。东南立面上的鳍状空间能够捕捉日照光线,以不同的角度在室内空间反射。内部装饰主色调为白色,以反射各个方向的光线。即使是礼堂人们也能在自然光下工作。选择建筑材料以确保最大程度地尊重环境低碳环保。水平结构采用层压木材,并且完全通过了FSC级的认证要求。并且建筑的结构细节简单,没有多余浪费的覆盖材料:表面处理也仅仅只是白色涂料,强调了涂覆材料的本身质感。雨水能够在屋顶上回收处理获,并用于建筑内部的厕所循环使用。
图纸
立面图
平面图
平面图
剖面图
体块效果图
项目信息
建筑师:卡洛斯阿罗约
建筑地点:Dilbeek,Belgica Arquitectos Asociados ELD
合作伙伴建筑师:Contratista Kumpen CálculodeEstructuras
甘特诺伯特普罗沃斯特:CálculodeInstalaciones Ingenium Engineering,Brujas Cliente Gemeentebestuur Dilbeek
建筑面积:0.0平方米
项目年份:2012年
建筑摄影师:MigueldeGuzmán
制造商:Alucoil

BIM建筑网



























