庭院看西厢房夜景
环境与历史
从清末到民国,前门大街既是全国最大的物流交通枢纽又是一个繁华的商业中心,整个大街店铺林立,汇集着南来北往的大量人潮和各色货品。随着近年来北京旧城区的复兴与更新,前门地区的西打磨厂、鲜鱼口、大栅栏以及正阳门各处,都经历了一系列重要的改造而变得焕然一新,形成了中国传统、殖民折衷以及现代元素相融合渗透的独特城市风貌。
长巷三条沿街入口
正房立面细部
四合院式洋房是前门独特的地域性居住建筑类型,揉合欧洲折衷主义风格和中国北方传统民居的样式,共同构成老北京前门商业区城市肌理的底纹。
庭院入口看西厢房
庭院
东厢房看庭院夜景
项目所在的长巷三条胡同,总长约400米,宽约3米;北起西打磨厂街,东南至长巷五条。明称长巷三条,曾有长美,金溪,临江,南城等会馆。周边部分房屋经过修缮后,旧貌换新颜,成为时尚文化展示的窗口;但也有相当的老屋仍处于残破不堪,年久失修的状态。而改造前的原宅,正是夹藏在这些老屋中的一座两层清代四合院。
长巷改造前
庭院看南墙夜景
原宅与改变
原宅院落由两层三开间的正房与单层双开间的东西厢房错落有致地组成,与南向院墙共同形成一个方正的庭院。房屋是由旧时常见的木构框架与砖墙围护支撑结构,改造基本沿用了清代的庭院布局并保留了原状木结构。将原有建筑内部的细小隔断打通重新构筑了灵活的使用空间。
长巷三条沿街外景
三开间正房夜景
庭院看东厢房
西厢房看庭院
西厢房看正房夜景
三开间正房仰视
庭院看西厢房入口夜景
正房夜景
西厢房入口
庭院入口夜景
在西侧厢房与正房的邻接位置增设钢质楼梯,同时增设无围护的避雨(BIM学习)棚架,从而解构性地把首层到二层的新旧功能序列垂直性地串联起来,嫁接成为一栋庭院相间、内外相连的立体院落。通过局部增加外窗和采光庭提升了整体的自然采光及通风;同时扩展了卫生间的数量,既满足了初期办公使用的需求,也为后期民宿预留了充分条件。
正房二层出入口
正房二层出入口
西厢房楼梯
西厢房露台雨棚
西厢房露台雨棚
东厢房厨房立面
理念与实现
改造设计在内部空间材料的处理手法上简洁克制:原有的主体结构经过韧性好强度高的钢结构加固补强,谨慎的保留和裸露部分木架结构,形成新旧关系的融合。历经岁月变迁的老木板被打磨出固有的木质纹路,配合传统大漆工艺做的涂料工艺为整个空间贡献了安静而温暖的元素,展现出旧宅古朴素雅的气质。淡黄色的杉木和天然石材等自然材质也延续并强调古朴的氛围与气质。而搭配着断桥铝门窗的深色金属质感,却又为这古朴粗犷的氛围增添了一份精致的现代感。
正房一层室内
正房一层室内
正房一层室内
正房二层大客房内景
正房二层大客房内景
正房二层大客房内景
正房二层中客房内景
正房二层中客房内景
正房二层中客房灯具
正房小客厅内景
城市与梦想
四合院的改造是与历史的对话,创造性地打破旧有格局和私密界限的现代空间,融合历史的记忆符号,探索出与自然能产生更多交流的生活方式,这也是对于北京旧城更新模式的新思考。
正房二层走廊
正房二层走廊
正房二层走廊
东厢房厨房
房间尽可能地与四合院中最美的庭院发生关联,光线通过宽大的落地窗辗转映射在这百年老屋的每一个角落;前厅大堂、厨房、客房、连廊、露台之间的串联转折,在露台远眺正阳门的夕阳美景也体现出传统造园的精髓。与城市街道接驳的入口保留了原有城市界面:从青条石台阶拾级而上,穿过修缮后的门廊,外面喧嚣节奏自然地转换到宁静的园林氛围里。
正房二层俯瞰西厢房
庭院入口连廊
二层露台远眺正阳门
在保持着对历史文脉的敬意中,不断的审视和发掘着建筑中被历史长河所掩盖的特质;通过精准的空间切割与划分,重整了错层的屋檐和前堂的协调关系;并探索了房屋与院落的体量关系,现状与更新的对比关系。
正房二层看庭院
图纸
长巷轴侧图
长巷剖面图
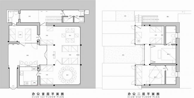
长巷办公平面
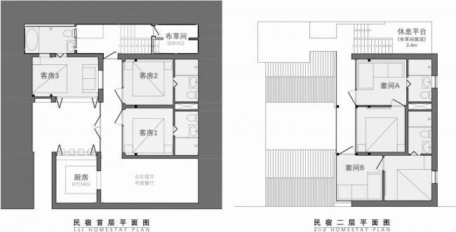
长巷民宿平面
项目信息
建筑师:索柏设计
地址:前门长巷三条, 东城区, 北京,中国
类别:住宅室内
主创建筑师:范楷, 苏波, 郁磊剑, 孙越
设计团队:叶龙胜, 罗丽花
建(BIM培训)筑面积:215.0 m2
项目年份:2019
摄影师:陈鹤
厂家:Kohler, Dandan
民宿顾问:乎几文创(北京)
施工团队:乎几文创(北京)
业主:北京紫庭文化发展有限公司

BIM建筑网
















































