为了彰显旧海港区对于未来城市规划项目的野心,由VNF(VOIES Naviguables法国)与储蓄银行德仓库和扫描电镜合作开发了一个新的项目,地点位于二次投资的码头去里昂河沿岸区域,性质上属于工业遗产,也承担这个城市建筑和文化的商业计划项目。这些码头区域最初由仓库(laSucrière,les Douanes,les Salins,la Capitainerie)、起重机、河流沿岸及其流动相连的工业元件组合而成,如今变成了一个实验性的开发区域,以创建一个朝向河流和周围的山丘的新起建筑。
▼从里昂河上看文化中心
该项目被设计为一个简单的正交“立方体”,其中雕刻了一个巨大的洞,以满足光线,空气流动和景观的需要。这个洞形成一个虚洞的空间,阳光和空气分别从河边向内和向上两侧穿过水平延展的屋顶露台,穿透整个建筑物。现有大厅旁边的长方体(Salins建筑,由三个拱门组成)强调了建筑的自主性。它采用5层混凝土支柱的常规框架(29 x 33米)大小设计而成。一个明亮的立面,看似随意的开口由另一个外立面完成,穿过能够唤起人们对于河流运动相伴的像素化图案。橙色的建筑外表皮则是指含铅涂料——一种常用于港口区域的工业颜色涂料。
▼橙色立方体上便于采光和空气流通的巨大孔洞
▼通过孔洞望向里昂河
▼孔洞向上通往屋顶露台
▼从里昂河上看橙色立方体和旁边的由三个拱组成的体量
▼采用混凝土支柱设计而成的拱形体量
▼夜色中的里昂文化中心
▼橙色含铅表皮覆盖的建筑体量
▼橙色建筑表皮
▼表皮细部
▼表皮细部
为了创造空隙,Jakob + MacFarlane进行了一系列体量变化,以及三个层次上的三个“圆锥”体进行减法的建筑的设计手段:立面的角度,屋顶和入口的高度。这些机变在共同的办公室计划内产生建筑物,其用户,场地和光源之间的空间和关系。第一次改变是基于与大厅的拱形结构,其接近度和支撑形式的直接视觉关系。它允许连接两个(BIM设计)建筑元素,并在双层高度上创建出一个新的空间关系,并且使其能够在建筑物内部受到保护。
▼建筑表面由圆弧形进行减法变化
▼进入大厅的拱门
第二个,显然是一个椭圆形结构,在河边的立面角落的水平上打破了四层的梁柱结构的建筑秩序感。这种穿孔是两条曲线相交的结果,它建立了与角度相对的几何关系。它在体积的深处形成了一个巨大的中庭,周围是一系列连接到集中办(BIM工作)公的平台的走廊空间。因此,立面的平面图向内部移动,从内部和外部构建了与光和视图的一种新的平衡关系。这与建筑物形成了对比的动态的关系,该建筑物根据观看者的透视关系位置形成多重的几何形状。
▼两条曲线相交在体积深处,形成巨大的中庭
▼建筑连接各集中办公区的走廊平台
▼从中庭转绕的曲线走廊
第三层的景观平台得益于光线和不同楼层递减变化的景观,每层都有阳台。每个平台都有无边界的景观和充足采光通过阳台渗透入室内空间,享受新鲜的欢乐气氛,这些因素共同作用为人们的相遇和非正式交流创造了合适的沟通空间。一定空间的透明度和最佳透光率经研究能够有助于使用工作空间的人们工作更加优雅和保持轻松的心态。在顶层,在背景中设有一个旷阔的平层露台,人们可以纵享欣赏到Lyon,laFo,Lyon-Confluence的城市景观。
▼通往顶层景观平台的中庭巨大孔洞
▼采光充足的顶层平台
▼从中庭向外部孔洞延伸的走廊平台
▼光线通过阳台渗透入室内
▼光线充足的室内
▼室内展品区
▼室内展品区
▼展品
▼旷阔的顶层露台
该项目是可持续发展理论的一部分典范性代表,设计师遵循了以下原则:尽可能的优化处理立面概念,使热性能和视觉舒适度与日光系数几近相同,并且可以通过水位上的热泵进行热量供给,然后通过回收高效的提取空气卡路里来替换新的空气质量。该建筑计划未来将会连接到河岸或是码头的巨大浮动梯田相连。
▼优化处理的外立面
▼室内空间
▼室内空间
图纸
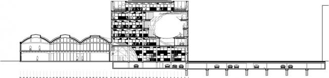
▼剖面图
▼剖面图
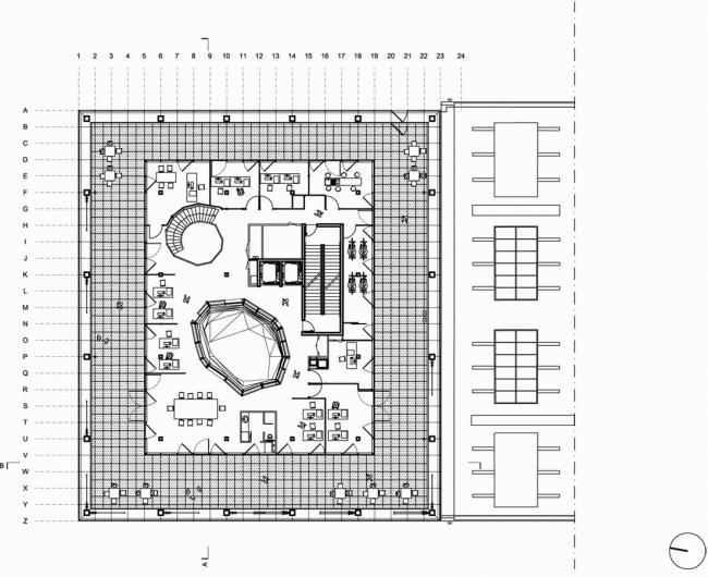
▼规划平面图
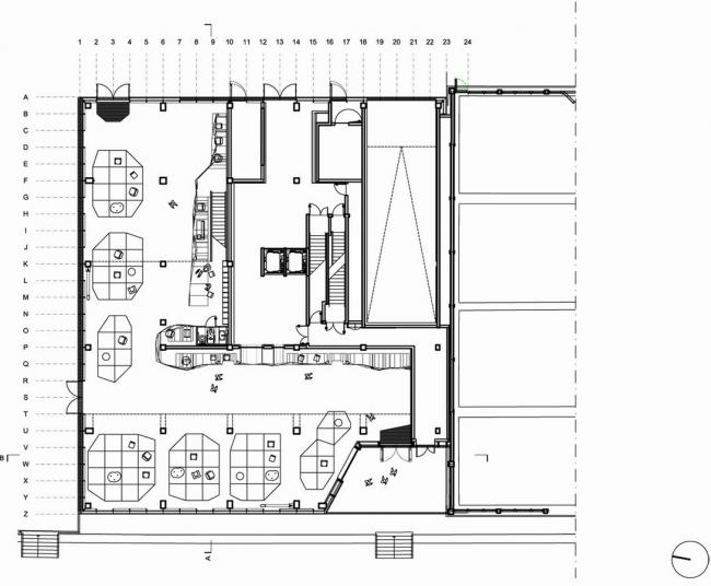
▼平面图
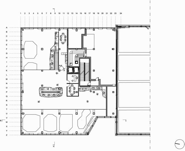
▼平面图
▼平面图
▼平面图
▼平面图
项目信息:
建筑师:雅各布+麦克法兰建筑师事务所
建筑地点:Quai Rambaud,里昂,法国
建筑类别:商业建筑
电气工程设计:AltoIngénierie
结构设计:RFR GO +
委托客户:RhôneSaôneDéveloppement
成本顾问:米歇尔福格
声学设计:Avel Acoustique
建筑面积:6300.0平方米
项目年份:2011 年
建筑摄影师:Maria Gonzalez,Roland Halbe,NicolásBorel
制造商:Otis,Saint Gobain,Gardco Lighting,Wicona,RMIG

BIM建筑网






































