Field 艺术与活动大厅是位于该市海滨的新表演艺术和社区聚集空间。该项目庆祝本地和区域艺术家,促进当地的文化丰富,并为游客、企业家和当地社区增添新的兴趣点。毗邻历史悠久的市中心,Field 艺术与活动大厅支持众多艺术组织,同时丰富了更广泛社区的生活。
Field艺术与活动大厅的执行兼艺术总监 Steve Raider-Ginsburg 评论道:“在安吉利斯港,我从未见过一座如此灵活和便捷的建筑。现在,游客可以在周一参加会议中心的商务午餐,周中在礼堂观看表演,周末在大堂参加爵士早午餐。自从我们庆祝大楼开业以来,我们几乎每天都很忙,我听到人们说,‘这是我本周第四次来到 Field 艺术与活动大厅。’随着我们开启这一新篇章,我们很高兴欢迎所有人体验这座建筑,并为疫情后的城市复兴做出贡献。能够支持太平洋西北地区的文化活力,我们感到荣幸。” LMN Architects 合伙人 Julie Adams 表示:“能够与Field艺术与活动大厅团队合作,并参与这一放大安吉利斯港海滨能量的项目,是一种特权。该项目旨在欢迎商业、文化和创意社区在一个屋檐下,成为该地区所有人的新目的地。看到观众在演出前后在大堂交流,在表演大厅观看现场演出,或在会议空间内参加活动,欣赏辽阔的海洋和山脉景观——这些都是Field大厅辛勤工作人员精心编排的结果,带来了非凡的体验。我们希望安吉利斯港社区和来访的游客能够在未来的很多季节中享受这座建筑。”
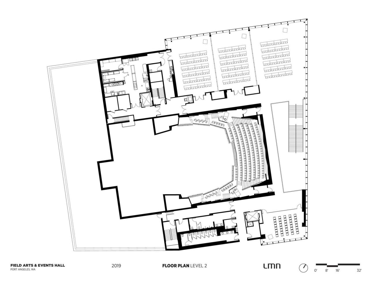
这座建筑包括一个500座的多功能演出厅,可容纳管弦乐、舞蹈、戏剧和扩音音乐活动和节日。这个亲密且高度灵活的多功能剧院旨在优化本地和区域艺术团体的广泛艺术表演。二层会议中心拥有横跨胡安·德·富卡海峡的广阔视野,成为安吉利斯港和北半岛独特的活动场地,拥有250个宴会席位——更衣室和其他后台空间、餐饮厨房和行政套房支持大楼的运营。一个美术馆、会议中心和咖啡馆补充了表演空间,并欢迎游客全年参加各种活动。
建筑的设计庆祝了安吉利斯港的历史和生态系统,让用户有机会与小镇的文化和地理环境互动,而建筑的姿态则拥抱了壮丽的自然环境。游客从街道层的城市入口进入,沿着特色楼梯上行,迎接他们的是奥林匹克山脉和胡安·德·富卡海峡的全景。城市在木材行业的历史通过整个建筑中的木质装饰和自然材料得到体现。由区域性木材构件制成的幕墙在多层大堂和会议空间提供了270度的环绕视野。木质大堂天花板与集成照明相结合,模仿了反射在邻近水面上的阳光,为公共空间提供了一种温暖感。
LMN Architects 的负责人 Cameron Irwin 评论说:“Field艺术与活动大厅坐落在奥林匹克山脉山脚下,沿着胡安·德·富卡海峡的海岸。艺术中心是计划中的艺术、文化和科学校园的首个组成部分。位于安吉利斯港历史悠久的市中心西端,该设施代表了社区对市区海滨更新的投资,以及对安吉利斯港艺术家和赞助人的承诺。建筑提供了与前街和海滨的行人连接。大堂引导游客到二层,高于街道和周围建筑,提供了从工作海滨的大型船只到奥林匹克山脉的全景视野。木质幕墙将周围景观的温暖和丰富带入建筑内部,以一种回忆该地区木材行业的现代表达。随着Field艺术与活动大厅的完工,我们开始看到它如何成为该市、该地区和华盛顿州社会基础设施的重要组成部分。”
这座建筑位于山与海的交汇处,由本地的雄心壮志和坚持不懈所孕育,展示了该地区的本地企业和创意人才,Field艺术与活动大厅将在未来几十年成为安吉利斯港和北奥林匹克半岛的文化中心。
项目图纸
△总平面图
△一层平面图
△二层平面图
项目信息
建筑师:LMN Architects
面积:3729m²
项目年份:2023
摄影师:Lara Swimmer/ESTO,LMN Architects
厂家: Armagard,Ducharme,Fundermax GmbH,Kawneer
项目团队:Julie Adams, Dean Clark, Michael Day, Alese Van Holland, Cameron Irwin, Euiseok Jeong, John Lim, Sonja Miranda, Christopher Patterson, Wendy Pautz, Todd Schwisow, George Shaw, Justin Schwartzhoff, Masako Wada
声学顾问:Jaffe Holden
围护顾问:Morrison Hershfield
景观建筑师:Walker Macy
结构工程师:Swenson Say Faget
主持建筑师:LMN Architects
委托方:Port Angeles Waterfront Center
土木工程师:Zenovic & Associates
MEP工程:Stantec
总承包商:Mortenson
灯光设计:FMS
AV 顾问:The Shalleck Collaborative
地点:美国,安吉利斯港

BIM建筑网

























