该项目的主要挑战是为当地社区提供一个有意义的教会。作为一个矛盾的悖论,旧教会的悲惨陷落之后催生了一个新的开始。新教会的设计主题因此成为复活。
与艺术家Espen Dietrichson一起(BIM学习),我们与不同的设计元素协同合作,通过该项目展示这个既定主题。最重要的元素是让日光从不同的时刻和方向开放进入到这个教堂,营造一定的氛围环境。这在一定意义上象征着希望的隐喻,在旧教堂悲惨失去之后,光明无视黑暗的黎明。
该项目外层采用核心松木,内侧采用桦木胶合板。这代表了该项目在当地所围绕的巨大松树和桦树林,设计师希望建筑仍然能够归属于该林地。核心松是天然的有机材料,在挪威的气候下会变成深色的铜绿。慢慢地松树覆层回归自然,每隔五十年就会更换一层外表面,教堂将为新一代人“重生”。
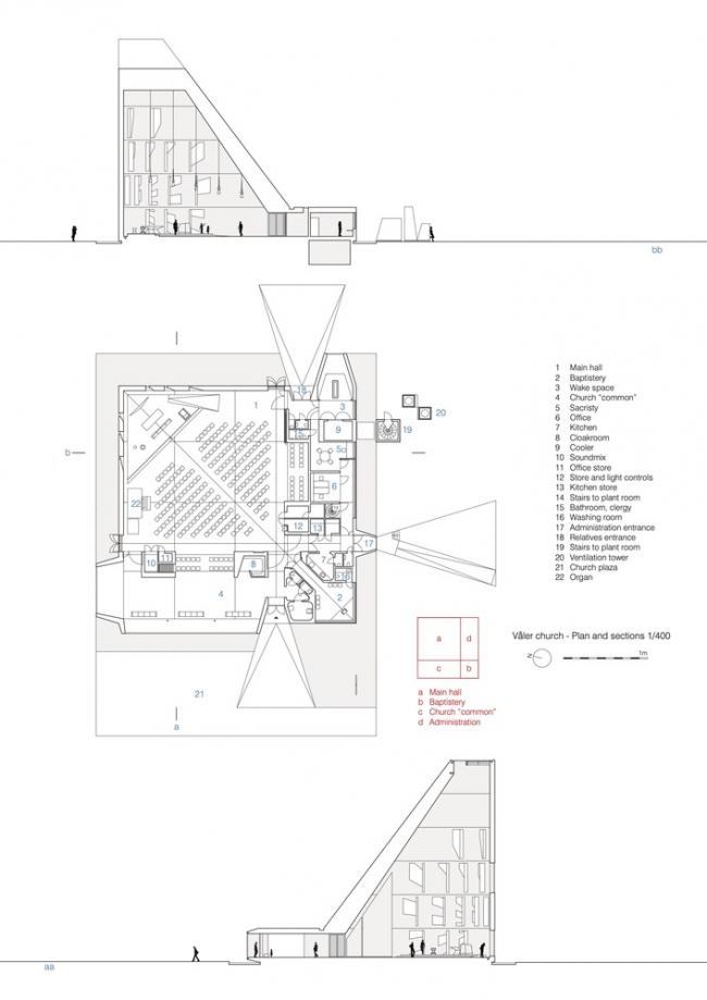
这栋建筑的形式灵感来源是由严格规整的几何原则设计而成的。该建筑计划是二次方的,由一个对角的游行轴线纵向切开,人们从南面,一个小小的教堂入口前行,然后到达北面的主教堂。两座塔楼正在展示教堂内的礼仪点(BIM工作)。最高的塔楼高24米,小塔楼高12米。塔楼的顶部有灯光,游览者可以看到天空的景观和视野。同时,设计过亮的灯光效果让日光自然地进入到室内房间。
在建筑的场地规划中,重心建立起原有旧教堂的边际能够起到纪念意义。并且使得老教堂在旧有的墓园的坟墓之间产生过渡休憩的作用。
图纸
总平面图
剖面图
立面图
项目信息
建筑师sivilarkitet espen surnevik as
建筑地点挪威Våler市
建筑类别宗教建筑
主持建筑师Espen Surnevik
总建筑面积950.0平方米
项目年份2015年
建筑摄影师拉斯穆斯·诺兰德
微信公众号:xuebim
关注建筑行业BIM发展、研究建筑新技术,汇集建筑前沿信息!
← 微信扫一扫,关注我们+

BIM建筑网



























