在建筑创作过程中,事务所始终把环境作为一个重要的影响因素来看待。在这一理念的影响下,通常一个建成的项目也会反过来对它所在的已有环境产生影响。TTC槟枷精英幼儿园中所体现出来的宁静氛围是在融合了槟枷当地的人文传统和自然景观之后所形成的产物,可以说为这种建筑价值做出了积极的贡献。巴奥半岛属温带气候,是美丽的垱龙(BIM工程师)江冲积平原之一。
为了表达出对这片土地壮丽之美的赞扬之情,事务所采用了传统越南建筑语汇的构成要素,该语汇通常包含开放的平面图布局,同时平面图在剖面上用水平面清晰地描绘出来,以追求将建筑融入更宏观的生态环境中。这些空间的形成暗示了以儿童为导向的教育校园应该是什么样并且是如何构成的。孩子们应该能够在一个有趣的环境中轻松地表达、探索和学习,让他们发挥出最好的一面。
从外部造型上来说,幼儿园将两个独立的体量进行了区分,一个是斜坡形的,另一个是位于山上的几何体量,为体育和艺术活动提供了灵活的空间,同时还能拥有远眺无尽城市的壮阔视野。坡地下面的空间,即“小山”的内部用作教室,由一个大型的多功能厅连接,是幼儿园的一个中心组成部分,允许孩子们在日常和特殊场合进行各种教育活动。
在这座幼儿园的存在下,其“小山”形的体量仿佛是一块角石,有助于孩子们探索发现学校的建筑特征。它被设想成一个能使每个孩子的感官发生变化,激发他们内心好奇心的地方,让他们对幼儿园之外等待他们的世界感到兴奋,充满好奇心和期待感。
图纸
屋顶平面图
实体模型1
实体模型2
分析图
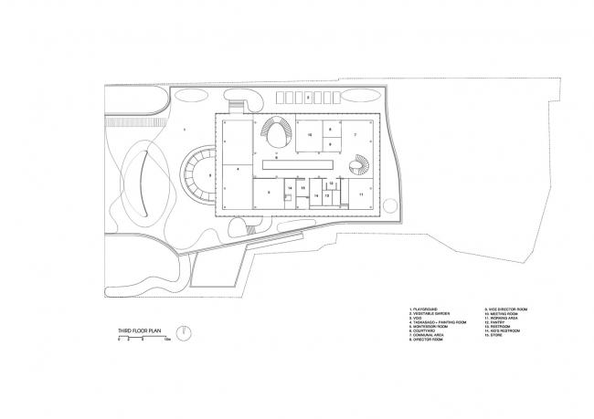
三层平面图
屋顶照明
手绘图
手绘图
手绘图
立面图
总平面图
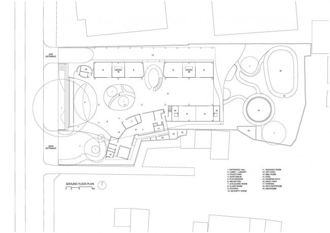
一层平面图
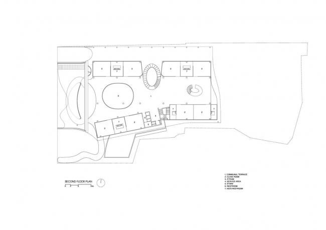
二层平面图
剖面图
项目信息
建筑设计:KIENTRUC O
项目区位:越南,槟椥省
项目分类:幼儿园
主导建筑师:KIENTRUC O
建筑面积:1491.0平方米
项目时间:2017年
项目摄影:Hiroyuki Oki
制造商:Dulux, Schneider, Xinfa, INAX

BIM建筑网




































