Haworth Tompkins今日已经为剑桥的Perse学校建造设计了一个新的表演艺术中心。该建(BIM设计)筑自然通风,包括一个400座的礼堂,一个适应性的门厅空间和完整的房屋设施。Perse学校有一个广泛历史悠久的音乐和戏剧活动传统,已经超出了以前的设施的承载能力。表演艺术中心以彼得·霍尔命名,彼得·霍尔是1941年至1949年间在学校的学生。他继续担任着国家剧院的主任的要职,这同时也是与Haworth Tompkins长期合作的协会机构。
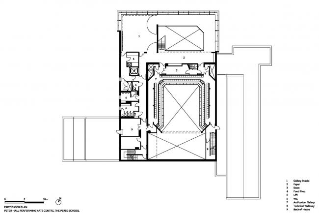
这个新的艺术中心包括一个400个座位的礼堂,一个适应性的门厅空间,包括一个大型的日间排练和教学室,一个展览空间和完整的后勤更衣室,车间和辅助空间,以及一系列的套件教室。三层高的带有“斜纹”木质屋顶结构的画廊门厅,自然采用日光照明,俯瞰着一个园景庭院,将成为学校的新中心区域。
该空间在学校期间作为学生和工作人员使用的咖啡馆,并在礼堂的活动期间能够作为观众的门厅同时使用。高耸的门厅横跨庭院的整个宽度,可以融合建筑物,模糊其内外部空间之间的边界。
所以我们特别委托相关纺织品艺术品,由格拉斯哥的艺术家维多利亚莫顿(Victoria Morton)设计,他与学生一起工作并探索了学校档案调查背景以供设计研究。在爱丁堡的Dovecot工作室创建,从建筑物的入口处可以看到这些艺术壁挂,并在两层的联通处连接门厅。礼堂成为了一个丰富,黑暗的木质衬里空间,与苍白的木质门厅形成了鲜明的对比。它为舞蹈,戏剧,装配,音乐和演讲提供了一个美丽而温馨的空间,将观众包裹在表演者周围,同时在需要时采用更加传统的结构形式。
室内的座椅蛇酒采用羊毛装饰,自然色调暗示呼应着外面的景观。剧院住宿空间设有一套配备完整的更衣室和技术功能空间。表演艺术中心拥有完整的后台设施,使学生能够体验制作的各个方面,并扶持其蓬勃发展的技术剧团公司的活动为该艺术中心提供基础的活力。
与我们大部分戏剧工作一样,特别是对于学校所需的弹性建筑材料的选择,因为它们具备非凡的耐用性和成熟能力随着时间的推移而产生特定的变化。考虑到这一点,我们设计师选择了手工砖,预制混凝土。利用木结构的温暖,坚固的调色板材为建筑增添魅力。
图纸
总平面图
首层平面图
二层平面图
剖面图
剖面图
项目信息
建筑师霍沃斯汤普金斯
建筑地点剑桥,英格兰,英国
建筑类别表演艺术中心
首席建筑师Jessica Daly,Simon Ricketts,Steve Tompkins,Roger Watts,Tom Wilson
总建筑面积2340.0平方米
项目年份2018年
建筑照片Philip Vile,Fred Howarth
制造商Pollmeier,Autodesk,Hakwood
结构工程师价格和迈尔斯
服务工程师Skelly&Cuuch
顾问设计Charcoalblue
承包商RG卡特斯
委托单位Perse学校

BIM建筑网























![BIM建筑|商业社区,Bradbury 工厂 / [Y/N] Studio-BIM建筑网](https://www.bimkk.com/wp-content/uploads/2023/06/8708025ee511d7b-380x250.jpg)


