麻省理工学院海登图书馆(Hayden Library)将进行重新改造,把建于 1951 年用于收藏二战后的人文科学、呈现现代主义风格的藏品库转变为一个充满活力和包容性、用于合作和创新研究的学习空间。“研究十字路口”的概念强调了在数字,分析和模拟收藏的交叉点上新思维模式的潜力。
一对两层的“楼阁”分别由玻璃和木材打造,为原有阅览室无法区分的体量引入了一种调解尺度。在楼阁相交的地方,新的雕塑般楼梯和电梯打破了现有的楼板布局,为所有楼层提供了垂直连接通道。
全天开放的底层包含一个咖啡馆和灵活的活动空间,以及被笼罩在玻璃和木质的体量的数字化协作室、私密的学习空间和数字工具。半透明的窗帘、数字屏幕、可移动的家具和白板鼓励学生“入侵”图书馆,根据他们的需求重新配置空间。重新构想的二楼以原有建筑优势为基础,创造了一个安静的休憩空间,还能眺望到查尔斯河和远处波士顿的壮丽景色。
原有的 Lipchitz 庭院由于难以入内和经受风吹日晒而被荒废了几十年,现而重新打造成为一个充满活力的中央绿色空间,并将图书馆的活动延伸到一个有遮蔽的、功能紧密分布的室内/外空间,由自然植物、弧形木凳和精心布置的雕塑所包围。
全新的三季凉亭与庭院咖啡厅相连,围绕庭院的无障碍的回廊成为了过渡区。定制的木板结合了声学控制,并将庭院的连香树冠纹理延伸到亭子的天花板上。
项目图纸
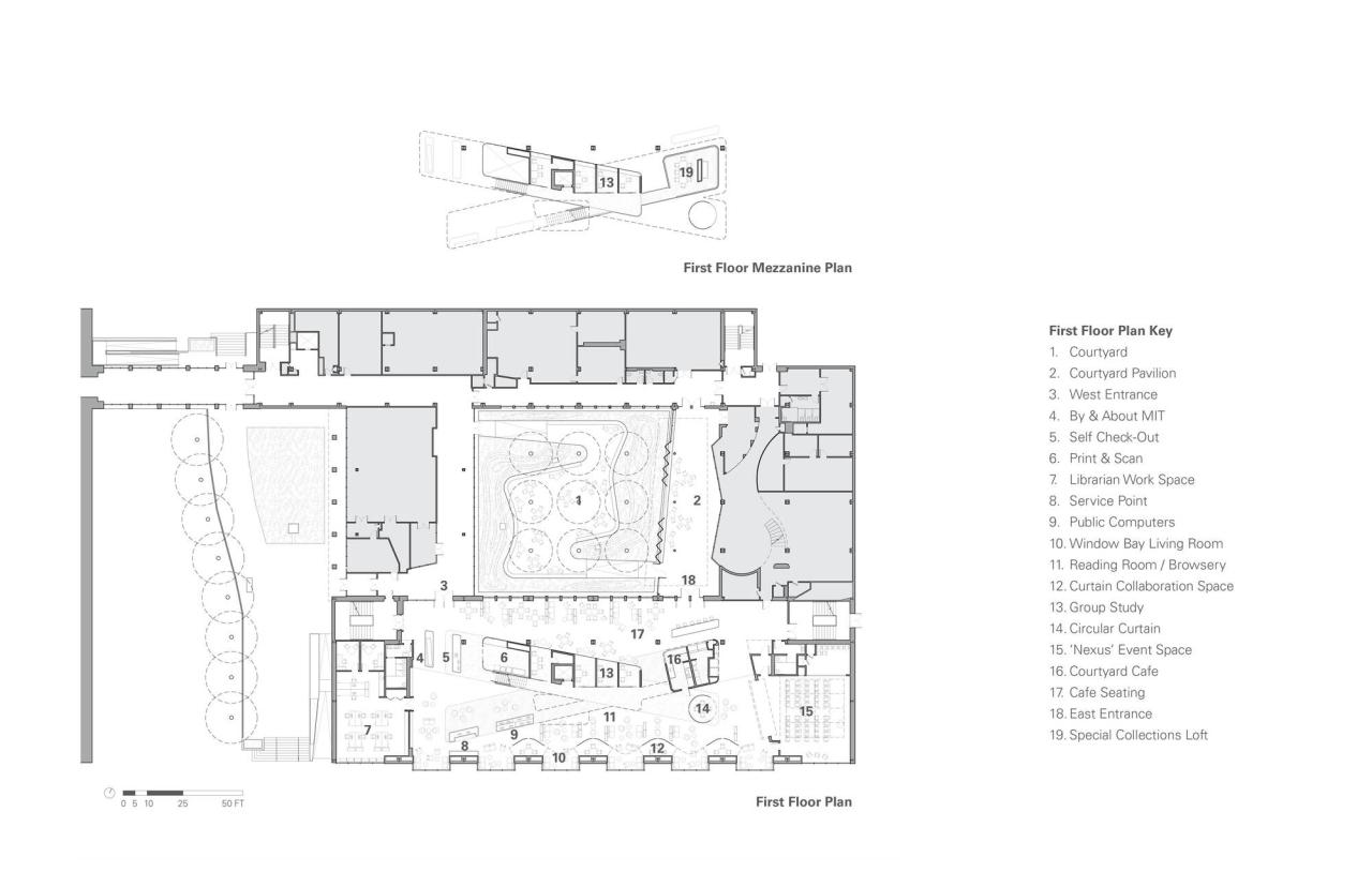
△一层平面图
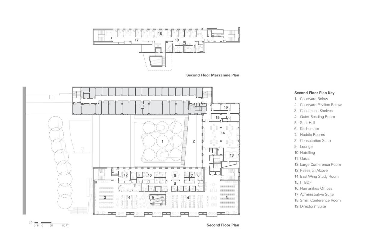
△二层平面图
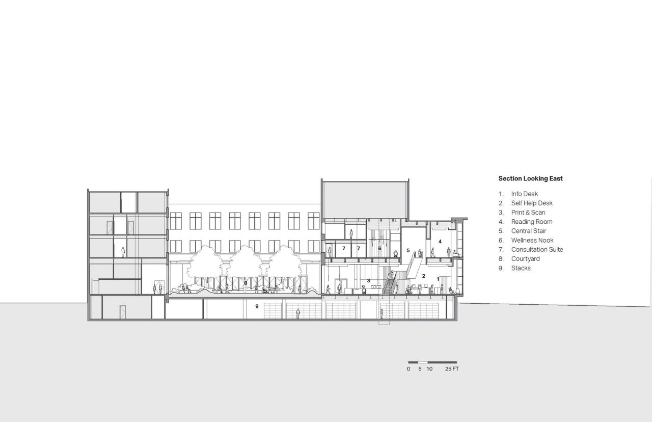
△剖面图
△剖面图
△分析图
项目信息
建筑师:Kennedy & Violich Architecture
项目年份 :2021
摄影师 :John Horner
厂家 : Terrazzo & Marble
设计团队 :Sheila Kennedy FAIA, Design Principal Frano Violich FAIA, Managing Principal Ned Goodell AIA, Project Architect Ben Widger AIA, Daniel Sebaldt AIA, Nick Johnson, Hannah Liechty, Danniely Staback Rodriguez, Kevin Marblestone, Toshiki Niimi, Lynced Torres, Greta Wong, Jess Jorge, Chris Weaver, Mark Bavoso, Daniel Marshall, Clarence Lee, Julian Geltman
委托方 :Massachusetts Institute of Technology
建筑设计 :Kennedy & Violich Architecture
景观建筑师 :Stephen Stimson Associates
结构工程师 :Buro Happold
建造工程师 :Simpson Gumpertz & Heger
可持续发展设计 :宋腾添玛沙帝
声学设计 :Cavanaugh Tocci Associates
视听设计 :Communications Design Associates
成本估算 :Vermeulens
土木工程师 :Haley & Aldrich
承包商 :Elaine Construction Company
地点 :美国,Cambridge

BIM建筑网























