本项目是一个对普通城郊住宅的当代转化。本着他们的精神,该住宅以经济的方式建造和使用日常材料和技术,这些对当地的建设者和商人来说都是容易获得且可理解的。这些材料和技术被放大和夸张,使其变得既模糊又熟悉。
住宅位处一片花园中,该花园位于都柏林市边缘的一个1940年代郊区庄园的一段短小的联排住宅的尽头。场地南面是现有的榛树和女贞树树篱,西北是原始联排住宅的白墙,东北则背靠公共巷道的高墙。
首层的布局来源于室外舒适空间的规划要求。为了最大化花园的存在感,它利用由茂盛的灌木篱墙提供的绝好的私密性。在首层平面上,大部分的承重墙都位于内部十字形状的核心内,使木材和玻璃折叠门的幕墙可以包裹在建筑的外部,使得住宅可以直接连接和进入花园。内部十字形的核心(BIM建筑)将平面分为4个开敞的房间:一个大厅/图书馆、厨房、餐厅和起居室。这些房间按照比例和朝向的需求进行布置,并在剖面上形成不同的抬升,以适应不同的尺寸和亲密度所需的天花板高度。
一道内凹的天花板轨道使得在需要时房间可以被幕墙完全包裹在内。在核心部分包含有服务、植物灌溉、盥洗室、厨房电器、笔录以及储藏空间和楼梯。沿着圆周形成一个连续的循环。
在晴朗的日子里,折叠门可以从角落开始往后部滑动,让屋内的空间向外延伸——减少住宅对结构核心的干扰,增加外部舒适的空间。
花园里种植了各种各样的植物,许多都可以食用,并回应光照、阴影、地势和环境。住宅有一个朝南的露台,还有一条被建成一个新的宜居的花园墙的长椅。住宅的BER值是A2,但它不会轻易将它显露在表面上炫耀。
首层有三间卧室和一间浴室,以一个小的中央平台隔离开。平台由一个突出烟囱的高屋顶采光照明,并以木板衬里,一直铺到门的高度。平台有一扇门宽两扇门长。经由这个空间,打开镶板的门,进入宽敞的卧室,光线从对面墙角上的大窗户投射进来。天花板沿着屋顶的倾斜度悬挂,从门口上方的4.5米下降到边缘的2米。这些房间的内铺装是全彩色的MDF沃刻板,地板是镶花MDF沃刻板。
在建筑外部也采取了相类似的处理手法,但夸大了直通露台的房间部分。砌体墙采用灰白色胶结底漆完成,在花园一侧进行了深度的粗糙处理,在巷道立面和公共立面上则进行了手绘光滑处理。
石南色纤维水泥屋面增加显眼的粗加工的铜制瓦当、铜制天沟、屋面立缝等细节。铜制落水管用于在里面的空白部分绘制图形,是人联想到线条绘画。随着时间的推移,这些构件会氧化成浅绿色。在房屋与巷道相接的地方,一个简单的山墙投射出一个门和窗户的浮雕图像。这是大卫•利奇事务所的首个项目。
项目图纸:
区位图
首层平面图
二层平面图
正立面
立面图
透视图
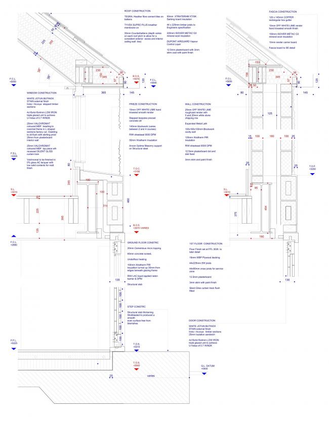
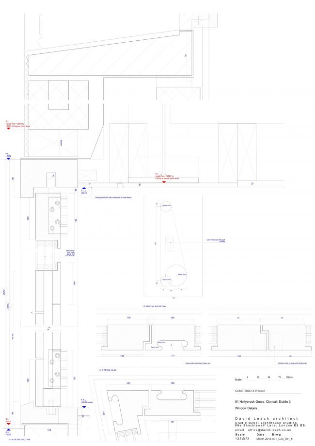
墙身剖面大样图
剖面大样图
项目信息:
建筑师:大卫•利奇事务所
地址:都柏林,爱尔兰
类别:独立住宅
建筑面积:120.0 m2
项目年份:2017
摄影师:David Grandorge
(BIM工程师)厂家:Tegral, Valchromat, Brendan Kavanagh, Maria Canavan, Coppa gutta, Fitzpatrick & Henry Joinery

BIM建筑网
































