岁寒三友这名字起的甚好,松、竹、梅经冬不衰,精神可嘉,又是三个好朋友一起创立的高端私房餐厅,带着这种情怀去探索,去研究规划……
这是一个两层的商业铺面,一楼层高非常高是这个项目的优势,顺着岁寒三友这个有书香气息的名字延升,今古凤凰想通过唐风的木结构、柱梁建筑形体,用朴实无华的材质来表达盛唐的典雅与气度。
理水,是中国古典景观设计审美上的追求,更是天然之趣的追索。入口处通过长长的斜坡走廊做出了空间的仪式感,一根胡桃实木柱子在水景中拔地而起,支撑起整体结构,又衔接着一个台面,形成一个几何形状,刚好可以作为前厅的一个咨询客台使用,大面积的木结构屏风分开了入口区域,画面一虚一实,相互成影。
大厅接待处巧妙设计成唐风的书案与藏书阁,让书香气息弥漫整个大厅。今古凤凰利用原来空间的高度,在天花处做了个木结构造型,有意使前台区域压低,让此区域与客人之间的距离感拉近,达到空间比例的高度和谐与对比。
在力与美之间达成统一,在严谨与雄浑(BIM培训)之间获得平衡是唐风建筑的特点;本空间通道的设计正是效仿了唐风建筑的风仪,陈列式的胡桃木柱子结构与天花飞板衔接,用简约的建筑手法诠释室内局部与整体的相互成就,在中轴对称的基础上,化繁为简,以现代的工艺与表现手法,重塑建筑之美。
包厢延续采用胡桃木加黄铜柱子做为建筑支撑,配以浅灰色天然石块砌成墙体结构,营造出宁静、舒缓的高端感,而这也正是唐风最本质的格调。
(BIM建筑)
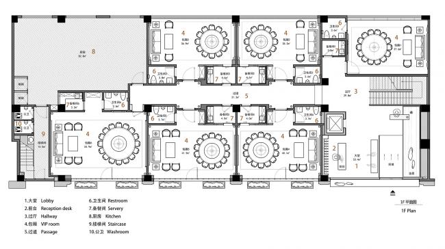
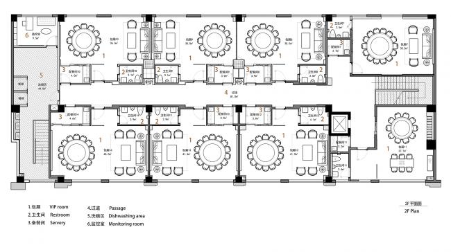
设计图纸:
▲一层平面图
▲二层平面图
▲轴测图
▲结构图
项目信息:
项目名称:岁寒三友
项目地点:广东省汕头市
项目面积:约1200m²
完工时间:2019年1月1日
设计单位:今古凤凰空间策划机构
网站:WWW.JINGFH.COM
主笔设计师:叶晖
设计团队:陈坚、林伟斌、陈雪贤
摄影单位:隐象建筑摄影
客户名称:林先生
主要材料:
塞尔灰石板、雅典灰石板、胡桃木实木、深色橡木饰面、黄铜、肌理漆、玉砂玻璃

BIM建筑网






















