在设计中,我们往往需要同时照顾两个相反的原则,在控制的同时释放,在放下的时候提起,在前进的时候后退,在延续的同时打破。在当下大部分启动区气质趋向于统一的时候,如何通过传统文化和现代美学的结合,打造出“不堆叠符号、不单调重复”的建筑形式,将是一个被广泛讨论的命题。
我们希望找到一种方式,在设计中真正能做到在大的同时小一点,在轻的同时重一点,在深的同时浅一点,在传统的同时现代一点,因为所有的元素都能最终找到一种方式共存,所有的探索本质上都是对下一波浪潮的可爱幻想。
本项目位于海南省海口市,作为该地块的展示中心及售楼中心,本案引领了整个地块的精神面貌。业主希望建筑兼顾功能与审美的需求,风格上体现当地建筑特色的同时,不失现代流行气质。
在思考设计的最初,我们确定了从三个大的方面去深入挖掘,塑造建筑的独特性和唯一性,既能满足业主的需求,又在设计风格和手法上加入一些创新的尝试。
我们从当地特色建筑中挖掘专属文化符号,通过拆解手法打造变化的室内光感,同时形成更“独特”的标示性外观。
由于用地沿城市展示面很长,我们希望设计一个横向力量感很强的方案,通过一条流动感十足的白色栏板统御轻质身段,加入现代建筑语汇,与形体主体的悬浮屋顶和谐共存。最后,一些极富当地建筑、文化特色的元素在结合结构需求的同时,被融洽地使用在建筑立面的设计中,完成点睛。
由于海南的气候特色,我们希望方案能有更多室内外的融合。区别于传统展示中心平铺直叙的流线,我们尝试通过一段室内外互融的灰空间,将主展功能提升至二楼。海南当地的传统建筑较为通透、轻盈,重视与自然元素的互动,我们希望把这种灵活享受空间的理念延续到本项目的使用中,打造一系列有趣味性和享受感的体验式空间。
在建筑主体的材料使用上,我们选择了与海南当地建筑风格呼应的材料组合。屋顶和主体使用了木饰面材料,聆听自然,走近生态海南;局部使用了白色和镜面的金属材料,提升现代工业美感的同时,以简洁明亮的线条勾勒整体。另选用高透玻璃强化虚实对比和节奏变化,使建筑同时展现出明快、轻盈、自然和富有文化等艺术品质。
现代设计与传统文化并不矛盾,每一次尝试都是一次新的理解和品味。外立面造型与室内空间自然过渡,为室内带来柔和变化的光线(BIM工程师),产生不同的体验氛围。
设计图纸:
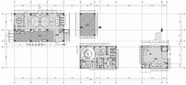
▲一层平面图
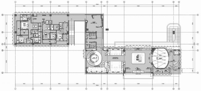
▲二层平面图
▲1-11轴立面图
▲11-1轴立面图
▲A-E轴立面图
▲E-A轴立面图
▲功能分区
▲交通分析
项目信息:
项目名称:北辰府
项目地址:海南省海口市秀英区西海岸长滨东十三街
用地面积:10.67公顷
建筑面积:206017平方米
项目设计&完成年份:2018年
设计方:PTA上海柏涛
主创建筑师:卢斌、曾汉辉
设计团队:赵哲,杨瑛,王胤程,鲁显涛,沈高,李成贝,黄亚中,杨宪,陈瑞中,佘一宁,王漪旎
业主:北辰实业海口辰智置业有限公司
摄影师:山兮建筑摄影
主要材料:屋面铝镁锰板、铝单板、真石漆

BIM建筑网






















