在竞争国际大都市并确定这一等级后,“宏伟巴黎”计划旨在将法国首都的大主教辖区向当代21世纪的城市转变。作为这一具有雄心的计划的一部分,LAN (local architecture network)为学生设计了包含900个单元的住宅综合体(BIM培训)。环绕两个城市发展区:埃科勒理工学院校区和moulon区,该项目致力于为这些设施设立一个新的全国范围的标准。
与Clément Vergély建筑事务所以及景观设计公司Topotek合作设计的这个方案,LAN视该方案为一个协调建筑和景观的机遇。因此,该项目基于一个简(BIM建筑)单的想法:增加地块边沿的密度,以在中心创造一个公园。三座黑色的建筑,居住了原计划的70%的居民,在场地边缘呈直线型布置,而公园内的五个圆柱结构包含了项目计划居民数的余下部分。
这五座以“缪斯”著称的圆柱形建筑,参考了希腊古代遗迹和18世纪早期的装饰性的花园。这些圆柱形建筑表面裸露的预制混凝土构件展示了光镂的希腊神话故事人物形象。在内部中心设置了垂直循环的路线,每一个故事占据18.5平方米(200平方英尺)的面积,包含14户居民。同时,外围的建筑提供了不同类型的居住空间。
设计图纸:
▲ 总平面图
▲轴测图
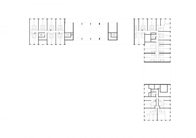
▲一层平面图
▲二层平面图
▲一层平面图
▲二层平面图
▲立面图
▲立面图
▲立面图
▲圆柱形建筑表面细部
项目信息:
项目名称:萨克莱大学学生公寓
建筑事务所:LAN architecture
完成年份:2018
总建筑面积:25346平方米
项目地址:ZAC du moulon,gif-sur-yvette,法国
摄影师:Fabrice Fouillet
主创建筑师:LAN,Clément Vergély architectes,Topotek
设计团队:Giovanna Pasinelli, Marcello Orlandini, Dorothée Riou, Maxime Enrico, Lisa Taibi
业主:Linkcity
工程师:Bouygues Construction
景观设计:Topotek
施工方:Franck Boutté Consultants(HQE)

BIM建筑网























