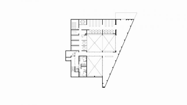
▲ 一层平面图
该中心作为一个新的聚会与社会互动场所,旨在推动 Tirrases 地区人类的发展。它位于 La Cometa Building 和 Las Mercedes Pedestrian Walkway 之间,是一座三层建筑,拥有儿童图书馆、教室以及工作间。
项目与场地相关联,并鼓励对内部空间进行灵(BIM)活使用,通过中心区域的组织,拥有充足光线与广阔视野。具体使用空间通过内部庭院、外部广场以及作为小型圆形剧场的阶梯相互平衡。
整个项目基于对场地的理想化使用和经济(BIM教程)资源最大化。建筑采用了优质材料,以期拥有低维护成本和长期耐用性。
设计图纸:
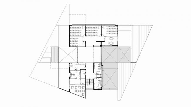
▲ 二层平面图
▲ 三层平面图
▲ 剖面图1
▲ 剖面图2
▲ 剖面图3
项目信息:
建筑师:Luis Diego Barahona
项目位置:Calle 41, Los Yoses Sur, San José, 哥斯达黎加
项目经理:Municipalidad de Curridabat
执行机构:Fundación Costa Rica-Canadá
主要合作方:Karina Vindas
结构工程:FSA Ingeniería & Arquitectura
机电工程:FSA Electromecánica
财务:Ministerio de Vivienda y Asentamientos Humanos y BANHVI
奖项:Premio Diseño Urbano Construido en la Bienal Internacional de Arquitectura Costa Rica 2018 y Premio ALPU (Categoría Arquitectónico Construido, otorgado por la Asociación Latinoamericana de Planificadores Urbanos en la BIACR-2018)
面积:2558.0 m2
项目年份:2018
摄影师:Roberto D’Ambrosio,Oscar Abarca,Ingrid Johanning
厂家:Atlas Schindler, Expocerámica, Construtec, Extralum

BIM建筑网





















