这个项目的基地位于韩国以最早的日出而闻名的Ganjeolgot,而为新的社区公园而预留的土地将其包围,因此不能进一步开发。建筑位于在这片区域内最高的山丘之上,这里是距离Ganjeolgot现有商业设施最为偏远的地区,而附近还有一个公共停车场,这些场地条件我们认为都需要考虑进我们的方案设计中。
在功能的需求上,客户需要一个商业建筑。他最初想打造一个个人咖啡馆,但在建造期间改为了特许经营店及一家民宿,并由自己经营。 我们不仅要满足客户对功能的需求,还要通过为到这个社区公园和Ganjeolgot的访客们提供一座商业建筑来唤醒人们的公共建筑意识,同时还能作为一个文化综合体融入公园中去。
由于较低的预算,我们避免去建造一座体量巨大的建筑,但在建筑之间留空,借以与室外环境交流,并且能让人们在任何地方不需要一个特定的方向就能对建筑进行识别。而这一设计过程自然而然地产生了类似五边形的设计布局。此外,无方向性的建筑特征将使未来的游客能够从社区公园的任何地方走近这座建筑,并能随时随地的进行交流。
我们清空了形状不规则的中心场地,并在三楼创造了一个咖啡馆空间,并沿着平面形成循环交通,在转角下方具有功能性的体量在作为民宿的同时作为了荷载支撑。
以这种方式形成的五角形中央庭院与第一层(地面)和第二层间不同形态的空隙相映成趣,再次与外部的交通相互连通,以便光线穿透中空空间并在一层的内外的水面上反射,从而营造出深刻而神秘的感觉。我们希望让用户感受到内外不同空间中光线和海洋的变化。也就是说,我们不希望他们在建筑内部的交通循环中受到限制,而是能利用内外的各种空间,让游客们能够计划和举办展览,文化活动和表演,除了简单的商业空间之外还能利用咖啡馆作为文化交流的空间。也许不久之后,这个社区会发展成为一个公园,而该建筑物将会有更强的发展潜力。
我们打算将不同的功能融为一体,并将流通的概念融入咖啡馆的设计,我们希望当Ulju郡将这个地方合并到一个公园时其能作为观景台的功能使用。 来这个地方参观的人们为的就是看到大海和日出。 因此,我们提出了一个三层而非一层的建筑,并说服客户将咖啡馆放在三楼(在11米的高度范围内)。业主最初非常反对这个想法,因为它会降低商业的可达性。然而,经过长时间的尝试沟通,我们设法说服了他。因此,我们能够在一层和二层创造出“激进的”户外空间,从而在五角庭院和建筑物外部空(BIM教程)间的各个方向之间建立视觉连接。
我们希望这个五角建筑能成为一种新的可能性建议,以展示当一个建筑作为考虑到公众的文化综合体时所能拥有的力量,即使其本是一个很容易对空间质量缺乏细致考虑的商业建筑。
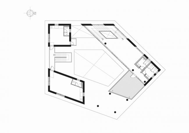
设计图纸:
▲ 一层平面图
▲ 二层平面图
▲ 三层平面图
▲ 立(BIM学习)面图
▲ 立面图
▲ 立面图
▲ 立面图
▲ 剖面图
▲ 剖面图
项目信息:
建筑事务所:ON Architecture INC.
地址:Ulsan,韩国
类别:商业建筑
主创建筑师:Woongsik-Jung
建筑面积:212.25 m2
项目年份:2016
摄影师:Yoon Joonhwan
厂家:Hunter Douglas
场地面积:1063.0 m²
建筑面积:487.27 m²

BIM建筑网































