湖南大学天马新校(BIM工作)区位于岳麓山大学科技园,总用地18.96h㎡。场地北临湖南大学老校区,东倚天马山,往西隔麓山南路与岳麓山相望,南面为阜埠河路和天马学生公寓,自然景观和人文气息浓厚。校区规划建设肇始于2003年,其后历尽波折,到2016年方得以全部建成。新校区毗邻老校区,是它的延伸、扩展和补充。
▲ 总平面图
▲ 模型
设计整体引入群构的思想,按照学科属性进行组织,建构出相应的秩序和逻辑,保证了功能使用的高效和便捷,如将物理楼、微电楼和数学楼整合为一个群组。与此同时,在大的分区原则下,设计也注重不同学科的交流融合,如将艺术设计学院和软件学院置入到一栋楼内,以期产生跨学科思想碰撞的灵感火花。
▲ 207亩整体轴侧图
湖南大学研究生院
近些年来地方工作室研究了湖南传统民居吊脚楼、风雨桥、晒楼、吞口屋、天井等形式,剥离外在语汇显现特征,提炼和还原出各种基本空间类型,成为指导设计的原型语言并通过一定的转化衍生在实践(包括在湖南大学原有校区的设计)中大量运用。
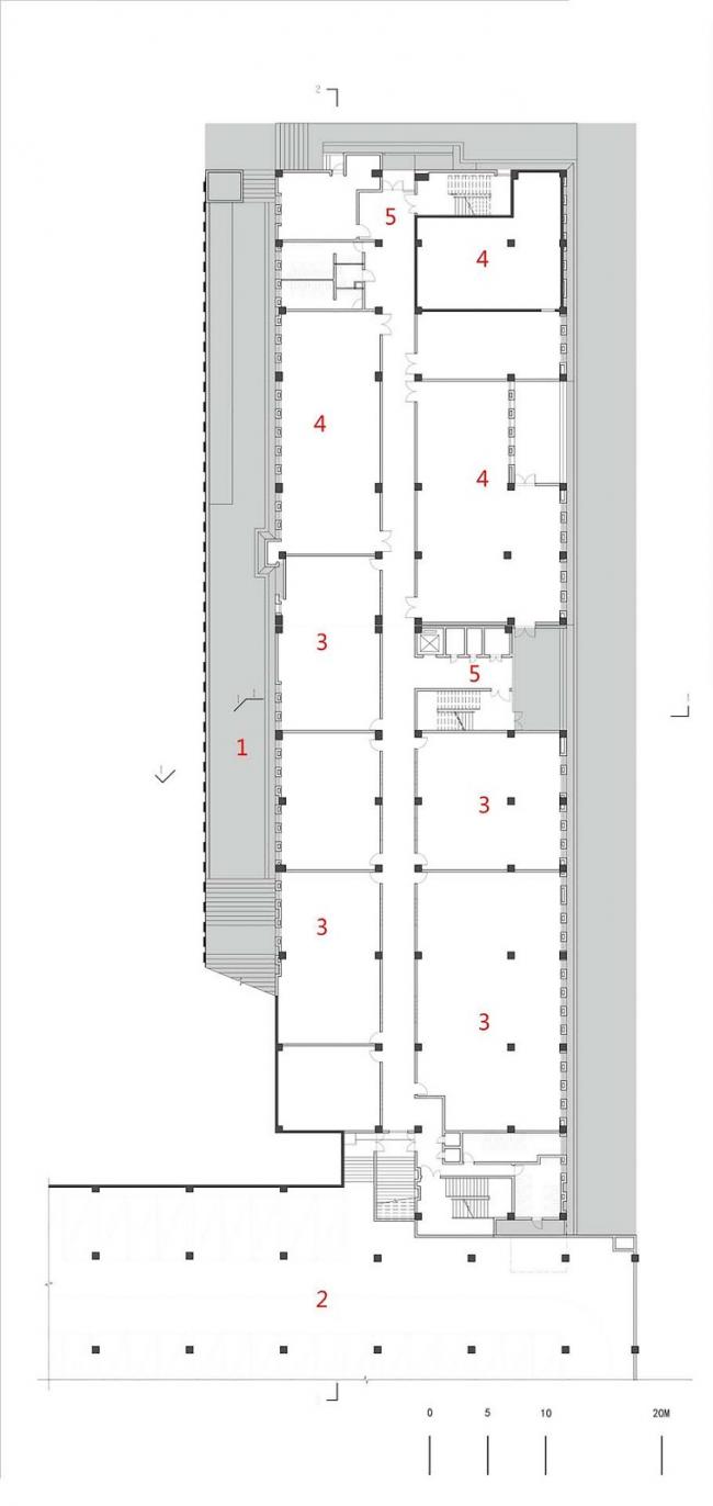
研究生院楼采用了院落、天井、台地、狭缝等地域空间类型对两万平方米的庞大体量在不同向度进行切割和镂空,消解了建筑对城市空间的压迫,并被塑形成为了一个实体组合感强烈的建筑“雕塑”和内部充满着空隙的呼吸体,这也与湖南大学的建筑原点——岳麓书院的各种空间形态衍生呼应,由此有效地应对了该地点的历史文化、气候环境以及场地特征等各种复杂的制约条件。
▲ 研究生院-形体生成
▲ 研究生院-中庭
在形态处理上,设计不过多着墨于单体的形构特异性和自身属性的强力彰显,谨防校区成为个性化建筑的杂烩拼盘。通过采用单元衍生的构成策略,在各单体之间以及单体各部位之间形成对位、呼应、相似、穿插的关系,保证了它们在尺度上的协调和形态上的划一,加之以外墙对水刷石材料的纯粹使用,让各个建筑集聚为整体。通过对形体连接、抬升、挤压、切割、退进的操作,留出了基座、平台、院落、廊桥、巷道、天井等空间。这些空间散布各处,成了促进人际交流和激发更多创意的场所,它们突破本有的功能定义,形成了新的意义延伸。另一方面,这些空间同时产生了阴影区和风道,也是对本土地域气候的一种积极回应。
一些局部的处理也继续强化了校园仪式化的氛围,例如: 通过狭缝空间雕琢出的线状天光表达具有未知感的阴影领域;保留原生的两棵大树形成局部空间领域的指向中心;一些非理性挑出的实体成为了“布道台”。
基地西侧毗邻喧嚣繁华的商业街,极具开放性。设计希望建构一个与城市关系若即若离、相对独立的空间场所。新校园应是修心的道场,有着自己的风骨,我们刻意塑造出如契里柯“形而上”作品的气氛——画面静寂而悠远,房屋封闭而光影浓烈。
墙面采用水刷石材料有着历史文化传承的考量——老校区充满着使用这种材料的新旧建筑,但更多的是对石子自身特有属性对塑造氛围所起作用的认识。上墙的天然卵石子是从湘江中淘出,并经过人力的多次筛选而来的。如果仔细辨识,可以发现每颗石子形状各有不同,颜色在同一色系下也千差万别,石子之间甚至可以看到嵌入的贝壳、生物残骸和沙砾等杂质。这无数差异化的微表情在光线的沐浴下显现成一种浓烈的暖调,强化了建筑的棱角和体块,弥散在校园的场所中,人们都被笼罩其中,还原了契里柯的画意。
湖南大学游泳馆
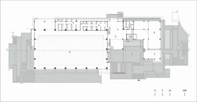
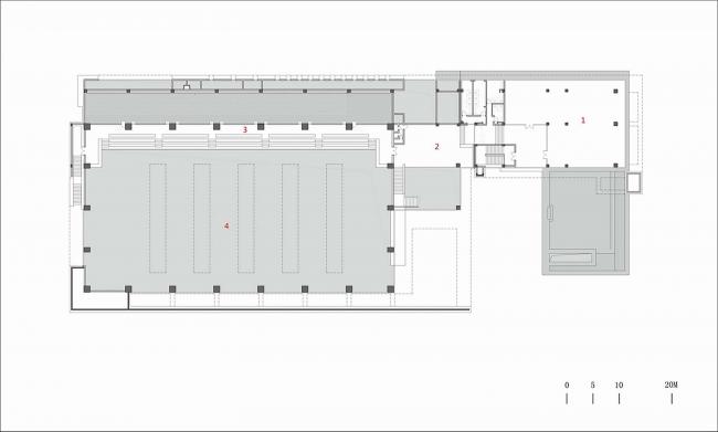
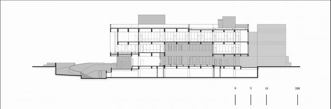
群构的理念中暗含了地景的思想。各个建筑本体与大地、山体之间是一种彼此嵌入的关系。建筑从大地中生长,大地是建筑的延展,由此消弭了建筑与景观的清晰分界,形成了一种原始粗犷的审美意义。以游泳馆为例,项目位于天马山麓坡地与平地的交界处,形体顺应地形坡起关系,在主入口区域的建筑形体依山就势,层层叠叠似一片片的岩石架设于坡地之上,结合大尺度室外台阶的运用,自然地形成空间场所行为导向,明确建筑与周围环境的地景响应关系, 同时也提供了一个容纳各种公共活动行为的平台。建筑场馆主体凌空架设,成为整体构型的重心,好似一个从山体中伸出的方盒,凸显了自身,与周围形成一种对比和衬托,充分展现体育建筑的张力。
▲ 游泳馆-形体生成
▲ 游泳馆一层
▲ 游泳馆二层
▲ 游泳馆立面图
▲ 游泳馆剖面
湖南大学理工楼
模型推导:改变以功能板块组合的惯常模式,而以类型单元为基础,研究其空间内在的结构关联,形成包含了城市空间、教学组团、单元空间、交通步道体系、视域廊道的群构整合,从而使功能关系组合转为结构关系建构,并以连续单元体强化线性空间特质,强化出契里柯式的“深景透视”的效果,以达到加大景深层次的效果。
▲ 理工楼-形体生成
设计在楼与楼之间重构了契里柯绘画里深景透视的街景,找寻中间“空”的况味,通过简单的排列逻辑进行组合,产生深邃的、具有某种历史场景感的东西。其中最典型的是理工楼群的设计,A 楼与B 楼(物理与微电子科学学院楼)面面相对的部分都采用了单元体交错并置的方式,仿佛端坐在两侧的石像彼此之间的缄默对望,中间夹着一条绵长甬道,指向着这条轴线的远端的收口——C 楼(数学学院楼)端部如同弯曲手臂一样的奇怪悬挑。
▲ A栋-一层平面图
▲ A栋-立面
▲ A栋-剖面
▲ B栋-一层平面图
▲ B栋-立面
▲ C栋-一层平面图(BIM)
▲ 一层平面
▲ 二层平面
▲ 东西立面
▲ 剖面
项目信息:
建筑事务所:地方工作室
地址:长沙市,湖南省,中国
类别:大学
研究生院设计团队:魏春雨、李煦、伍帅、刘海力、陈天意、覃丽伊、卢晶、刘镜淇、付超云、王记成
理工楼设计团队:魏春雨、宋明星、李煦、张光、沈昕、欧阳素淑、李雅侠、熊丹丹、张文雅
游泳馆设计团队:魏春雨、黄斌、顾紫薇、彭军、吕昌、周瑞、蒋康宁
结构机电:湖南大学设计研究院有限公司
景观设计:熊劲彬
建筑面积:29012.1 平方米
项目年份:2016
摄影师:Digital Photography Studio,姚力

BIM建筑网





































