项目区位
禹洲温德姆至尊豪庭大酒店(原名禹洲国际大酒店)位于厦门市湖里区五缘湾中心区,处于高崎国际机场和翔安海底隧道两大门户之间,西侧紧挨钟宅路,北侧毗邻环岛东路接五缘大桥。酒店所在地交通位置十分便利,距厦门高崎国际机场车程5分钟,距厦门国际会议展览中心车程10分钟。
▲ 项目选址面海傍湾,景观资源得天独厚
▲ 项目区位交通便利,四通八达
建筑概况
酒店由两幢连体高层海景主楼、19幢独栋式豪华套房组成,拥有400间全海景客房,120间全海景豪华套房。面海傍湾的酒店景观资源得天独厚,白天可观海面帆船点点,夜晚可见鹭岛灯火阑珊。
▲ 海面帆船
▲ 近处为19幢独栋豪华套房,远处为两幢连体高层主楼
▲ 夜晚对望鹭岛的霓虹
建成后的酒店屹立在五缘湾出海口,通过建筑本身如同流水般舒展的曲线型姿态形成张力,围合出符合厦门独特滨海气质的建筑体量,层层叠叠扭转的横向白色铝板构建成起伏的海浪形态,气势延绵恢宏。远远望去,酒店外观犹(BIM设计)如一艘乘风破浪前行的巨轮,成为厦门环岛东路景观主轴线上重要的城市空间节点,向广阔海洋展示着厦门开放、欢迎的姿态。
▲ 白色“巨轮”,屹立五缘湾口
▲ 建筑立面扭转的横向白色铝板
▲层叠扭转的白色铝板搭配蓝色幕墙,恰似蓝海白浪,呼应城市景观
▲ 富有韵律的立面
设计亮点
本项目2005年初已由其他单位设计完成,且原设计基础已经部分施工,后因故搁置数年;2008年我司接手本项目重新进行方案及施工图设计,从接续设计到施工直至项目以崭新的面貌最终落成,过程也历经十年时间。通过我司的设计,较好地解决了项目面临的几大难题:一是定位,我们在原有已批复建筑外轮廓布局不变的前提下,重新设计出符合各方要求的高标准星级酒店;二是成本,我们在原桩基已施工完毕的基础上,通过设计最大化利用原有桩基,以节约投资;三是形象,我们在顶部通过科学合理的结构设计,设置了30米跨度的功能(BIM学习)性空中连廊,实现了落成后的舒展线性姿态;四是流线,用地红线退线内满铺有6.5万平米的地下商业空间,多种功能流线交织混杂,我们通过设计完成了此空间中消防、运营、维护等方面的多重巨大挑战。
▲ 西北侧夜景远眺,左侧为五缘大桥,两栋主楼与空中连廊恰成景框,望向湾区东南侧城市景观
▲ 两栋主楼通过30米跨度空中连廊连接
▲ 建筑入口及地下空间
▲ 入口景观
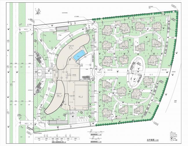
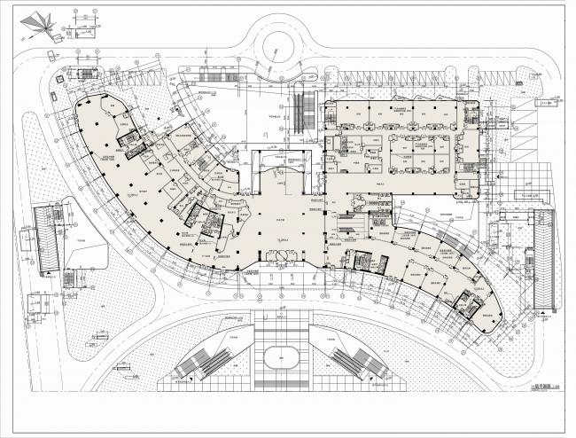
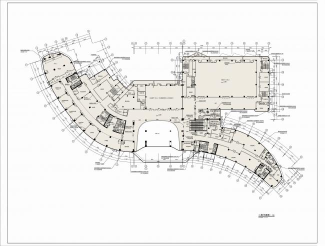
部分图纸:
▲ 总平面图
▲一层平面图
▲二层平面图
▲三层平面图
▲酒店标准层平面图
▲剖面示意图1
▲剖面示意图2
项目信息
项目名称: 禹洲温德姆至尊豪庭大酒店
项目地点: 厦门市湖里区五缘湾中心区
设计时间:2010年
建设时间:2011年~2018年
用地面积:60018平方米
建筑面积:125393.75平方米
项目总监:姜晓慈
项目经理:陈琳琳
方案主创:林鹏鸿、黄阔海
建筑负责人:林鹏鸿、陈琳琳、黄阔海
结构负责人:龙国梁
设备负责人:王红升
业主单位:厦门禹洲酒店投资管理有限公司
建筑摄影:罗联壁

BIM建筑网























