▲ 沿运动场透视
近年来,随着深圳城市快速发展,城市建设用地高度集约,城市空间密度的日益加剧;同时在一系列政策刺激下,城市人口规模迅速膨胀,学位需求急剧扩增。而面向未来教育的多元化建筑功能需求,也催生了校园空间硬件指标的进一步提升,因此为了适应城市土地、人口规模、教育理念的时代背景发展,高容积率高密度(简称高容高密)的校园已成了近年来深圳中小学设计的热点和面临的挑战。
前海三小(现更名为深圳南山实验教育集团荔湾小学)坐落于深圳南山区大南山脚下,位于月亮湾大道以东,前海路以西,港前路以北,基地北侧紧邻居住小区。校园总用地面积13048㎡,在起初的公开招投标中,办学规模要求是24班的小学,由于周边学位数量的严重紧缺,最后班级数量调整至不小于36个,因此最终总建筑面积33200㎡,容积率1.7。与深标规定的合理的小学容积率0.8相比,在如此高的容积率条件下,如何营造健康轻松、舒适开放的立体校园空间成了设计的关键。
▲ 总平面
布局策略
设计首先从学校与周边城市关系入手,总体布局形成了东西纵向的“教学办公+生活运动” 功能模式,动静分区明确。设计将运动场布置在用地西侧,有效隔离月亮湾大道城市主干道货柜车等车行噪音;将风雨操场面向南侧港前路且紧邻运动场布置,方便学生使用的同时也减少与教学楼的干扰;主要教学楼布置在基地安静的南北两侧,东侧中部布置非正式、半正式的功能教学空间;教工宿舍、学生食堂等生活区布置在西北侧,与运动场紧邻,形成了相对独立的生活运动区。基于高容积率的特殊性,为了土地集约高效,校园建筑以“金角银边”的原则沿边展开布置,同时将300人的多功能报告厅置于地下,释放更大的庭院地面空间,使得每栋建筑单体享有良好采光、自然通风和优越的视线与日照间距。
▲ 功能分区
▲ 沿运动场透视
▲ 庭院看风雨操场
▲ 多功能厅下沉庭院
多重庭院
各个不同的建筑单体以场地的适应性,形成了三个不同尺度和功能的庭院空间。
▲ 三个庭院
第一庭院空间:由校门、风雨操场、东侧教学楼界定了半围合校园主入口广场,为学校与城市提供了缓冲空间,同时在风雨操场首层设置家长接待、等候、交流的多功能室,此庭院空间成了校园与外界接触的对外展示空间。
▲ 第一庭院
第二庭院空间:以校园入口中轴线对应的一棵树“凤凰木”为庭院场域中心,在东西向上强化了庭院与运动场空间的延伸和联系。庭院的界面通过教学楼外廊、风雨操场架空底部和二层平台与景观休闲台阶、食堂的首层架空和连续楼梯,构建了庭院的横向立体的空间层次感和流动感。
▲ 第二庭院
▲ 树院
▲ 教学庭院
第(BIM工程师)三庭院空间:通过中部非正式功能空间的错叠并置,与南北教学楼共同形成了内向型围合式教学叠院。中部功能联系体底部两层架空,并与地下多功能厅的下沉庭院,构成了地上、地面、地下多重空间连续和流动;错落的功能盒子局部架空形成的空中活动平台,为每层学生提供了宝贵课间十分钟的活动和交流场所,引发孩子们互动玩耍、学习交流的热情。功能教室之间的非正式空间,生态开放,恬静安逸,既可引导东南风进入庭院,又可遥望东侧大南山,构成了景观视线互动。第三庭院空间通过立体的叠置,建立竖向空间层次感和流动感。
▲ 第三庭院空间
▲ 第三庭院
▲ 第三庭院的立体连通
▲ 第三庭院叠台
▲ 第三庭院叠台
▲ 第三庭院平台
▲ 第三庭院连廊与平台
▲ 三层连廊看第三庭院
▲ 第三庭院往西看
通过三个差异化庭院空间在不同维度的延伸、叠加、交互、渗透,结合建筑底部架空、下沉庭院、景观绿化、廊桥平台,构建了立体、连续、流动、通透的公共空间系统,营造了一个生动、开放、活力的校园庭院内界面。
▲ 穿透的庭院
▲ 交互叠置的庭院
▲ 多层次庭院
多重路径
建筑首层局部架空,并以连廊联接,结合学生的行为路径构成了流线型的庭院景观边界。
首层架空为校园提供一个符合南方地域气候特征的连续性遮阳避雨的场所,也可供雨天体育活动课。
▲ 首层架空连廊
▲ 架空连廊的渗透与流动
中间联系体将面向庭院的教学办公区的外部走廊与非正式空间通过一系列的活动路径串联起来,活动路径在室内外、上下层之间相互交叠,促进交往、交流的发生,同时强化了分层的模糊性、垂直空间渗透性和便捷的交通联系。
▲ 教学楼外廊
地下设置交通疏导中心,在紧(BIM教程)张的校园用地情况下为家长提供了接送孩子的空间,接送车流通过地下坡道入口进入地下环形交通岛的下沉庭院学生等候处,学生可选择直跑楼梯或电梯直上首层地面再至各个教室。
▲ 地下交通疏导中心架空下沉庭院
场所情感
环境对于个性和才能的发展具有决定性的影响。我们希望学习空间无处不在,更多的多功能开放空间取代由单一长廊,不同楼层留白的空间为学生、老师提供了手工、书画、阅读的可能。
▲ 校园西北角透视
六年学程,在价值观的塑造和回忆的年华中,是浓墨重彩的一笔。大树下,是课间的偷闲;大台阶,为校运动员助威;图书馆,记载多少人对外面世界的探索;庭院凤凰花开花谢,一季缘来,一季缘散,是毕业的惜别。
▲ 内院
▲ 体育馆休闲台阶
▲ 图书馆室内
建筑营造出的空间,不止于合理性的满足,同样能传达出正向的态度。当下多元化的思想环境,学子不再拘于室内苦读,宽敞的连廊是所有人都能互相交流的场所;量体错落下神秘的留白空间,是转角偶遇新面孔的契机;明亮的大片白墙,从童心满满的彩色门窗开始示范,预想了未来涂鸦、展览的场景,白墙虽不含感情,可也最包容。
▲ 校园从西往东看
这些难以具象的体验,潜移默化地在学子懵懂的世界观中,撒下关于美、包容、探索的种子,也承载着老师、社会,对这些初生太阳的期盼。
设计图纸
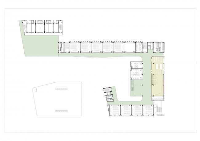
▲ 首层平面
▲ 二层平面
▲ 三层平面
▲ 四层平面
▲ 五层平面
▲ 六层平面
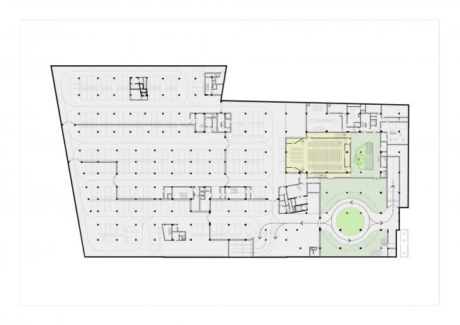
▲ 地下一层平面
▲ 立面
▲ 剖面
项目信息
建筑事务所:元本体工作室
地址:深圳,广州,中国
类别:小学及初中
项目主持:蔡瑞定
建筑方案与室内、景观团队:蔡瑞定、魏哲、黄润通、吴晓龙、魏晓晨、杨春平、李山薇、何伟勇
施工图团队:马越、曾小娜、刘畅、刘中平、韩国元、谢蓉、唐进
建筑面积:33200.0 平方米
项目年份:2018
摄影师:吴清山

BIM建筑网











































