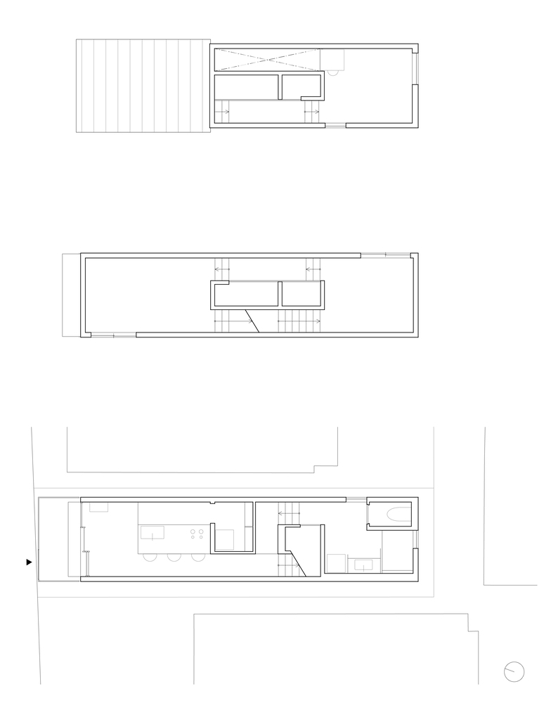
该建筑场地实际上位于东京都郊区,处在一栋典型的独立式住宅和一间公寓之间,仅有一个停车位的宽度。这座 2.5 米宽的独栋住宅中间是储物间,与之相邻的楼层错开了半个层高。
房间之间没有门,取而代之的是夹着储物间的细长楼梯,它同时起到分隔和连接房间的作用。这是为了回应客户的需求,客户过去住在普通布局、卧室封闭的房子里,觉得交流有困难。
储物间是独立的,不属于任何一个房间,因此房间的用途可以重新安排。对于这座小房子来说,储物间的尺寸太大了,从而混淆了人们对空间的感知。它就像一个巨大的箱子放在一个高大的单间外壳里,而延伸的楼梯让人联想到中世纪城市里的小巷。
简约的室内设计是对大众消费世界的一种逃离;其同质性和重复性突出了自然光的变化。这座房子是在当下困境中可以回归的一个小巧宁静之所。
微信公众号:xuebim
关注建筑行业BIM发展、研究建筑新技术,汇集建筑前沿信息!
← 微信扫一扫,关注我们+

BIM建筑网




















