(BIM建筑)一个令人兴奋并充满活力的房子是业主对本次设计的要求,在充分利用壮观的陡峭倾斜的场地的同时,能俯瞰作为世界遗产的植物园。对业主的客户简报是一个非常有机的过程,在制作中,随着设计的深化,房间不断增加,这使得设计的整体相关性难以保持,因此对空间和建筑整体体量不断地合理化是一个持续的过程。
而风水也在确定设计元素方面扮演了重要角色,例如圆柱状的电梯和前门的倾斜。该项目基地位于繁忙的克鲁尼路上并面向植物园的入口。从道路上看,该场地是陡峭地倾斜到高于道路水平数米的台地上。因此,车辆进入基地是困难的,并且也是本次设(BIM工作)计的主要决定因素。
为了最大限度地减少建筑一层平台与道路水平之间的高度差异,我们决定使用地下层高,并创建了一个轻盈通风的地下层入口,一个下沉式的庭院设有一个景观池和瀑布,用以表达与自然的联系。即使采用这种策略意味着行车道不得不设计得蜿蜒而陡峭。
由于场地特别的高度特征以及建筑那俯瞰道路的突出位置,我们决定使建筑看起来很轻,并利用以细薄元件组成的大型悬臂结构让建筑如同“漂浮”一般,以减小从道路看到的建筑物的表观体量。
对于较低楼层采用钢筋混泥土结构,但对于较高楼层,钢筋混凝土和钢的组合运用以实现大悬臂结构。阁楼层则完全采用钢结构,同时其铝制屋顶也装配有大量光伏电池。
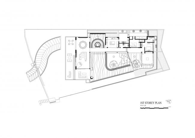
▲ 一层平面图
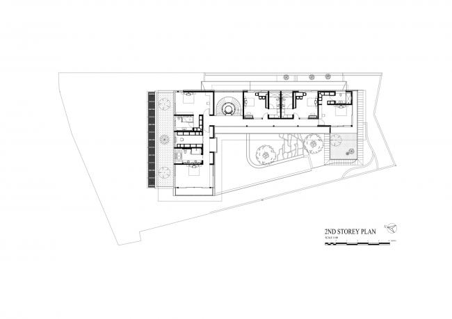
▲ 二层平面图
项目信息
建筑事务所:Guz Architects
地址:新加坡
类别:独立住宅
主创建筑师:Guz Wilkinson, Chayanit Boonma
建筑面积:1308.0 m2
项目年份:2018
摄影师:Patrick Bingham-Hall
厂家:Novelis, Stion
结构工程师:Tenwit Consultants
M&E顾问:FCL Engineering Consultants
景观设计:Nyee Phoe Flower Garden

BIM建筑网














