广州白云国际机场是中国三大枢纽机场之一,为满足持续、快速增长的航空业务量和未来信息化发展的需求,在机场工作区新建(BIM工程师)综合信息楼,助力于加强机场整体把控,统筹运行资源,有效实现全区域、全流程一体化管理。从空中俯瞰机场,综合信息楼顺应整体片区肌理,与周边环境融为一体,消隐在一片井然有序之中。从市区前往航站楼,机场大道沿途建筑保持统一序列感,与林木交织掩映,综合信息楼和而不同,协调又富有特色。
真正的创意,并不是为了标新立异而表现出与众不同,创意是基于对设计问题的完全了解。在对白云国际机场进行了全方位的调研之后,将所有情况进行梳理,归纳出城市关系、立面形象、功能组合三大核心问题。我们期望,站在未来某个时间节点回望现在,综合信息楼能如吉奥·庞蒂所说的那样:“建筑之所以留存下来,因为它是艺术,因为它超越实用”。
城市关系 /与机场对话:设计建筑从城市设计入手
白云国际机场以航站楼为中心分为南北两大工作区,综合信息楼位于南区,靠近广州主城,且与机场大道仅一条绿化带之隔。从城市角度审视,面对先有机场工作区后新增综合信息楼的命题,确立了其服从片区、协调周边的角色定位。
空间塑造:围合而筑、肌理融合
建筑布局采用开口朝东的U型围合,既保证了临街建筑群西侧展示面的连续性和完整性,又能与东侧公安指挥中心办公楼的反向围合形成良好的对话关系;与此同时,两者环抱出开敞的内部景观庭院,为办公人员提供了一处静谧、舒适的休息场所。
▲ U型体量
界面塑造:局部协调、呼应周边
在U型围合的基础之上,为了与南侧已建办公楼共同形成统一、连续的界面形象,先将综合信息楼南翼局部降低一层,形成高度的统一与过度;再将西侧立面局部突出,并采用相近的造型肌理,达成形式上的协调;最后在西北角营造标志性廊架空间,强调主入口昭示性,同时成为沿街展示界面的点睛之笔。
▲ 长方体演变
立面形象 /与蓝天对话:数字化的信息云端
追根溯源,广州白云国际机场得名于南粤名山之一,自古就有“羊城第一秀”之称的白云山。在立面构思中,秉持一脉相承的策略,自然联想到将白云与科技相结合,让综合信息楼与时代共呼吸的美好愿景。因此,确立了“数字科技、信息云端”的设计理念,也借此与蓝天呼应,契合机场蓝天白云的印象特征。
整体造型把控,通过银白色竖向杆件形成整体感和科技感,凹凸的形体变化塑造更具立体感的白云形象,多层次幕墙体系丰富立面细节。以通透玻璃面构成建筑的皮肤,满足维护、采光、通风等基本需求;再以序列杆件形成高低起伏的流动界面,仿如穿上一件时尚的衣裳,行云流水之间,展现出信息云端的科技气质。
在时尚衣裳的编织中,对不同方位杆件的深度及间隙因需制宜、精细控制,赋予其功能属性。西侧加大深度,降低西晒,提高能效;机房处适当加密,避免阳光直射,营造阴凉的室内温感;值班用房外延续韵律,保障充足采光及舒适的观景视野。因项目处于飞行可视区,故将第五立面也纳入重点,进行一体化打造。内庭院地景融入“数字雨”概念,营造出科技与自然交织的情境,置身其中,感受自然与科技的双重洗礼。
▲ 立面拆解
功能组合 /与功能对话:高效运转的最强大脑
作为白云国际机场的“幕后总指挥”,功能组织的重要性不言而喻。采用“人机分离”的策略,将人活动的空间与机房设备空间动静分离;同时凭借方正的平面布局,保证空间使用效率的最大化。
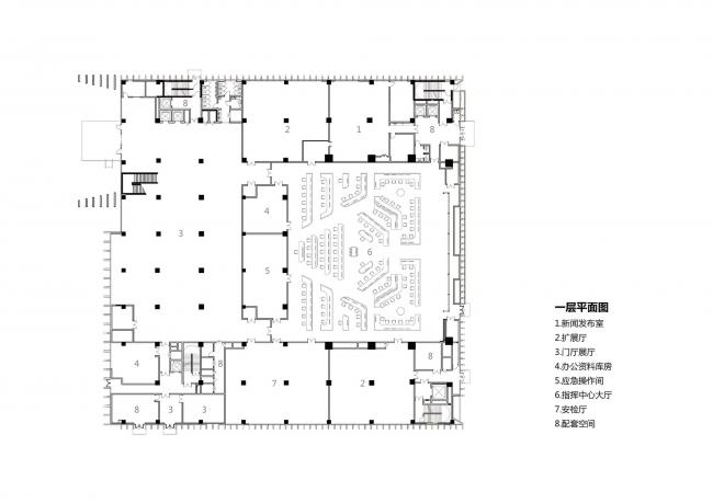
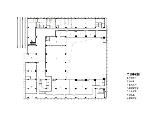
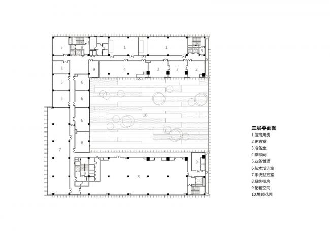
将各种功能空间进行归纳、整合,形成5大功能体块:运行控制中心、展示大厅等大空间用房设置于底层,其屋顶作为景观内庭院,为办公人员提供舒适的休憩场所;信息技术处理等相关数据机房设置于南楼,集约高效;值班用房等人流较多的功能空间设置于北楼,具有更好的城市观景面;南北楼之间通过办公室、会议室、新闻发布室等辅助空间相连,方便到达;顶层则设置为使用频率较低的档案室,满足功能需求。运(BIM设计)行控制大厅作为综合信息楼的核心,将外立面的设计母题引入室内,通过连续云型灯带营造出“信息云端”的科技氛围。
▲ 一层平面图
▲ 二层平面图
▲ 三层平面图
▲ 四层平面图
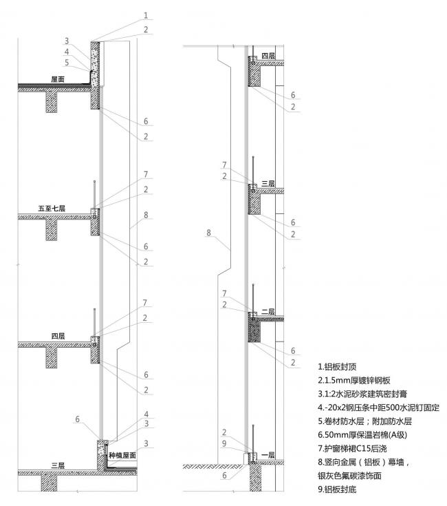
▲ 剖面图
好的设计只是一座建筑生命的起点,项目引入BIM技术,对设计、施工、运营、维护进行全生命周期化管理,使其任凭时间历练,始终焕发出属于自己的流光溢彩。
▲ 大样详图
项目信息
建筑事务所:武汉中合元创建筑设计股份
地址:白云国际机场东南工作区,广州市,中国
类别:办公设施
设计主创:晏晓波
设计指导:侯进
设计团队成员:罗婷婷、夏琰、熊炳宁、杨璐、李喆、吴文卉
建筑面积:32710.0 平方米
项目年份:2017
结构:陈平、梁立勇、潘波
暖通:袁冲
给排水:张永
电气:李莉
弱电:向晓光
岩土:陆杨
BIM团队:邹子曦(建筑)、潘波(结构)、袁冲(暖通)、周涛(给排水)、陶杰(电气)

BIM建筑网
























