项目地点在摩德纳马拉内罗VittorioVeneto街道,这是一个发展良好的住宅网络。建筑外墙北侧跟住宅庭院相接,西侧是公共空间,南侧部分依附于住宅楼,东侧是另一个部分倚靠的住宅楼。设计项目表面积为1175平米。这是一个现有建筑改造项目,北围墙修护,东侧和南侧受办公楼和住宅限制,原先的中央部分拆除,在原体量中置(BIM工程师)入图书馆,高度保持和旧楼一致,外部向外并向下发展。新图书馆入口被设置在西侧。
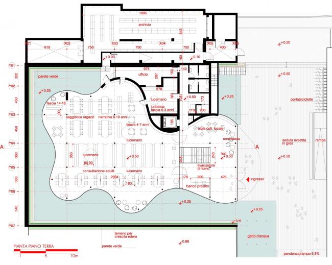
该项目从定义三个主要空间开始,相对应的是资讯区域、大型阅览室和多功能厅,这些房间能各自被独立使用。这三个主要空间中,咨询空间和图书馆财产储存空间,报纸阅览室,影音图书馆,游戏室,多功能室,学习区,当地历史资料查阅室,展览室和临时展区都涵盖了。一些服务空间在房间里从配置就已经能看出一些端倪,写字台,网络接入,图书管理员办公室还有图书馆仓库。一个阅读区将被根据潜在适用人群而设置,用来吸引0至6岁儿童。(BIM)这种区域接纳0至6岁以及11至14岁儿童。高中生和大学生拥有不需互相交流的咨询室和学习区。建筑由三个主要体量构成以最好地满足功能。
一个主要用作咖啡区的透明体积在底层,同时配备了一些服务空间和大桌子,为“神话之地马拉内罗”社团提供的解说空间,以及所有图书馆使用者的咨询和阅览空间。体量还映射在周围的水面上,得到深绿色的回应,丰富了项目保留下来的围墙。屋顶平台伸出指向公共空间,并增加了建筑从街道上的识别性。室内使用纯白树脂地板和家具,外部的绿色通过玻璃幕墙反射进来让他们沿着幕墙的曲线闪耀着绿光。
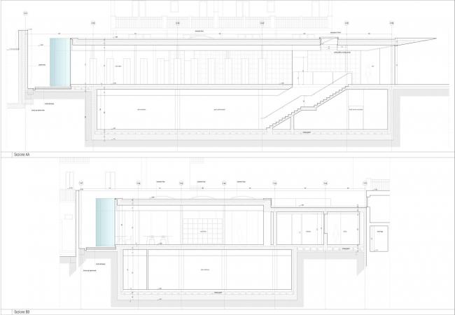
弥漫在图书馆开放空间的灯光在反射游戏中在白色的家具之间来回跳跃,地板上的物件,结构物体,水,还有延续的透明玻璃。一个白色不透明的体量被放在南侧,他包括了服务空间,楼梯通道地下室游戏室,开窗提供自然光照明。地下室为楼梯连接平行六面体入口,电梯的设置服务了残障人士,运送货物和书籍的货梯也有配备。我们很快发现一个多功能室构成自由展示空间,我们可以根据个人喜好进行个性设置。在这个地下区域也有图书馆财产的储藏室,还有小众的当地历史文件。
项目图纸:
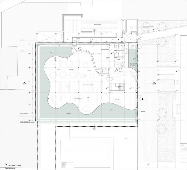
▲ 平面图
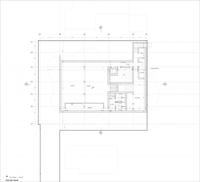
▲ 平面图
▲平面图
▲平面图
▲平面图
▲剖面图
▲剖面图
项目信息:
建筑事务所:Andrea Maffei Architects
地址:Strada Nazionale Abetone Superiore, 41053 Maranello Modena,意大利
类别:图书馆
设计团队:Arata Isozaki, M+T & Partners
项目年份:2011
结构:ing. Mario Sbrozzi, Studio Sbrozzi, Modena
照明设计:Koichi Tanaka, M+K Design, Milano
总承包商:ATI – Cooperativa Muratori Reggiolo e Manutenzioni Generali Reggiane
施工经理:arch. Andrea Maffei / Andrea Maffei Architects

BIM建筑网





















