▲ 建筑与枣树©陈培新
场地位于北京市小经厂胡同的一个大杂院内,地处西南角。占地仅为26.1㎡,四周皆与邻居相接,其采光、通风与私密性是一个极大的问题。第一次来到这里,我就被入口处的枣树和香椿所吸引,场地与树的关系暗示了在这里建筑的可能。我们想要在这里营造一个融入自然的工作室。
▲ 入口草图©陈培新
▲ 树影墙草图©陈培新
▲ 剖透视图(BIM教程)©陈培新
▲ 入口©陈培新
▲ 枣树©陈培新
▲ 总图
空间的探索首先从四合院出发。由于场地的限制,建筑四周被封闭起来,外墙封闭下,空间通过设置内院开放向自然,这是四合院空间形态的同构。但是由于空间过于狭小,内院进一步缩小为天井,这种带有狭小天井的封闭空间是中国传统民居中常见的类型。外围的封闭获得私密性,向内的开放获取自然。
▲ 生成图解
在占地26.1㎡的狭小空间中,划出3.6㎡作为天井。天井下设置楼梯,同时也放下一个储藏室。天井的出现扭转了建筑本身的不足。结合室内增设一处吹拔,南侧设置天窗,封闭的空间获得了充足的采光。
▲ 悬挑台阶©陈培新
▲ 仰视天窗©陈培新
在这个极小的空间里,想要创造丰富的自然并不容易。我们通过“借景”的方式将自然引入建筑,建构一个充盈的内部世界。在这里建筑与自然的关系不仅是视觉上的(BIM工程师)呼应,更是丰富的身体体验。
▲ 晨光©陈培新
▲ 晴天©陈培新
▲ 阴天©陈培新
▲ 树影©陈培新
▲ 树阴©陈培新
▲ 云景©陈培新
▲ 雪景©陈培新
▲ 晚霞©陈培新
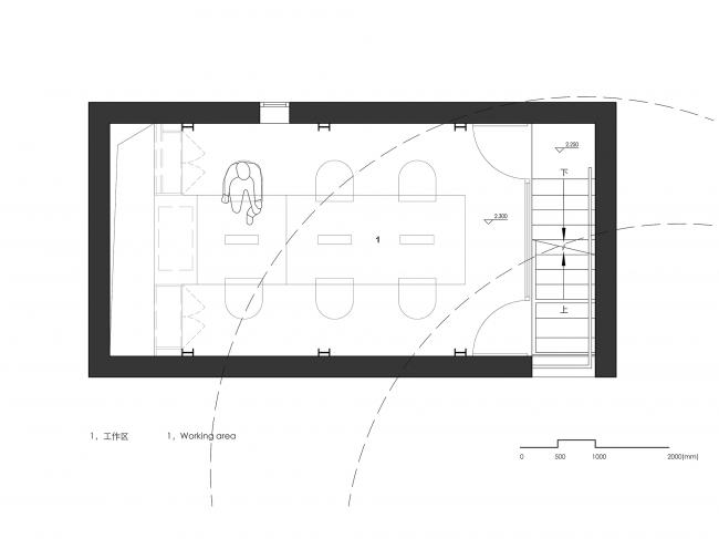
建筑由两层加一个露台组成。一层局部下挖,以增加层高,作为多功能室使用。可喝茶,聊天,开会,移动办公,聚餐。光线从两侧的天窗和天井中撒落下来,让空间在一天当中充满变化。中间用混凝土浇筑的吧台桌集成电源,充电接口,洗手盆等,方便各种功能的使用。书架取消顶板,将第二层隔板镂空,以便光线从书架上透射下来。
▲ 吧台与书架©陈培新
▲ 书架轴测图©陈培新
二层光线极佳用作日常办公使用,一组矮柜设置在吹拔边缘既作为栏杆,又是中央空调室内机的外罩,矮柜衔接长桌,形成一体,简化空间中的物件。来客不知空调所藏何处,又能感受到温度的舒适性。二楼的台阶使用8厚钢板,从墙上生根长出,使其显得轻盈,让光线可以更多的进入下层空间。
▲ 光线透过天窗进入二层空间©陈培新
▲ 天窗自然光©陈培新
▲ 天窗自然光©陈培新
▲ 楼梯间看向办公区©陈培新
▲ 树下的楼梯间©陈培新
▲ 台阶细部©陈培新
北面墙体内侧是整个建筑最丰富的部分。阳光透过枣树枝叶,拍打在白色墙面上,犹如水墨画一般,在微风下晕染开来。随着时间和天气的变化而变;由于太阳高度角的变化,画面也会随季节而高低起伏。这里产生了一幅365天都在变化的画。
▲ 室内光线变化©陈培新
▲ 天井一天的光线变化©陈培新
西面墙体留出一扇小窗,正对邻居家山墙斜线,既暗示与相邻建筑的关系,呼应空间中台阶的斜线,同时也为夕阳的射入提供了一个通道,让黄昏时的仪式感照进办公室,提示着白天的结束。
▲ 西窗与夕阳©陈培新
▲ 夕阳投进办公区©陈培新
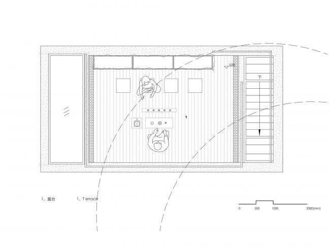
露台进一步探讨与枣树的关系,设计中使用蒲团及矮茶台,让人更贴近地面,被枣树包裹在其下面,营造树下静坐的适宜尺度。西侧以木质花池为栏杆,提高私密性,傍晚时分,坐东朝西,透过花池上的植物,欣赏西边落日。
▲ 露台茶席©陈培新
▲ 楼梯间回看枣树©陈培新
▲ 鸟瞰图©陈培新
在三个不同标高的建筑空间中,我们探讨身体的三种姿态与建筑及家具的关系。一层1100mm高的吧台对应闲适的“站”姿,二层750mm高的桌子是日常工作的“坐”姿,露台100mm的茶台是偏仪式性的“跪”姿。我们希望在这个极小的空间中回归对身体充分的关照,以人体及人的活动为尺度,营造与之相适的场所,这也是我们所追求的“自然”。
▲ 家具分析图
▲ 剖轴测图
▲ 一层平面图
▲ 二层平面图
▲ 屋顶平面图
项目信息
项目名称:樹院
设计:兼建筑
公司网站:www.a-jian.com
联系邮箱: [email protected]
项目设计:2018.04-2018.08
项目完成:2018.08
主创设计师:陈培新
团队:陈培新,常哲
项目地址:中国,北京
建筑面积:41.8㎡
摄影:陈培新
客户:兼建筑,向量建筑

BIM建筑网






































