项目背景
唐堡书院坐落于陈堡镇唐庄村,地处江苏省兴化市,古称昭阳又名楚水。这里自古人才辈出,文化积淀深厚,前有元末施耐庵,后有清代扬州八怪之首的郑板桥,浓厚的“人文气息”是此处最为鲜明的地域特征与氛围。唐堡书院则以传统地域文化为发展母体,通过建造一个村民书院让此处悠久的文化氛围在当代乡邻生活中生根萌芽。这一独特的文化属性要求建筑设计扎根于传统、服务于当代,在此氛围中为当地孩童、村民以及游客建造一个寓教于乐、文化交流的乡村活动场所,为激发出暗含于乡村的传统文化增添了更多的空间可能性。
基地位于村口,北侧毗邻庄西河,南(BIM教程)侧面对村口停车场,东西分别为村道和本地民居。
▲ 轴测图
场地中的自然村落历经百年,沿着星罗密布的河网水系自由发展。在这里,村落纵横穿插,错落有序,河流绕田而过,生生不息。在不经意间自然勾勒出了一幅“山水田园绕城郭,人居美景入画来”的极致村落景象。
村落肌理
设计师为重新诠释这一中国田园山水画般诗意的诉求,实现让建筑真正意义上的融入自然,保持村庄特有标志与肌理,将唐堡村内“村落”与“水田”两种物质空间形态被提炼、置入到村民生活之中。在原本组合形态单一的原始村落布局中,既形成了相互穿插,联动互通的整体建筑布局,又尊重与保护了在历史岁月中积淀形成的村落群体建筑的肌理特性,活态传承了江苏省兴化地区村落肌理的样貌。
▲ 分析图
建筑以南北向为主,东西向辅以多层次的院落穿插贯通,创造出了既私密又丰富的院落、村巷空间。
模糊边界
设计师通过营造纵横交错的灰空间——院落、村巷、连廊,将传统村居中的“檐下空间”极致表现,原本清晰明确的建筑边界逐渐开放。不同单体建筑空间下的功能配置在此发生了联系与交流,相对模糊化的空间边界允许原本孤立的村落文化功能在此汇合。
▲ 分析图
在这里,街巷、院落不仅是流动的交通空间,也是村民聊天、游客休憩的公共场所,建筑在空间上被赋予相互延伸相互渗透的能力。设计师通过对模糊边界的探索,为传统而又保守的村落文化活动营造了开放的姿态。乡邻交流、活动、学习、休闲等社区活动在此发生。建筑功能的分区在空间体块上做出了明确的区分,却没有强加以生硬的物理边界。这既展现了唐堡书院作为公共文化建筑的生动性与开放性,又重现了传统江南民居檐下空间中的文化属性,从而使建筑与人的互动收放自如,灵动丰富。
至此,山水画成就了最诗意的建筑,建筑成就了最具烟火气息的生活场景。
传统建造
另一方面,在建筑的风格样式上,唐堡书院在传统建筑材料的语言上做出尝试。小青瓦、花格木门、花砖、镂空砖墙及叠涩的运用随处都有迹可循。可设计师并不局限于此,试图在创新的基础上加以利用。屋顶起翘正是如此,它(BIM建筑)被巧妙的转化成一种符号,一种只属于唐堡的建筑符号。如此种种细节,唐堡书院都在向来访者营造独特的场所感,在形与神之中重述村落的历史人文气息。
项目图纸
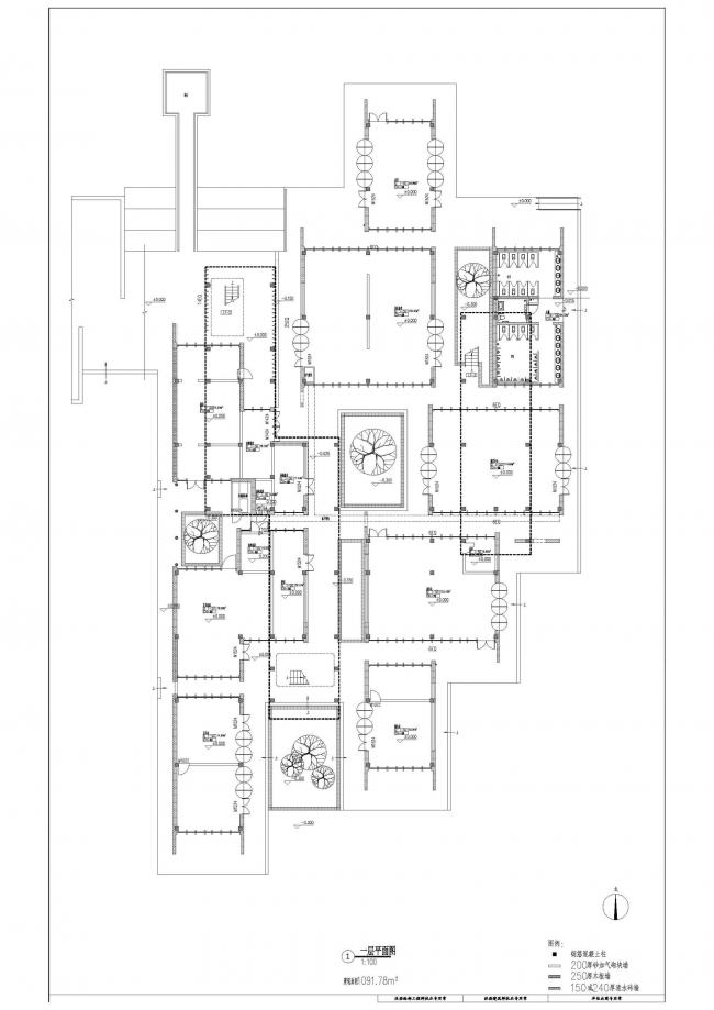
▲ 一层平面图
▲ 二层平面图
▲ 立面图
▲ 立面图
▲ 立面图
▲ 立面图
▲ 剖面图
▲ 节点详图镂空砖
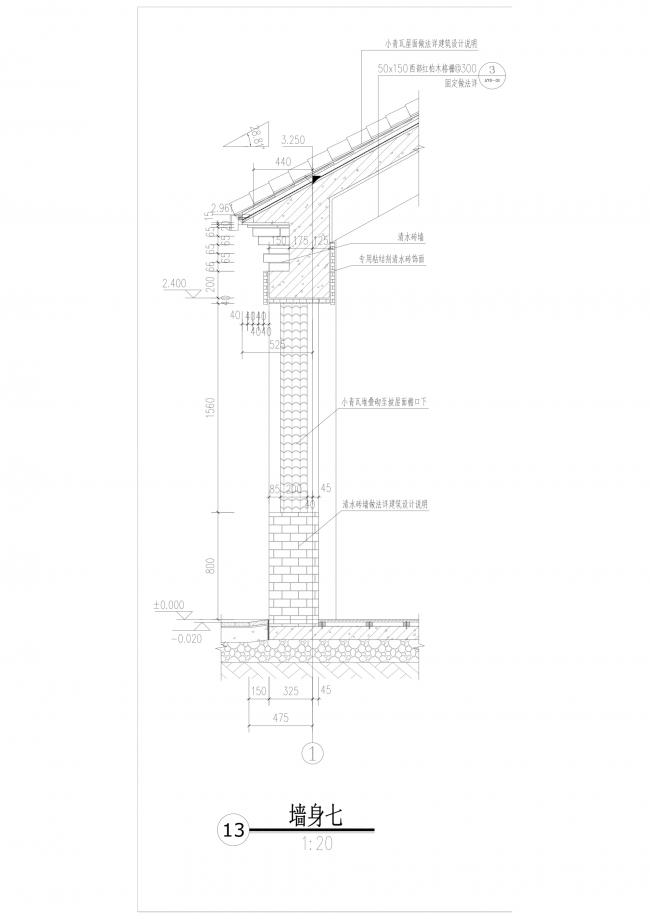
▲ 节点详图叠涩
项目信息
设计公司:华建集团·上海设计 Free Studio
地址:陈堡镇唐庄村,兴化市,江苏省,中国
类别:文化中心
主创建筑师:沈钺
建筑设计:王晔、蒋加苗、邱桁
设计单位:华建集团.上海设计 Free Studio
建筑面积:1424.0 平方米
项目年份:2017
摄影师:张坤
机电设计:陈杰甫、陈艺通、殷春蕾、戴鼎立、胡宏
结构设计:李伟、申伟国
建设单位:江苏杰峰建设工程有限公司
规划及景观:苏州乡伴文化创意发展有限公司 彭锐、温婷、王旭

BIM建筑网





































