[email protected] 是新加坡一座多用途、多人居住的7层建筑。它被视为一个重要的市民建筑,它是由位于活跃的东海岸社区中心的一个公共公园的戏剧性转变而产生的。通过住房发展委员会(HDB)的“重建我们的中心地带”计划,重新振兴贝多克镇中心,该开发项目展示了丰富的绿色特色,以应对全年的热带季节的湿度。
▲ 区位图
这座新建筑的设施从四个游泳池到公共卫生保健设施,都是由位于充满活力的东海岸社区中心的一个公共公园的戏剧性改造而成的。为了尊重其茂密景观和成熟树木的历史公园,拟议的设计在整个开发过程中都带有相同的林业主题,保留了社区公园的特征。这片绿地是实用的,用作附近住宅单元的隐私和隔音屏。
典型的热带建筑
现代的亲生物空间与每一块地板上的绿色植物相邻,它承载着树木、灌木和匍匐植物,包围了建筑的整个空间,减轻了混凝土的影响。此外,它还减少了室内区域的热增益。软景观的选择是新加坡本土的,在建筑内部和周围都有丰富的选择,包括游乐场和适合公园周围环境的健身角。
环境进步特征
该项目以茂盛的绿化和景观美化为特色,包含了一系列令人印象深刻的被动环境控制措施。从雨水和灰水系统,到减轻太阳热量和辐射的锥形立面玻璃和布里斯太阳能元件,其结果是一个环境进步的建筑,以降低能耗为中心,降低建筑运营和维护成本。
[email protected] 的独特方案体现了整体和集成的可持续设计和功能,传达了设计师在降低能耗的情况下创造环境进步建筑的意图,从而降低了整体建筑运营和维护成本。
▲ 绿色分析
为了减少建筑对舒适性机械系统的依赖,采取了一些措施来创造一个适合热带气候的内部环境。首先,早期采用被动设计理念和引风意图,使得建筑群通过文丘里效应促进风通过一级中庭空间,从而形成一个有益舒适的自然通风的社会空间。
通过CFD(计算流体动力学)进行通风模拟的通道化有助于优化设计,并在无空调空间中实现可接受的风速。
▲ CFD通风模拟
▲ CFD通风模拟
第二,内部空间采用高天花板设计,以增强整体多孔性,允许有效的交叉通风和空气循环。这有助于在行人通道和体育综合区创建小气候,以增强最终用户的舒适性。
第三,一个自遮阳的立面被概念化,以减少通过立面获得的热量。锥形开窗、缠绕拉伸织物和垂直散热片有助于减少30%的太阳能热吸收和附带的冷却负荷,使风可以渗透到上层自然通风的走廊中。外围花盆盒作为内部空间的自然屏障,减少热量的获取,同时具有美学和治疗效果。
Ong&Ong继续通过一个360度全方位的设计、工程和管理解决方案来重塑建筑环境。这种凝聚力,加上最新的原子能委员会技术的专业知识,反映出我们致力于成为破坏性的创新者。我们在亚洲主要城市的12个办事处都倡导可持续性、改善和福祉的原则。我们为不断超越期望、提供超越体验的产品感到自豪。
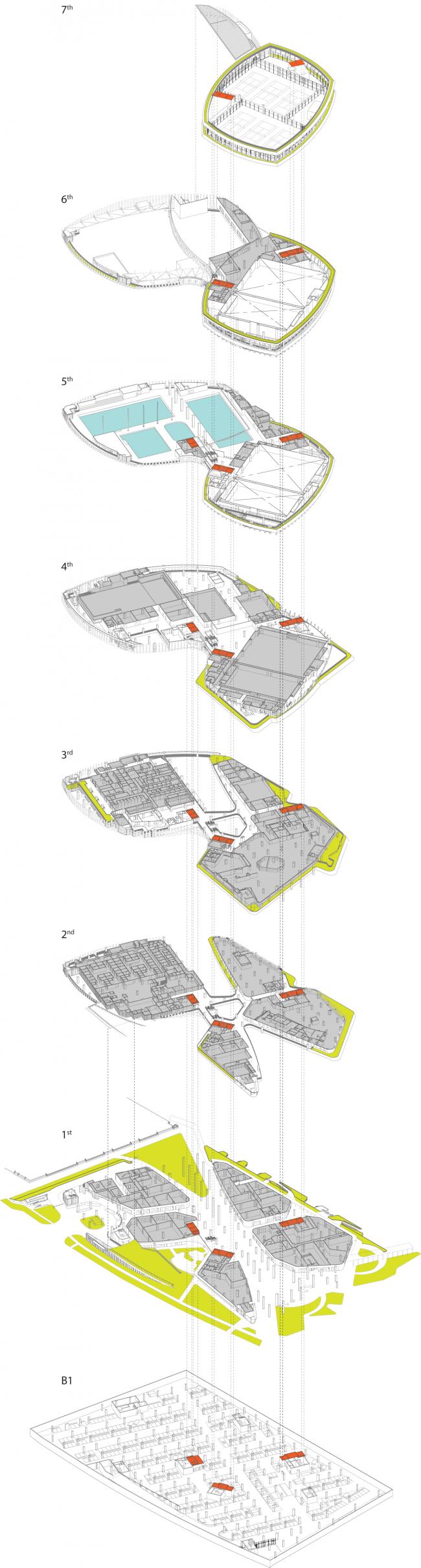
▲ 功能分析
零售中庭
文化活动空间
人民协会
健康中心
运动中心
项目图纸
▲ 一层平面图
▲ 二层平面图
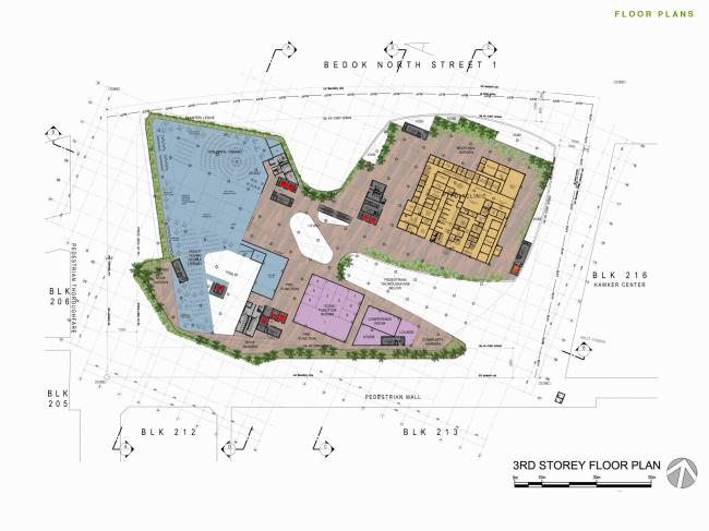
▲ 三层平面图
▲ 四层平面图
▲ 五层平面图
▲ 六层平面图
▲ 七层平面图
▲ 屋顶平面图
▲ 地下室平面图
▲ 剖面图A
▲ 剖面图C
▲ 剖面图D
▲ 轴测图
项目信息
建筑面积:45000平方米
建筑面积:21000平方米
完成日期:2017年6月
地点:新加坡
建筑设计:ONG&ONG 建筑事务所
项目总监:Ashvinkumar Kantilla,Robert(BIM工作) Brodeth
景观有限公司:ONG&ONG Pte Ltd
照明有限公司:ONG&ONG Pte Ltd
机电工程:Rankine & Hill (S) Pte Ltd (member of the ONG&ONG Group)
总承包方:Kim Seng Heng Engineering Construction Pte Ltd
客户:人民协会

BIM建筑网











































































