该项目在物理外壳上所追求的材质特性是所用构件的透明度和真实性,从而以一种自然的方式展示它们,没有什么是预先设定好的或虚假的。让材料的特性为每一个空间创造条件,削减日光和热量积累,向景观开放,实现自然通风,使得与花园的关系成为一个引导性的自然要素。
压缩的土墙组成了地基,该房屋所建造的墙体,在材质上直接呼应了房屋所在地,所使用的物质挖掘来自于土地的不同地层。
楼层被分为三个部分,社交区,私人区和功能区。首层统一了所有社交空间,以抛光的混凝土地板收尾,进行了激光水平校准和磨光过程,使整体统一,让其得以被认为是一整块石料。在从外部转移到内部保护空间的过程中,包含了卧室和家庭房间的二层是一个薄木楼层,目的是创造温暖和私密性,而在互补和功能空间中,陶瓷板的巧妙组合体致力于创造潮湿空间的实用性以及材质的和谐性,从而产生空间感。
所有空间的窗户朝向花园,迫使我们在透明度上下功夫。当地气候和空间朝向让我们得以下手进行工作,因此一个更加充足的空间(BIM建筑)通过多重开窗和与花园及地表覆层的直接联系得以实现。
空间中的人造光源无疑是各个空间的核心要点,它们为在空间中设计不同环境提供了可能。LED灯的使用是一个节能方案,出于同样的理由,目前所有空间中的自然光也都是直接的,可控的,功能性的。一种特殊模数的格栅在现场被制造出来,使得室内得以观赏日落的景观并且控制西立面内部的太阳角度。更深一步来说,它形成了帆布网状光线,灵巧地穿透了房屋中的动态空间。
项目图纸
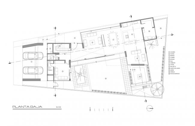
▲ 平面图
▲平面图
▲平面图
▲立面图
▲立面图
▲立面图
▲剖面图A
▲剖面图B
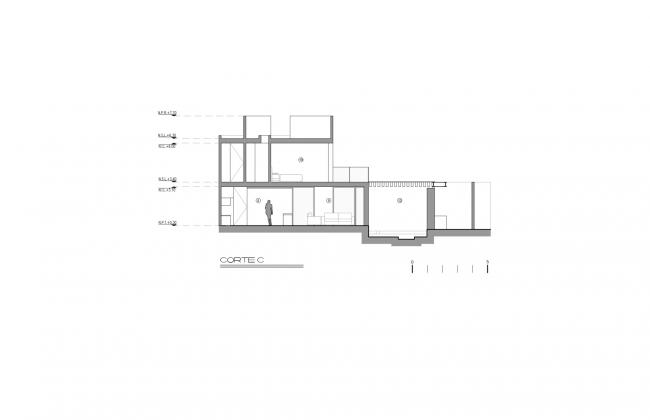
▲剖面图C
▲轴测图
项目信息
设计方:Arkylab
地址:Aguascalientes,墨西哥
类别:独立住宅
主创建筑师:Luis Morán, Ana Martínez
项目年份:2018
摄影师:Oscar Hernández
厂家:B.lux, Bticino México, BTicino, (BIM工作)Interceramic, Bticino Chile, CEMEX, Construlita
合作商:Héctor Paredes, Manuel Narváez, Andrés Ochoa, Guillermo Morán, Daniel Acevedo, Emilio Saucedo, Judith García
结构设计:Ing. José Ángel Ortiz Lozano, Arq. Alberto Sepúlveda

BIM建筑网
































