▲ 1F楼梯间
本案业主是一对园林设计师,对生活向往宁静,喜欢一切自然的事物。空间结构非常有特点,地下室、一层、二层都是错层结构,让每一楼层与上下空间都有互动,让人与人、人与空间多了几分场景交流,这就是空间本来该有的面貌,处处流露着生活的细节。整个空间以中间天井与楼梯展开思索,天井种下一棵老宅挪过来的绿枫树,地下室房间、一楼客厅的茶区、二楼厨房都以天井绿植展开,每处都与自然和谐融合,充满着生活的气息。
▲ 1F庭院
一楼整个客厅保留原有墙体结构,用白色拉丝艺术漆作为主基调,通过正面落地玻璃,让花园园林景观作为客厅主背景,充分尊重自然的力量,让空间与室外达到自然和谐共生,让每一位在里面的人,心可以打开,与自然对话。客厅利用原有的结构柱子设计成开放式的和室品茶区,品茶区与天井之间加了活动胡桃木屏风,让此区域在一开一合之间与绿植、阳光、空气发生关系。
▲ 1F客厅
▲ 1F餐厅
整条楼梯以北美胡桃木拼接,让原本多层的楼梯分隔开左右两边的空间(BIM设计),少了几分硬度,多了几分温度,边界模糊化,让整个上下楼层有了情感的链接。
▲ 1F楼梯间
▲ 2F父母房
▲ 2F次卧
三楼部分,整层为主人区域,楼梯上端开了一个天井窗,让充足的阳光可以洒下来,主卧区域通过设计成几扇屏风式开门,让打开的时候与开放书房区域可以共通,业主喜欢阅读,有大量书籍收藏,整个设计成阵列式的藏书方式。书房分为阅读区与和室区域,让人在其中可以选择不同的场景方式,阅读、品茶与休息。这不乏是一种舒适的生活方式。
▲ 3F 天窗井
▲ 3F书房
▲ 3F和室
▲ 3F主卧
▲项目视频
项目图纸
▲ 地下室平面图
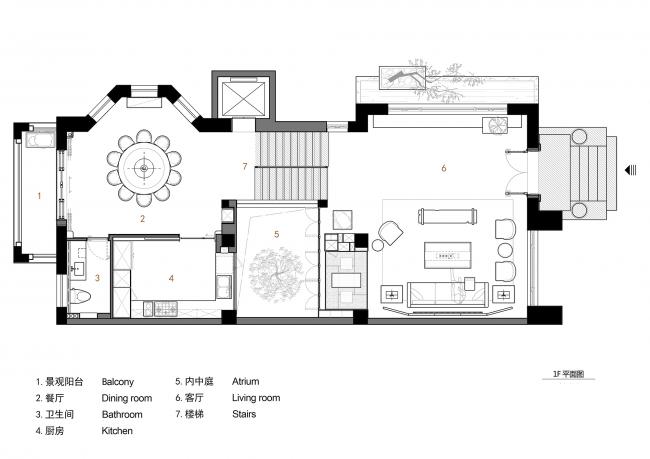
▲ 一层平面图
▲ 二层平面图
▲ 三层平面图
项目信息
项目名称:共生
项目地点:广东省汕头市龙湖区香域水岸
项目面积:约530m²
完工时间:2019年6月20日
设计单位:今古凤凰空间策划机构
主笔设计师:叶晖
设计团队:陈坚、林伟斌、陈雪贤
软装团队:凤栖梧桐
施工单位:万有引力
摄 影:吴永长
客户名称:陈先生
主要材料:塞尔灰石板、灰砂石板、胡桃木实木、KD浅色木饰面、DANILO烤漆板、DANILO艺术漆、不锈钢

BIM建筑网





























