延庆区,位于北京城西北,距离市中心七十五公里。延庆坐拥八达岭长城与蜿蜒山貌,(BIM培训)历史悠久且自然资源丰富。2019年的世界园艺博览会在这里举办,并将作为2022年冬奥会的主要赛区,势必各方宾客云集。
北京世园凯悦酒店的整体设计,取之自然,用它自有的山峦、河流、湖泊、禽鸟和花卉元素营造出绿色怡然的起居氛围与情景体验。
▲ 游泳池·酒店外景
▲ 酒店入口
▲ 酒店园林
大堂
酒店大堂就以八达岭长城及山峦为底蕴。大堂两侧的墙面、接待台后的主题背景均采用山岭造型,层峦起伏、绵延无尽,勾勒出山影叠嶂,从室外延展至室内。温暖的木色、柔和的灯光,营造舒适的室内空间,使客人们感受浓郁的度假氛围。在此基调上,用现代风格的设计手法,配合建筑屋脊的上升方向增加了三个层次,并配合灯带,使得整体空间更加高耸大气;地面使用单一米色大理石的不同完成面-亮面与哑光混搭,既有细节又突出整体感;主题艺术品以山为源,大型吊饰为金属细丝的曲线造型,相互交错,形态恣意奔放;地面自然斑驳色泽的原石与之呼应,加之地面镜像倒影与灯光效果,天然大气。
▲ 酒店大堂
▲ 接待区
▲ 酒店大堂-礼宾台
大堂吧
斜屋脊由大堂延展而下,形成更舒适的休闲、静坐空间;地面由温暖的木地板与寓意草地的地毯组合而成;宽大舒适的座椅与沙发满足大小不同的客群;落地灯、杂志架等的设计,灵感均源于滑雪板、木柴架的原型;阅览室的温暖木质全高书架也以冰雪运动相关的书籍、饰品点缀,阅读桌上的吊灯就像晶莹飞溅起的雪花。既连接起世园会与冬奥会,也突出了延庆的四季皆有景。
▲ 大堂酒廊
▲ 酒店大堂-阅览室
▲ 大堂酒廊
会议区
楼梯:唯一的开放楼梯,连接会议区与宴会区,既承担了重要交通的功能,同时也是此交通枢纽处的焦点造型;如艺术品般宛若实木雕刻而成,却又予人轻盈之感,灵动蜿蜒、穿插迂回。
▲ 会议区楼梯
会议室:灵活多变的组合空间,可开可合;暖木色配以石材的自然(BIM设计)纹理,地毯的温柔厚重,天花的简洁大气,营造既温暖又不失庄重的会议氛围。
▲ 会议休息区
▲ 公共区域
餐饮区
全日餐区:是一座室内花园。世园会选址延庆,意在四季花海之乡。门口的实木树干大花车兼导引台古朴雄厚,其上的白色大理石台板的纯净色彩和简洁形态与之构成了奇妙的对立与和谐;巨幅彩色马赛克的花卉墙面,普进入餐厅区域就点明主题;图案玻璃隔断恰似花窗,加上黑色的金属框边或门扇,勾勒出花园的曲径通幽;加上恰当的灯光与家具,充满度假的愉悦感。
藤架、绿萝攀沿,开放就餐区延续入口处花的世界,又增满眼绿意;米白色大理石、浅色木饰,清新明亮,配合软装活波的色彩,温馨的氛围,营造舒适的就餐环境;餐厅整体使人如置身花的海洋,四季如沐春风,温暖愉悦。
▲ 全日餐厅入口
▲ 全日餐厅
中餐区:以‘鸟语花香’为主题,营造北国村落的温馨热闹。入口一侧的墙面是传统屋顶的灰瓦,进门后的前厅首先映入眼帘的是巨大树根的摆台加上满墙色彩斑斓的花叶,雄浑有力与柔美跳脱;大理石基底的地面上镶嵌着马赛克仿彩绘的花鸟图案,好一个迎客的温馨院落。开放就餐区是木格栅的天花板、水墨的花鸟墙饰、几何拼接的木地板与鹅黄的柔软地毯、古朴的灯具,还有满墙的古意盎然的茶壶收藏,提示人们进入了不同的餐区。
▲ 中餐厅
中餐贵宾室:两间贵宾室风格迥异,一间是浓墨重彩,以中式的屋脊桁架呼应公区的建筑元素,深色的木质地板、大红底色的漆画、仙鹤、古松、红灯笼,古朴而热烈;另一间是舒朗淡雅,精雕细琢的大理石叶状图案的地面与淡绿色的墙面木饰,主墙上的鹅黄色调漆画春意盎然。地上毯、软包与玻璃,家具的精致细节突出贵宾的尊尚、材质的多样性充盈丰满,令贵客宾至如归。
▲ 中餐厅-包厢
凯悦会
‘尚’是这所行政酒廊的主题,时尚而精致。天然色彩的实木地板、木纹大理石奠定了优雅柔和的基调。木色斜梁造型装饰了结构的斜屋顶,使空间的层次感丰富起来。家具、灯具风格时尚,充满活力;现代感的艺术品与镶嵌地毯的图案,共同营造出整体酒店的主题‘绿色生活’。
▲ 行政酒廊-凯悦会
客房 – 回归自然
延庆,四季皆有景,自然资源丰盛。客房设计旨在令住客‘回归自然’。
客房层走道,地毯图案的设计灵感源自康西草原,使人如踏上青青绿草地;客房门口的小鸟灯,似在跳跃着迎接宾客的到来。
▲ 标准层电梯厅
▲ 客房标准层走廊
房间内的主色调以米色、咖色的大地色为主,配以深深浅浅的绿色。木色的地板、墙面柜体、家具;绳编或木框的野趣灯具,令房间内温馨趣致。
结合2019世园会的主题,九种当地的珍贵花卉植物形象构成了近三百间客房的主题墙面。
开放的步入式衣帽间及衣柜,令空间更完整大气;浴室与卧室之间的玻璃隔断,最大限度的加大了空间感和通透度。洗手台的设计恰似一件中式的活动家具,木质的斜向支撑,加上隐藏的照明,轻盈灵巧。
▲ 行政套房
▲ 双床房
▲ 总统套房
▲ 总统套房-起居室
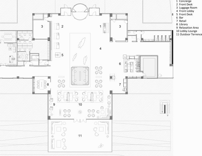
▲ 平面图
项目信息
项目名称:北京世园凯悦酒店
类别:酒店
完成日期:2019年4月
工地面积:15,625m²
地点:中国北京延庆区阜康南路1号院
客户:北京世园投资发展有限责任公司
设计公司:CL3思联建筑设计(https://cl3.com/)
设计团队:林伟而、温静仪、李文蔚、周婕、朱坚
摄影:本末堂

BIM建筑网



















































