如果能够把花草、树木、流水、光和风根据人们自己的意愿从自然界中提炼出来,那么人间就接近于天堂了。
——安藤忠雄
环境对人产生的认知,是潜移默化而深刻的。嘈杂与静谧、封闭与流动、粗糙与细腻,不同的环境,人的感官所感知并触发的情绪也各异。
人类在地球生存的几十万年都与自然密切相处,经过漫长的进化,这种模式早已刻入我们的基因。与此相比,建成环境出现的时间还很短,所以我们天生渴望存在于有自然元素的环境。相关资料表明,如能让室内空间有更多的自然气息,处在其间的人们就能更好地接收、理解信息,及掌控自己的注意力。
△ 项目视频
项目位于交通枢纽主干道,便利的交通带来生产输送效率的提高,但嘈杂的四周,极易对室内的功能活动形成干扰。作为办公和品牌展示的空间,需要有怡人安静的氛围和传递品牌的介质。
△ 正门立面图
“隔”无限的空间包罗万象,有大自然的草木、太阳、雨水,也有很多人为的嘈杂。而室内空间的奇妙之处在于,可通过建筑手法有选择地将人们不需要的事物剔除在外。
△ 入口
空间的转换,需有触发人的感官变换的渐进过程。通过蜿蜒的“桥”,曲长的路径,拉住了自外而入的疾尘步伐。不同的节奏,示意着不同环境的开启。
梯、方、圆,形态各异的体块,错落叠合。入口设计在隐于方形体块一侧,无任何装饰的水泥灰白,有种猜不透的冷静感,脱俗而低调的门面跃然而现。
△ 功能分析图
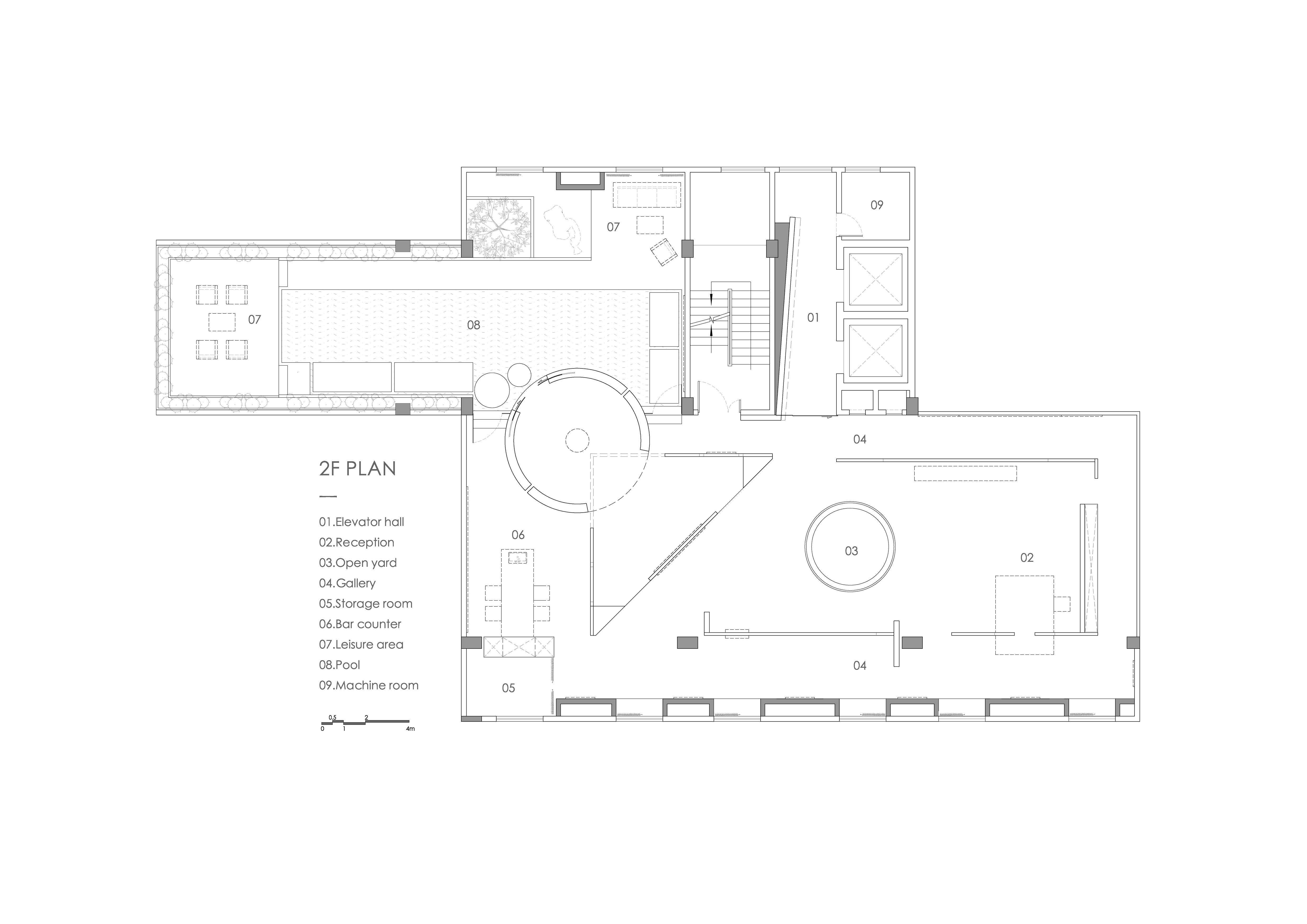
二层空间用非连续性墙体框出一个“回”型走廊。虚实相间,似隔非隔,似断非断,于无形中营造侘静的氛围,隔离了外界的喧嚣。
人们在空间的活动路径,不仅可连贯成“回”字型,且可在其中“虚”隔处,随意穿梭。用建筑重塑出空间的流动性。
△ 艺术画廊
室内的“回”型走廊与内阳台的水池环形走廊相连,串联成一个长路径的“艺术画廊”。整个空间的功能实现了多样化和共享化,使得空间充满想象,产生更多的可能性:交流、思考、办公、展览、新品发布……
“合”大自然的杰作,是对空间和艺术灵感的另一种滋养。当喧嚣和浮躁褪去,水、光、风在空间中自然地流动,人们对其细微而有生命力的变幻,会有更细致的感受。因为这些灵动的存在,使得空间与人们的灵感更具生命活力。拉近人与自然的距离,是对生命、人文的一种很重要的关怀方式。
光 / 透过建筑体块的流转
自然光给予空间特性,自然光给予建筑的生命,因为建筑是由光的环境照射而产生生命。
——路易斯·康
早上的太阳光,穿过大面积的窗户,投射在非连续性的墙体,切割成不规则的光片。光,会从各种特意为其预留的外立面开口处洒进内部空间。随着投射角度变化而变化,在建筑上留下今日的舞蹈。
水的气息 / 室内的调节器
红色巨型圆柱连贯两层空间,水槽将墙外的雨水引入室内,从二层落至一层,水声在圆柱体内回响,仿若山谷林间奔腾而下的山泉的声音,令人心旷神怡。
露天阳台用一方水池,框出了另一条回型走廊,与室内的走廊形成异曲同工之妙。从露天延伸到室内,模糊了内外间的界限。大面积的水池,又成为室内生态调节的一部分,增加了湿度,使空间更加舒适。
风 / 室内的无形感受
南北朝向的坐落,风可从一层圆柱体的南北面开口直达至二层。这会是种很奇妙的体验,二层周围如围起的“盒子”,但站在圆柱附近,可感受到阵阵风的凉意。
两边对流的内阳台,让风能随时穿过,而水池让无形的风变成了可见的存在。风吹皱的一池水,在阳台顶部灯光的照射下,波光潋滟,如风在与水共舞。
△ 风流动示意图
△ 一层平面图
△ 二层平面图
△ 细部结构
从品牌中抽象演绎出三角、梯形等几何元素,运用到建筑形态的构建。于企业的特色中找寻品牌传达的最佳契合形式,用体块构筑的“艺术画廊”颠覆了传统制造业的企业形象;实现了多样空间功能;对品牌内涵的含蓄表达,更添悠远意味。
品牌需要表达与传递,需要一个与各种因素产生聚合反应的空间,这个空间也是品牌的一种表达。
品牌的市场定位决定了企业空间所承载的群体,是更注重能展现品牌内,氛围清静舒缓、激发灵感的空间。
水槽出口设计,于细节处融入品牌元素。三角形交叠的天花和地板三角的线,是品牌的延展。
项目信息
项目名称:麦蒙服饰办公前厅
项目面积:500 m2
项目地点:中国 佛山
设计单位:正方良行设计
主创设计:徐庆良
设计团队:黄缵全
施工图纸:和作舍
软装设计:瑞坤软装
材料供应:归朴选材
品牌家具:良行文化
主要材料:TOA太涂水泥基艺术涂料、费罗娜陶瓷、90+陶瓷、灰色大理石、铝蜂窝复合不锈钢板
设计时间:2019
完成时间:2020
项目摄影:刘宇杰

BIM建筑网




































