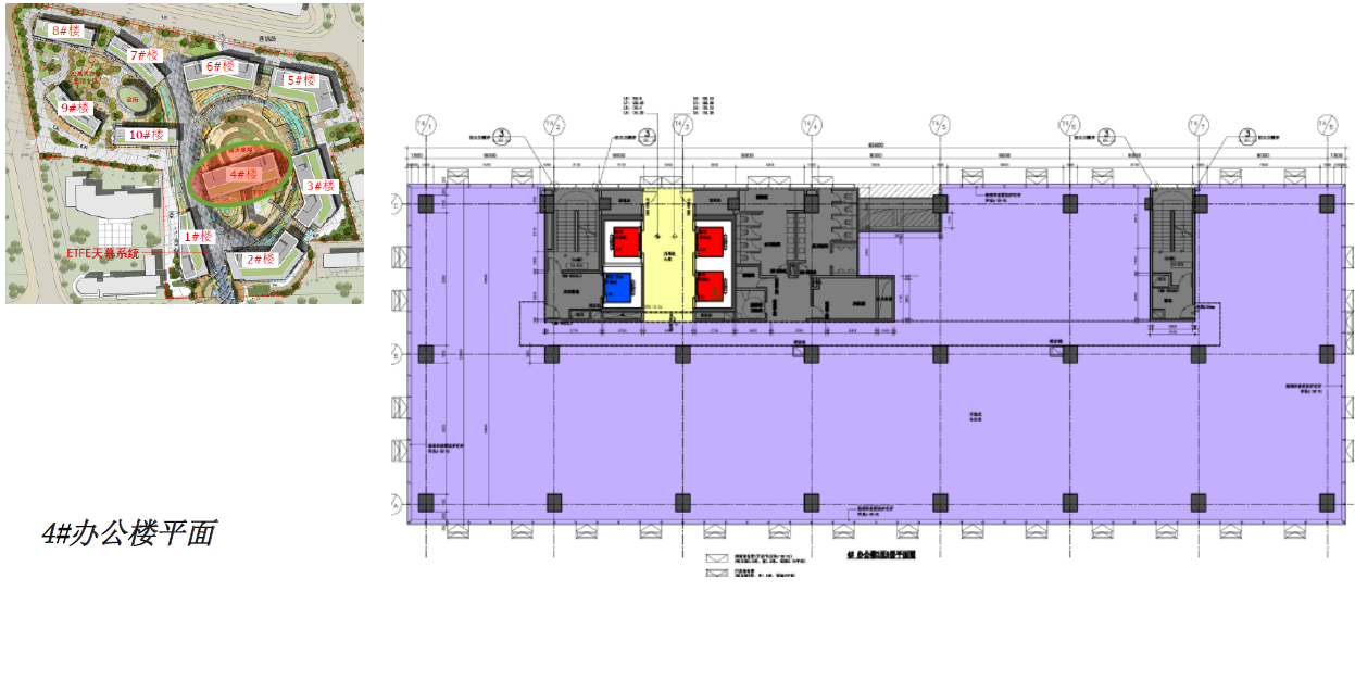
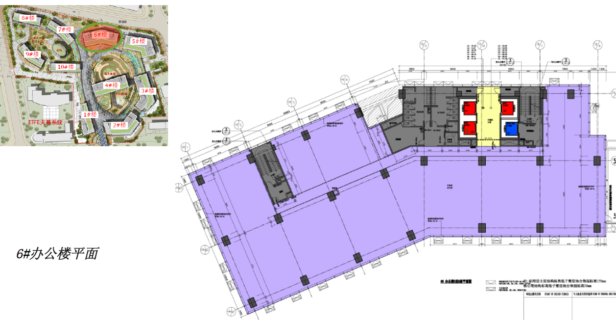
项目位于上海市长宁区新泾镇(市区的西北角),临空经济园区内核心地段。东至福泉路、南至北翟路绿带、西至协和路、北至通协路的长宁区新泾镇224街坊2、3丘(临空13-1、13-2)地块
- “建滔商业广场”由香港建滔化工集团投资。并通过旗下的上海展盈房地产(项目开发商)开发建设的。
- 香港建滔化工集团(香港联交所上市公司)是全球最大的履铜面板生产商,国内规模最大的高端线路板生产商之一,也是国内最主要的化工产品供应商,是拥有4家上市公司的跨国性港资企业,目前在中国大陆拥有60多家投资生产企业,员工超过5万人。2009年营业额达237亿港币,2010年上半年营业额达170亿港币,预计全年营业额可超过300亿港币。
- 近年来,香港建滔化工集团在国内的住宅、CBD城市综合体等项目的总投资近100亿元人民币,总建筑面积超过300万平方米。
- 上海建滔商业广场预计2014年6月主体结构封顶,2015年12月底竣工。
微信公众号:xuebim
关注建筑行业BIM发展、研究建筑新技术,汇集建筑前沿信息!
← 微信扫一扫,关注我们+

BIM建筑网











