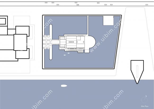
葡萄牙于1940年庆祝了其复国三百周年,国家诞生八百周年,一系列的庆祝活动在葡萄牙世界展览中达到了顶峰。庆典在贝伦市为其新建的帝国广场中举办,它旨在宣扬国家历史中最显著的活动和成就。
广场的位置被包括耶罗尼莫斯修道院、阿方索 · 德阿尔伯克基广场贝伦塔和塔霍斯河在内的地标包围,这象征着国家探索的岁月。
水镜(Espelho de Água)作为盛典的餐厅而建,它由 António Lino 设计,并在展览的主创建筑师 Cottinelli Telmo 的指导下完成。现代化的样式能够满足原有功能的需求。
建筑的两侧被水环绕,营造出了建筑的漂浮感。建筑整体的结构遵循着一套严格的度量标准,入口处的大型雕塑也符合这一比例。
原来的建筑是由两个分开的部分构成的,并由第三个作为入口的部分连接到一起。在展览之后它就被拆除了,取而代之的是一个有着短暂特征的建筑,它的屋顶由被锌片包裹的金属构架支撑起来。
现在的改造旨在将建筑恢复其在经历重大变化前的样子,正如其在1940年展览节时的特征。改造移除了在视觉上被污染的部分、南面一个非原始结构被拆除了并恢复了建筑整体的框架。空间中心的一个大天窗暗指着曾经将原有主要结构分离的露台。
▲ 总平面图
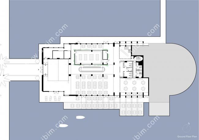
位于首层的咖啡厅、餐厅和阳台连接,它能将观众引向重新复原的艺术家 Sol Lewitt 于1990年创作的壁画。中央的厨房两侧是被竖向植物所覆盖的墙。
建筑的北面是一个更加休闲的空间,在这里能够看到贝伦文化中心、耶罗尼莫斯修道院、一些商店和夹楼。在此同样还能看到通向二层办公区域的楼梯。在西面主要的入口区域一个开阔的空间被用作美术馆和音乐空间。
建筑的内部充分展现了它的结构,让观众能看到组成它的不同区域。建筑的完成面是极简的,采用了混凝土地面和白色表面。线状的灯光勾勒出室内戏剧化的空间,而南北外墙圆形的照灯更进一步强化了建筑和1940年项目的联系。
项目图纸
▲ 一层平面图
▲ 剖面图
项目信息
项目类型:餐厅,美术馆
项目地址:里斯本,葡萄牙
建筑师:DC.AD;Victor Vicente
项目年份:2014
摄影师:Francisco Nogueira
首席建筑师:Duarte Caldas, Vitor Vicente
项目团队:Sandra Dias, Tiago Pereira
顾问 1:Pedrita Studio
顾问 2:Vertical Gardens
承包商:Tulipa Real

BIM建筑网


























