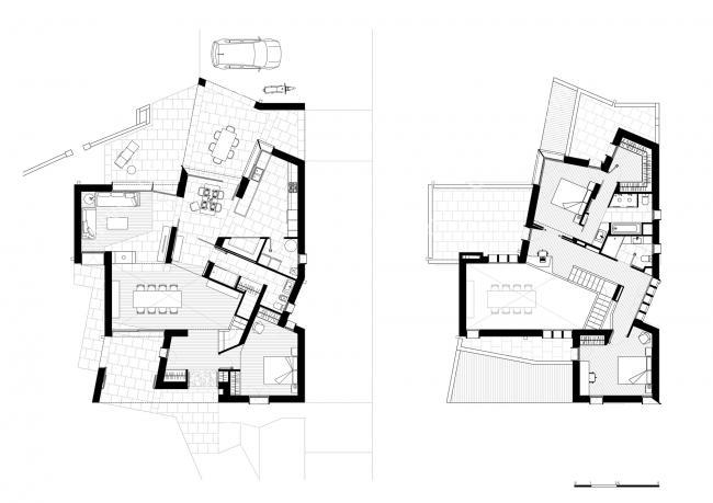
该住宅的方案产生于空间及空间之间的联系,领会到房子的日常活动构成了叠加混合的不同空间。双层高的餐厅被作为房子的中心和主要空间。其中心地位意味着与主要功能空间的连接:与客厅连成一体,与厨房、通往二层的楼梯、房子正立面的露台和大厅。同样,二层餐厅所处的双层高空间也组织了通往楼上两个房间的流线,并提供了书房空间。
▲ 一层和二层平面图
场地上现有的植被将通过视线控制建立内外部之间的密切联系,而被融入到室内,同时关注并勾勒某些有趣的全景图,如特拉蒙塔那山的美景或同一块场地上的内部景观视野,通过巨大的开口引入这些景观,构成房子的美景。考虑到房子的隐私非常重要,这些开口大多都位于房子的后面,与美景相交叠。与邻居的关系被最小化,仅设置了几个朝向他们的开口。
房子的结构在任何情景下都能看到,它也是内部空间的特征,展示了房子所用的构造体系,也直接回应了空间的生成和路径的测量。该结构是由承重墙和木梁板、T形或L形的钢筋混凝土梁支撑的马雷石凹形瓦所定义。
▲ 结构细节
与房屋相连的露台被看作房子的延伸,强化了项目所寻求的建立内外部关系的理念。
项目图纸
▲ 景观平面图
▲ 总平面图
▲ 南立面图
▲ 北立面图
▲ 剖面图
▲ 剖面图
▲ 窗框细节
项目信息
项目类型:独立住宅
项目地址:PINA,西班牙
建筑设计:Salvà Ortín Arquitectes
面积:2906.0平方英尺
项目年份:2019
摄影师:Pol Viladoms Claverol
制造商:Living ceramics
主创建筑师:Catalina Salvà Matas, Hector Ortín Isern
设计团队:Catalina Salvà Matas, Hector Ortín Isern
结构设计:Ma+Sa consultoria
工料测量师:Carme Aguiló Mora
建筑施工:Dayrom Proyectos y Construcciones

BIM建筑网

























