这个新古典主义的别墅位于一个很长而狭窄的地块内,在平面上被划分为非常相似的几个部分。原有状况既不适合热带气候也不适合河汊旁的地理位置。
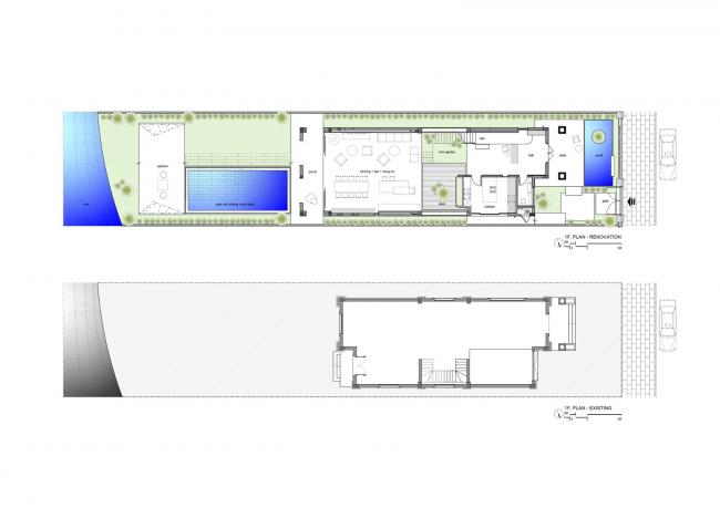
▲ 一层平面图
创建门廊,扩大后院,放置中庭于别墅中心,这一系列动作是相当大的调整。一楼的公共空间、二楼和三楼的卧室都更宽敞了,可以欣赏到花园和河流的景色。此外,门廊和中庭有助于空间留白,更重要的是匹配热带气候。在门廊内感受风、雨和自然,是一种令人回味的体验。
植物、砾石……被放置在不同的地方,包括贯通一楼和上面楼层的中庭内,盥洗室旁的区域。滑门、窗户和天窗有助于调节通风。混凝土百叶和木制百叶让光线穿射进来——叙述着太阳光影的流动。它还能降低热量,同时保持隐私。
家具由水磨石混凝土、天然木材、红土和白色粉刷等原材料制成。外立面有所简化,以取得与当地其他别墅外观上的统一,但仍然微妙透着优雅感。
后院内有一个休憩场所,有绿地、植物和游泳池。利用滑动木地板覆盖游泳池,有助于提高安全性并提供了一处游乐场地。这个地方可以用来晚餐或聚会,带来如同度假般的放松和舒适。
项目图纸
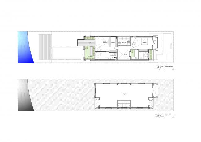
▲ 二层平面图
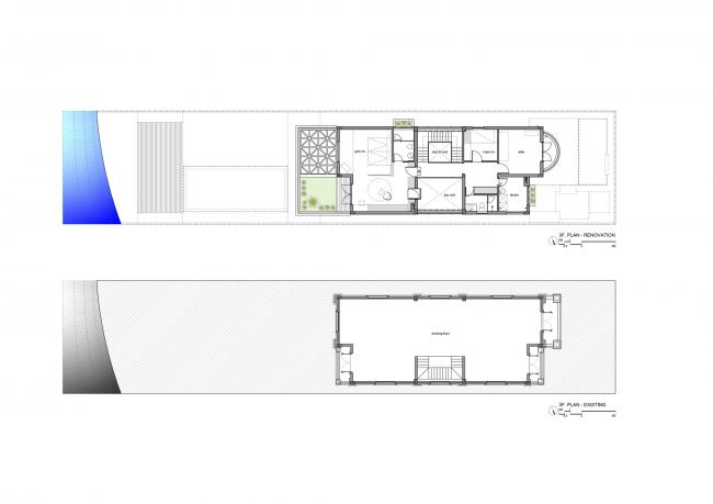
▲ 三层平面图
▲ 四层平面图
▲ 剖面图
项目信息
项目类型:独立住宅,更新项目
项目地址:河内,越南
建筑师:Nemo Studio
面积:468.0平方米
项目年份:2019
摄影师:Vu Ngoc Ha
厂家:Vietbeton, Minh Viet
主创建筑师:Liz Nguyen, Nghiem Phong
设计团队:Hoang Viet, Aki Phuong, Tran Phi, Do Quyen
项目经理和监理:Tran vu Duong, Luu Khac Vinh
照明:Alis & Greentek
结构:GEC
基地面积:450 平方米

BIM建筑网




































