▲ 茶室1
项目位于江苏省南京市江宁区,距离江宁区中心约11.7公里,四面农田,前后两处水塘,亦可遥望见北方连绵起伏的群山,一派田园风光。业主希望利用废弃的屋舍扩建民宿,以期在城市边缘打造一处隐归田园的居所,朴素地再现田园牧歌,又不失对高品质居住环境的追求,让久居城市的人群在自然景观中得到心灵的释放。
▲ 建筑外立面
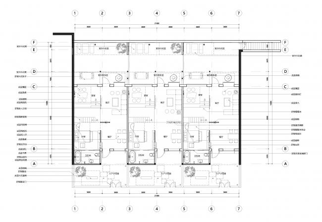
原场地由一个开间21.6m,进深8.2m的房舍和前后两个院落构成,设计将原始建筑平面于东西向等分,保留原有门窗、结构梁,形成三个相对独立的居住单元,保证了各自的独立私密性,运营方面也可作分开出租。
▲ 概念平面图
▲ 起居空间
▲ 茶室2
▲ 餐区1
原始建筑5.3m的层高为阁楼的打造提供了一个契机,设计得以超越常规套房模式的独有客房布局,形成三种不同高度的空间平台:一层空间、过渡空间(阅读区)和阁楼空间,极大地丰富了竖向上的空间体验,随着空间标高的增加,私密性逐步增强。每个套间面向的是一个亲密的小团体,因此我们希望室内的空间为人与人的交流、互动创造平台与条件。
▲ 立体空间体系
▲ 休闲平台
▲ 阁楼
我们试图构建空间的延续性和整体性,以打破传统室内“房间”限制的壁垒。建筑内部没有一处完全封闭的功能性空间,“似断非断”格挡设计代替了“门”:从一层就餐区透过衣架可若隐若现地窥探到卧室;卧室与阅读区通过原始的树干木栏间隔限定空间的同时又保持了视线在一定程度上的通透性;榻榻米式的茶艺区与客厅空间得以相互借景。
▲ 餐区2
▲ 餐区3
▲ 卧室
▲ 茶室3
阁楼卧室东西向的界面上试图营造“户外”的状态,帐篷自然露营在田野上的感觉,可以想见皓月当空,与君同坐帐篷中,可俯瞰四周,亦可从天窗仰望星空,安然闲适。
▲ 阁楼天窗
▲ 后院夜景
▲ 书架台阶
外部景观平台通过控制庭院之间隔断的开合,实现“私密休憩”与“开放聚会”之间两种空间模式的自由转换,以实现多样化空间需求,满足不同人数租客。
▲ 后院
材料与乡野元素运用:入户秋千、绳垂挂下的沙发吊床是心归田园的悸动;质感斑驳的浅灰色艺术墙漆结合古朴的老榆木装饰,餐桌区顶部纱幔自木架悬挂来,整体透出如置身乡间的野趣,飘渺悠闲,古朴静谧。用朴素的材料组合打造出了素雅且极具辨识度空间。
▲ 老榆木隔断
▲ 秋千
▲ 茶室4
室外景观平台也延续木门的肌理,青砖铺地,亦用作镂空围墙,顶部布满蓑草的凉亭和竹木编织的茶座,可游可憩,这时候再远眺远方的山、村落的袅袅炊烟和脚下的水,正应了一句诗:
▲ 建筑环境
暂离城镇居乡野,屋外炊烟悬半沟。是处临溪接翠岭,此身喜静羡清幽。
▲ 前门
▲ 卧室吊床
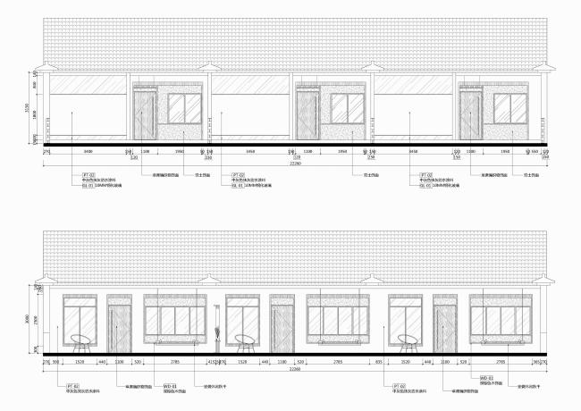
入口处做挑檐处理,呼应原建筑的徽派檐口,一上一下形成韵律感,入口挑檐打破单调缺乏变化的立面的同时,为游客提供了标识及引导功能。结合外嵌的浴室空间,正好为入口构造了一个内凹的灰空间,保证了良好的隐蔽性。
▲ 建筑环境(夜)
▲ 前院
踏青石板路而来,叩开木门,在原木青砖的古朴世界中品味素雅和野趣的同时又能享受乡间贴近自然的生活与居住状态。
▲ 平面图
▲ 立面图
▲ 剖面图
▲ 地面构造节点
项目信息
项目名称:泊舍
设计方:平介设计
项目设计&完成年份:2019
设计主创:黄迪
设计团队:孙雪怡,陈雪琦,杨楠
项目地址:南京,江苏
建筑面积:300m2
摄影版权:姚杰奇
客户:慢姑娘田园泊舍轰趴民宿
合作方:苏州再造设计

BIM建筑网































