大熊猫基地星星产房动画 ©Raying
▲ 大熊猫基地星星产房基地位置
THDL(天华建筑创作工作室)受成都市公园城市建设管理局、成都大熊猫繁育研究基地、成都天府绿道建设投资有限公司委托设计的“大熊猫基地星星产房”于近期宣布进入施工图阶段,预计2020年初开工,在同年冬季竣工。
该项目位于成都大熊猫繁育研究基地扩建部分北湖片区——未来大熊猫繁育和生长的重要区域。考虑到产房是整个基地最重要的单体建筑,建筑师在设计中充分融入了当地文化意象,力求实现熊猫居住体验和游客观赏体验全面升级的同时,解决后期高峰人流量管理的问题。
▲ 总平面图
场地坐落在密林围绕、地形复杂的山区,如何以最轻盈的姿态介入自然,并全面提升熊猫的生活体验与访客的参观体验,是设计过程中一贯秉承的理念。建筑师希望用设计营造建筑与自然相融相错的优雅意境,将产房隐匿在熊猫栖息地的自然环境中,实现人类与熊猫和谐共生的美好画面。
星星产房鸟瞰 ©DZI
畅想一下,薄雾散去,晨曦间隐隐勾勒出星星产房的轮廓,建筑几乎融入了高差复杂的地形之中,几只熊猫宝宝在密林里休憩、酣睡。
▲ 概念生成
设计灵感源于几片交叠的竹叶,同时揉合星星与大熊猫手掌的元素,飘落在高低起伏的地形上。形态以展览空间为圆心呈旋转状,扩大参观空间的同时与另一端四片叶尖的“熊猫家园”互不干扰。
▲ 一层平面图
▲ 地下室平面图
▲ 屋面平面图
“如何为熊猫宝宝们提供一个亲切温暖的‘家’、为来自全球各地的游客提供一个浸入式体验的场所,从而打造中国独有的文化名片是设计过程中一贯秉承的理念。”
————侯岳,THDL(天华建筑创作工作室)设计总监”
星星产房熊猫室内活动场地 ©DZI
十二个熊猫的室外活动区域和四个幼年熊猫室内的活动场地均利用天然地势做了自然造景丰荣,最大化熊猫的自然活动范围,让待产熊猫和宝宝们无论在室内外都可以自由地生活。
▲ 星星产房参观模式迭代
星星产房室内参观空间 ©DZI
基地地形此起彼伏,最大高差可达16米。建筑师化挑战为机遇,利用复杂地形设计了丰富的室内空间关系,增加熊猫室内活动场地展示面的同时,扩大观赏角度和观赏面积,达到参观模式的全面升级。室内参观栈道上下蜿蜒曲折并加入地洞、地堡、阶梯坐台等元素,让访客可以多角度观赏熊猫,满足科普性的同时增加了观赏的趣味性。
▲ 星星产房建筑材料
项目在材料选择和结构设计上延续了生态、自然、可持续的设计理念。室内展厅的地面采用大块鹅卵石状的现浇水磨石,栈道采用超耐磨竹木铺地,墙面是手凿粗糙混凝土,室内展厅的玻璃采用双面减反夹消音胶片的超白玻璃。丰富的自然材料运用营造了清爽生态宜人的室内外观赏空间。
星星产房入口空间 ©DZI
星星产房出口地堡和看台 ©DZI
▲ 木结构大样图
▲ 天窗大样图
结构形式上,入口的等待区和出口的咖啡厅均采用了纯木伞状结构,由6根花旗松胶合木条围合而成,柱式自然生长转换为梁,可耐久50年。胶合木格栅上有攀爬绿植,阳光洒落下来,树影斑驳,与周边自然景观融为一体。大熊猫室内活动场地采用复杂双曲天窗,并布有10%平行电动开启扇,保证自然的采光和通风。这些结构上的创新都是国内首例。
星星产房育幼室参观空间 ©DZI
▲ 流线分析图
最受关注的展示初生熊猫的育幼室,被设计成完全脱离后勤流线的展览空间,以确保360度无死角观赏。同时,将传统的单线单向参观,设计成环绕式退阶四股人流并行参观,以确保单时间内最大参观人数。在游客排队等候区域还设计了多媒体交互科普展台,让游客在等待时也可了解科普信息。
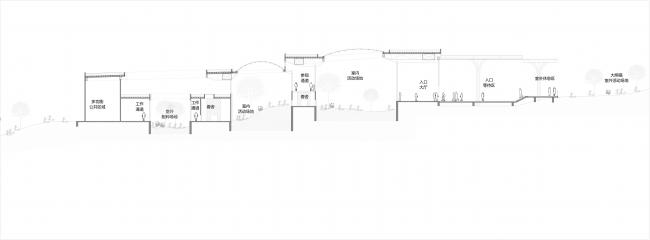
▲ 1-1剖面图
▲ 2-2剖面图
▲ 3-3剖面图
▲ 4-4剖面图
通过打破室内外边界,星星产房的方案意在不仅为熊猫提供宽敞、自然舒适的室内外活动场所,也为游客提供丰富多彩的沉浸式体验,从而描绘出一幅3.0版的、人类与熊猫和谐共生的美好画卷。
▲ 东立面图
▲ 西立面图
▲ 南立面图
▲ 北立面图
模型照片
项目信息
项目名称:大熊猫基地星星产房
建筑事务所:THDL(天华建筑创作工作室)
主创建筑师:侯岳
设计团队:侯岳、练霓裳、林汝佳、张慧丽、徐骋、刘恒、熊凯光、潘雅明
项目地址:成都市成都大熊猫繁育研究基地
项目完成年份:2020年(预计)
建筑面积:5894m2
业主:成都市公园城市建设管理局、成都大熊猫繁育研究基地、成都天府绿道建设投资有限公司
施工图:成都市建筑设计研究院
景观设计:成都市风景园林规划设计院
室内设计:成都市建筑设计研究院
摄影师:N/A

BIM建筑网






































