该混凝土住宅位于瑞士卢加诺北部的科马诺山,是一个村庄里的独栋别墅。场地以前被葡萄园所占据,呈现细长的梯形形状,这决定了建筑的体量。场地东、西两侧有着吸引人的景观,而南、北两侧受到近处相邻房屋的约束,因而房子就像在可居住的墙内构想出来。为了避免过长且封闭的体量的影响,并且要确保一定的隐私性,建筑的侧立面通过一系列长而深的矩形翼连接。
使用的参考材料是灰色钢筋混凝土,并根据实际情况用不同的方式进行处理。现场浇筑的混凝土侧翼与采用古老的“strollato”技术的填充元素交替使用,该技术多在伦巴第地区的别墅中所采用,即将卵石和水泥混合,用泥刀手工抹平,然后再进行打磨,从而将古老传统和新的建造技术结合了起来。
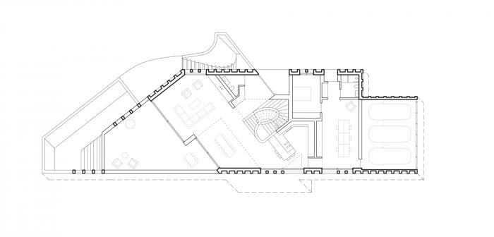
一层占据了大部分可用面积,容纳了主要的任务书指示空间:接待室、厨房、工作坊和客房(有单独的入口通道)、车库以及作为休息室的延伸的宽敞露台,露台因此成为内部与户外之间的过渡空间。
▲ 一层平面图
二层的面积较小,容纳了私人住房,即三间卧室套房和儿童活动室。二层相对于一层呈现不对称的布局,加上透视效果的影响,使得从街道上看过去房子逐渐变小,而从后面的游泳池看过去,房子又呈现出相反的外观效果。
▲ 二层平面图
最后,地下层包括了酒窖、桑拿房和健身房。三个楼层空间通过位于起居室中央的景观楼梯连接,该景观楼梯是整个家庭的中心点。
▲ 地下一层平面图
▲ 屋顶平面图
▲ 南立面图
▲ 东立面图
▲ 剖面图
项目信息
项目类型:独立住宅
项目地点:科马诺,瑞士
设计方:DF_DC
面积:505.0m²
项目年份:2018
摄影师:Giorgio Marafioti,Simone Bossi
制造商:Glutz,Knauf,Stobag, VARENNA
主创建筑师:Dario Franchini, Diego Calderon
设计团队:Nicola Andreani, Nicole Vairetti, Veronica Marzorati
工程师:AF Toscano
景观设计:Thierry Dalcant

BIM建筑网






















