客户要求房子除了具有良好的起居室以面向场地所提供的最重要的事物——风景之外,还能够满足这个拥有小孩子的家庭的功能需求。这些需求也必须符合这对夫妇的项目预算。
面临的主要挑战是如何在陡峭的场地上进行项目规划。基于此,我们设计了一栋开放的、可以宁静沉思的房子,提供令人惊叹的山景和城市景观,明净的建筑和重叠的楼层适应了最佳的场地平面。
建筑体量是线性的,以轻透的结构和露台开口为特征。
室内空间
项目图纸
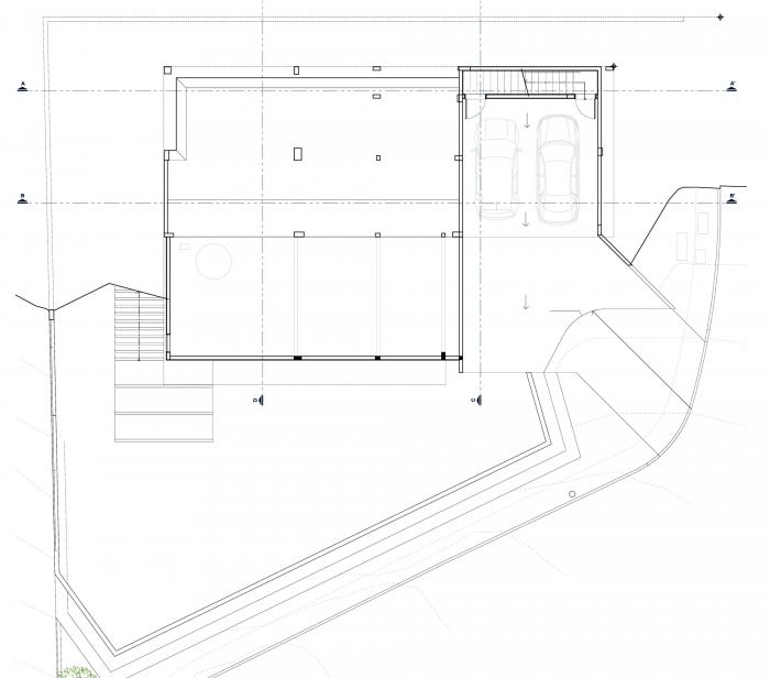
▲ 一层平面图
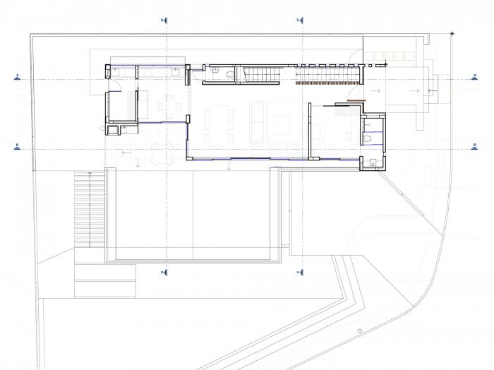
▲ 二层平面图
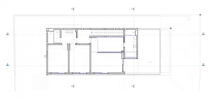
▲ 三层平面图
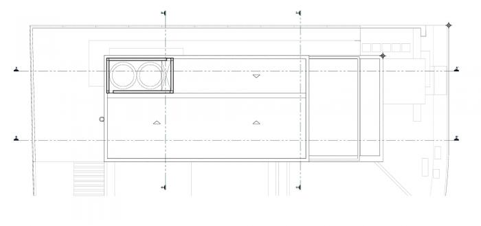
▲ 屋顶平面图
▲ 立面图
▲ 立面图
▲ 立面图
▲ 立面图
▲ 剖面图
▲ 剖面图
▲ 剖面图
▲ 剖面图
项目信息
项目类型:独立住宅
项目地点:ITACORUBI,巴西
建筑事务所:Mari Girardi Arquitetos Associados
面积:272.0m²
项目年份:2017
摄影师:Pedro Caetano
厂家:Trimble, Deca, Portobello, Autodesk
主管建筑师:Mari Girardi, Alejandro Ortiz Sainz
工程师:Paulo De Tarso Pereira
微信公众号:xuebim
关注建筑行业BIM发展、研究建筑新技术,汇集建筑前沿信息!
← 微信扫一扫,关注我们+

BIM建筑网



































