塞雷马度假别墅设计(Seriema House)坐落于贝洛奥里藏特市郊一个田园般的静谧之地。要抵达这里,你必须穿越一片山脉,这段旅程标志着一种转变。告别城市的喧嚣,访客们进入了一个与自然完全融为一体的宁静环境。
这座房子的建造地点展现出两种截然不同的景象。一侧是视野开阔的连绵山脉;另一侧则是茂密的森林,树木郁郁葱葱。在开阔的景观与绿荫遮蔽的休憩之所之间的这种平衡中,房子和谐地融入其中。塞雷马鸟是该地区的典型鸟类,它们在这片区域自由地活动,也正是它们启发了这座住宅的命名。
这座房子不仅仅是一个居住之所,它被设计成一个供人停歇的空间。一个可以阅读、休息、欣赏风景并与朋友共度时光的地方。房主的愿望是创造一个可以聚会和阅读的环境,在那里建筑能够与诗意对话。
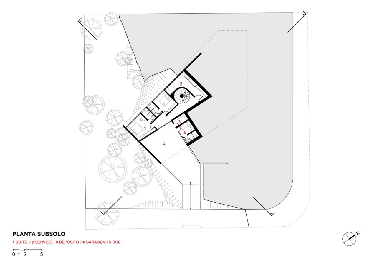
在建筑中,诗意是通过设计来呈现的,而且设计越自由,所蕴含的诗意就越深刻。在这里,诗意的线条具体化为一面蜿蜒的墙壁,它将房子分隔成两个世界。一侧是迎宾空间:明亮,充满各种声音、音乐和活力,能够欣赏到开阔的山景。另一侧是静修空间:寂静无声,引人深思,沉浸在森林的阴影之中,专为休息和阅读而设。
建筑的材质强化了与周边景观的联系。蜿蜒的墙壁覆盖着黑色的石头,与白色的石质地板形成鲜明对比。这座房子既是一个庇护所,也是一种生活体验。单一的材料 —— 石头,定义了它的本质。塞雷马之家代表着时间、河流、山脉和洞穴。最重要的是,它就是诗意的化身。
微信公众号:xuebim
关注建筑行业BIM发展、研究建筑新技术,汇集建筑前沿信息!
← 微信扫一扫,关注我们+

BIM建筑网




























