该项目位于塞内加尔东南部Sinthian的村庄里,在这里将建造一个新的文化中心,项目由美国康涅狄格州的约瑟夫(Josef)和安妮阿尔伯斯(Anni Albers)基金会共同与Sinthian当地政府合作设计并筹资建设。项目于2015年3月4日开放,旨在为来访的国际艺术家提供住处。此外这里还将为该地区和周围地区的人们提供探索创造的方法和技能培养的机会。同时这里还打造了集市、教育、表演和聚会中心。中心将是当地社区的一个小屋,而居住在此处的艺术家可以在这里得到当地社区真正有意义的体验。
THREAD将会邀请世界各地的画家、雕塑家、摄影师、作家、舞蹈家进驻指导。他们的到来将为西非这片地区带来更多的国际关注。2013年,第一次举办了这种文化交流,来自韦恩▪麦克格雷戈随机舞蹈团的天才舞者们在这里进行了一系列舞蹈工作。
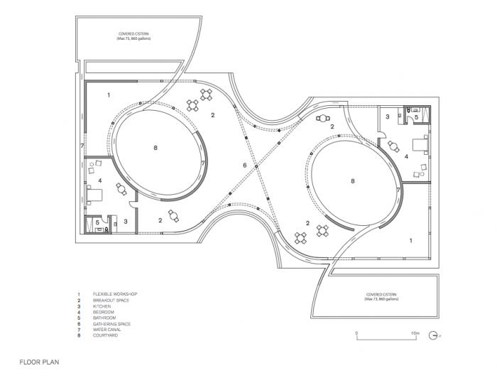
纽约著名建筑师Toshiko Mori森俊子无偿设计了这个项目,其中的一个建筑已经赢得了友邦保险纽约分会奖,并被选为参加2014年的威尼斯建筑双年展。该建筑使用的是当地材料,当地建筑商也将他们处理竹子、砖块和茅草屋顶的专业知识与建筑师分享。这些传统技术结合了Mori的设计创新。惯常倒置的斜屋顶从降雨中收集的雨水将会使家庭节约大约40%的用水。
约瑟夫和安妮基金会主任尼古拉斯•福克斯•韦伯评价说:“当约瑟夫和安妮阿尔伯斯用他们的名字建立这个基金会的时候,他们认为该项目的创建和看到应对困难后的快乐意味着平衡与希望”。安妮阿尔伯斯经常说道“白手起家”在生命中的意义,约瑟夫则经常赞美实验带来的奇迹。THREAD就是根据这些价值观所建立的。“
当地领导Dr. Magueye Ba以及非营利性组织AFLK一起运营塞西亚的医疗中心、建立它的第一个幼儿园、资助其教师的工资并帮助社区发起新的农业实践。如今在约瑟夫和安妮基金会的帮助下,村庄将举办对现有的基础设施补充的开幕式,并承诺在该地区进一步刺激创造力。
项目图纸
▲ 总平面图
▲基础平面图
▲一层平面图
▲立面图
▲剖面图
▲分析图
▲细节图
▲细节图
项目信息
项目类型:文化中心
项目地点:SINTHIAN,塞内加尔
建筑设计:Toshiko Mori
项目年份:2015

BIM建筑网
















