这是位于利马南部的海滩公寓,根据休闲和社交需求而建,以应对密集的临时性住宿所带来的挑战,并利用此机会来重新解读一种历史原型:勒·柯布西耶设计的多米诺大楼。
建筑位于一块人工绿洲中央的半隔离场地,场地大小为15*8米,并且只容许建造单层房屋加屋顶露台,保证建筑能享受“基本的快乐”:阳光,空间,植被和朝向亚洲和沿海岛的安第斯山脉的沙漠景观视野。
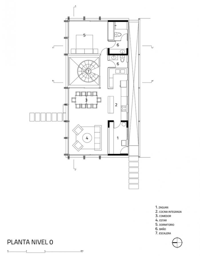
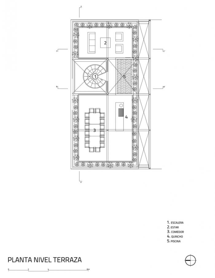
夏日周末时,房主和客人在房里的消遣用处与一年里其他时间的很少使用形成鲜明对比,因此功能的分层设计需要考虑到项目对自然的应对:夏日对外开放,冬日则作私用。因此,公共空间的比例将以分层扩展的模式从屋顶露台延续到地下层,一楼作为间隔层,具有非常小的卧室,体现了紧凑布局的最佳效果。
房屋的位置远离海滩,并为小树林所包围,为居住者营造了自然的私密感,赋予了我们在围合同时的更大透明度,更贴近房主的开放特点和对被动式热管理系统的需求,后者体现在阳光和对混凝土体块的通风控制。
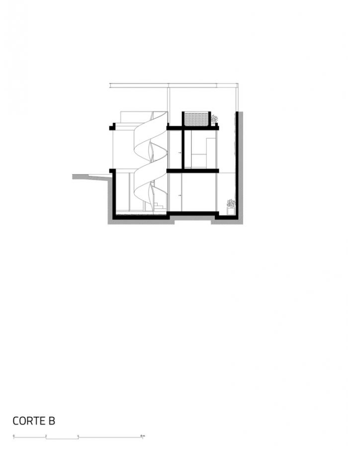
这种理性表达传递了对铁柱、梁及轻质混凝土板结构的调制顺序,第二层饰面元素亦如此,与螺旋楼梯的有机表达形成了很好的平衡。这一具有对比的垂直交通元素占据了中心位置,形成了对海岸景观的诗意呼应。正交与曲线系统间形成了对位关系。
项目图纸
▲ 地下一层平面图
▲一层平面图
▲露台层平面图
▲北立面图
▲剖面图A
▲剖面图B
▲剖面图C
项目信息
项目地点:ASIA,秘鲁
建筑设计:Jorge Marsino Prado
摄影师:Juan Solano Ojasi
厂家:Masisa
合作者:Renzo Marsino Moreno, Taller 33
构造者:Taller 33
结构设计:Jorge Avendaño
文字:Jorge Marsino Prado

BIM建筑网























