▲夜景鸟瞰
源:自上而下
上海中山公园是上海最早的公园之一,城区西部重要的枢纽型商业商务中心。在政府构建的中山公园地区一体化规划中,希望通过环境整治和城市设计引导等手段,提升整体形象,完善各项功能,突出景观特色,塑造独立的空间意向。
本案位于长宁路内环内,紧靠中山公园板块,属于地铁上盖项目。区域商业配套成熟,大型购物中心环绕,有巴黎春天购物、龙之梦购物中心、长宁来福士广场等,日均人流量达到40余万人次。这栋塔楼原身是一座上世纪90年代的传奇建筑,曾拥有区域“第一高楼”的美誉。针对区域规划中所指引的“强化丰富的视觉感受”,为契合整个区域的居住需求和产业文化,在不动原建筑结构的基础上,建筑局部进行改造与焕新。
▲ 项目区域图
原建筑立面拱形元素过于符号化,年代感较强,门头装饰老旧,屋顶水箱造型符号化明显,与整体不协调。沿街北立面二层和南立面中间部位的开窗面积较小,影响室内采光和视觉效果。作为长租公寓,公区狭小而老旧,对追求生活品质的中高层人群吸引力不足。
▲ 改造前立面图片
塑:摩登时代
建筑师在改造之初认为,建筑是具有多重价值的,我们必须学会从外延并由此从内涵方面来谈论体量与表面的多重价值。原有的建筑立面元素过多,化繁为简,引新于旧,使之成为摩登时代的新建筑。
▲ 设计手稿
在原建筑之中找到可以保留的元素,如塔楼的拱形与竖向线条等。从底部延伸至屋顶,在屋顶展开,“扎根于地,开花于顶”。形成一种既有原始的场所记忆又有现代摩登建筑的风格。
▲ 建筑拆解与重塑
在不动原建筑结构的基础上,拆除竖向附墙柱顶部无用的拱形部分,采用金属质感涂料重新喷涂,同时立面窗洞两侧采用金属线条装饰,增强建筑的竖向元素,立面透视效果更为挺拔。
铲掉老旧的黄色墙面漆,用白色真石漆代替,浅色的石材纹理和深色金属形成对比,简单而庄重的立面效果和酒店功能完美结合。灯光则置于竖条凹槽内,夜间效果明显,且使建筑与周边繁华的现代街区相统一。
用铝板在四周包住原有的塔状屋顶水箱,使其外立面为正方形,化身为品牌LOGO的展示背景墙.采用重檐的方式通过铝板造型装饰来收整头部复杂的高低关系,在达到整体效果的同时增强建筑的标志性。
▲节点图
拆除原门头造型,通过铝板外包的形式把立面中间弧形段和二层凸出立面位置的区域进行衔接,外包铝板内嵌竖向灯带,白色错落的线条凸显了建筑立面的中轴线,夜晚灯光效果明显,昭示性强。主入口和店铺入口采用大面玻璃和不锈钢门框的组合,增加质感,提升沿街立面的商业气氛和美观。
拆除原建筑二层女儿墙,用大面玻璃落地窗替代,同时采用外玻璃肋支撑做法,增加室内采光和通透性,提升沿街立面效果和商业价值。
逸:释放灵动
改造之初,悦樘公寓引入了前沿的公共区域设计思路和异业合作板块,借助“共享”的思路,将长租公寓改造为融合居住、工作、社交、休闲、服务、娱乐等立体内容的一站式空间,使其成为“个性化+体验化+共享化”高端租住产品。
▲ 改造室内图片
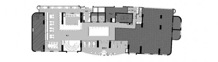
一层Lobby释放了原有门厅空间,旋转楼梯的特殊造型及艺术品就成为了门厅入口的对景。中间双层挑空提供了更为舒适的休息区域,充足的阳光和四季变换的庭院景观给住户增添了家的温馨。
围绕挑空区的环形走廊,更好的将一二层进行空间互动。健身房的全镜面设计,增加视觉空间感,墙、顶、地面的嵌入式LED灯所形成的框型折线,更加有现代科技感,使用大量镜面亦将室外风景带入室内。同时可以透过全玻璃俯瞰内庭院花园的精致。
二层的餐厅及健身房可通过旋转楼梯到达。餐厅空间布局开敞,设有吧台及酒柜,在餐厅角落有一区长餐桌,可用餐亦可以作为多功能会议厅,给住户灵活多变的共享空间体验。改造后的全玻璃落地窗,提供了通透的城市观景体验,也使餐厅与城市氛围融为一体。
▲ 一层平面图
▲ 二层平面图
屋顶原为设备机房,并未得到充分利用,现改造成为酒吧与空中花园,不仅是丰富了空间的复合性,还增加了场所的凝聚性及互动性。在花园中俯瞰中山公园,就能以自然直觉阅读日夜和四季,亦能体会到人与城市及人与自然的和谐相处。
重新解读当代高阶人群精致生活,是为了让住户有一个身心得以放松的精神家园。利用玻璃隔墙打造通透的卫浴间,拆除吊顶,释放空间。摒弃了矫饰与刺激感官的色彩,回归温润、自然质朴的材质,光影之下,简于形,繁于心。
▲ 屋顶平面图
▲ 户型平面图
空间不是社会的反映,而是社会的表现。城市更新不能仅停留于表面形式的改造,而应探寻其深层结构性的问题,不仅要重视城市物质环境的改善,更要注重提升社区独特的空间结构和社会网络,才能经久不衰,有机生长。
项目信息
项目名称:上海景瑞悦樘臻选(中山公园店)
地理位置:上海市长宁区长宁路889号
项目业主:景瑞控股有限公司
改造面积:6400平方米
建筑设计:上海成执建筑设计有限公司
总建筑师:李杰
设计总监:薛羽
设计团队:张耀辉葛笑强姜鸿雁张雪娇
室内设计:上海成执建筑设计有限公司
设计总监:吴雪艳
设计团队:汤吉、沈莉萍、薛成宗
景观设计:石际景观设计(上海)有限公司
设计时间:2018.07
竣工时间:2019.09
项目摄影:陈铭

BIM建筑网
















































