在爱尔兰西南部,全国最长也是最大的河流香侬河的下游两岸,坐落着前身曾是私有大学的著名学府——利默里克大学。利默里克大学最新进行了医学院部分的扩建,扩建部分延展到香侬河北岸,与老校区之间通过步行天桥连接,扩建项目有教学楼与宿舍楼,以供医学院的师生使用。新建建筑塑造出的公共活动空间宽敞而开放,将成为未来北部校区的核心地带。
设计试图将教学和生活用房适度交叠、相互结合,使得公共空间能够承载更加丰富多彩的校园生活。
▲ 场地剖面图
项目的形式语言来自于校园总体规划对于香侬河北岸定位:以更有机的手法来塑造公共空间。在这里,大地是倾斜的,诸如田埂、树篱等形式的农耕景观遗存依然清晰可辨。
新建筑毗邻着三个现存的机构:体育馆、爱尔兰世界音乐舞蹈学院和健康科学大楼,它们共同形成一个建筑群组,形成一个崭新的校园公共空间。新建筑包括一所医学院、三栋学生宿舍和一处凉棚,凉棚作为公共汽车候车亭和自行车停放处使用。
位于建筑序列尾部的医学院成为了建筑群组中的锚点,三栋宿舍围绕其轻微旋转摆布。医学院的形式语言是教育机构的样子,而三栋宿舍看上去则更像三个大房子。混凝土候车亭、三栋宿舍楼与医学院相互衔接,形成了围合公共空间的柔和边界。候车亭的顶棚、台阶与坡道,随着北侧的运动场馆的标高进行变化。
▲ 总平面图
中央的公共空间略微向西倾斜,斜坡中段的小广场上,三棵榆树栽种在石椅与台阶的旁边,形成视觉与交通的聚焦点——联通小径由小广场边缘破裂散开,放射延申,联系到宿舍楼、公交亭和医学院之中。公共空间的边界由明确变得模糊,在南向倾斜的草坡上,局部点缀着家具,营造出供人们休憩娱乐的场地。
建筑的材料分外抢眼,让它们如同公共空间旁笔挺的岗哨一般。石灰石被用来表现“中正的”中央医学院——这一选材也是对北部校区所处的克莱尔郡的石灰岩地区的回应。石灰石墙面根据朝向、阳光、风雨和公共活动而进行了折叠、塑形和分层。面向南侧和西侧的转角柱廊充当了集会和入口空间,相比之下,北墙和东墙的空间则更显安静。
▲ 医学院大楼外立面
由于平面的进深较大,屋顶形式顺应内部空间的采光需求进行了调整,从而照亮了中央大厅、临床技能实验室、走廊和小型屋顶露台等多个空间。
▲ 医学院大楼中央采光顶
一个开放的中央楼梯连接着所有的基础空间。它向外延伸到整个室内,不仅连接了各个楼层,额外宽敞的空间变成了一个社交的场所,人们可以随时驻足交谈或者依靠在栏杆上看到其他空间的活动。
▲ 医学院大楼中央大厅
▲ 从柱廊看向外部
▲ 从楼梯看一楼大厅
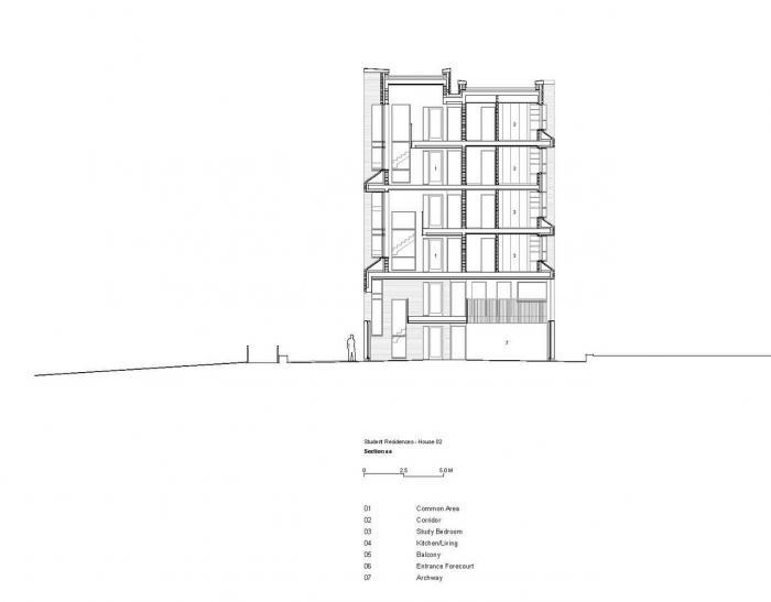
砖块立面从后面原有的住房延伸到前面的宿舍。在这里,材料被赋予了深度,而深层雕刻的外墙则区分了家庭内部空间和其下面的公共空间之间。所有居住空间中的公共区域都面向东南部,而更加私人的书房则面向东北或西北。
▲ 学生宿舍
住宅的地下部分被移去,增加的拱门打通了行人从停车场和公交车站向北移动的动线,并为学生提供了有遮挡的社交空间。大型大门入口通向房屋的入口处;这里是楼梯,电梯,自行车存放处以及洗衣房的位置。
▲ 公交候车亭
项目图纸
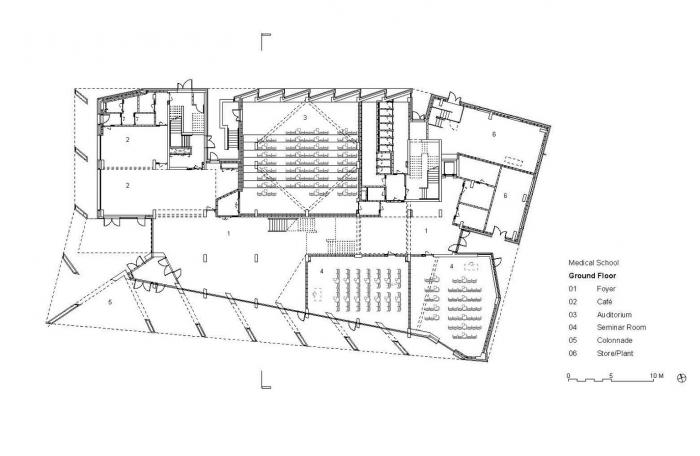
▲ 医学院大楼一层平面图
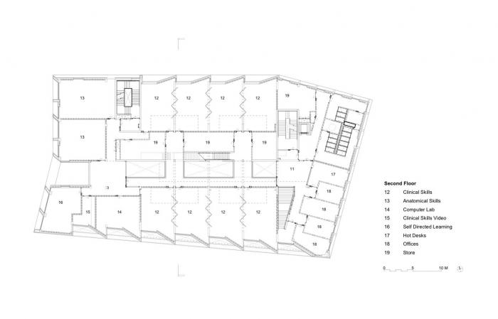
▲ 医学院大楼二层平面图
▲ 医学院大楼剖面图
▲ 医学院大楼折叠立面
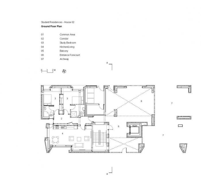
▲ 学生宿舍一层平面图
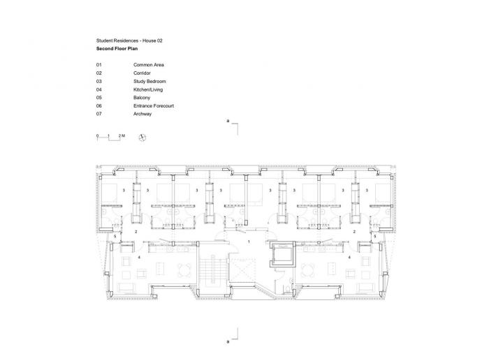
▲ 学生宿舍二层平面图
▲ 学生宿舍剖面图
▲ 公交候车亭底层平面图
▲ 公交候车亭顶部平面图
项目信息
建筑事务所:Grafton Architects
面积:4300.0m²
项目年份:2012
摄影师:Dennis Gilbert,Alice Clancy

BIM建筑网




















