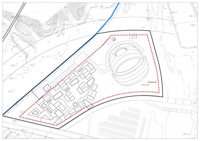
华夏文化展示中心位于中国甘肃省兰州市,整个项目分为展演部分与展示部分,展演部分为日月馆,展示部分为古镇展示区,建筑形式与周边兰州传统村落相呼应。
项目南临河口古镇与黄河,东临黄河支流——庄浪河,北侧是一片黄土山脉,西侧为兰州区域传统村落,周边自然景观丰富,设计既兼顾周边人文地理,又兼顾了自然风光。同时,兰州曾经作为依托交通干线的“茶马互市”和交易中心,曾经作为不同历史时期的国家基地和区域中心,民族和文化的融汇区和多发地,物质与非物质并行的新文化成长沃土。
项目利用自然文化景观,打造以日月馆为主题的剧场,将自然景观融入到建筑中,观山观水观秀,将水舞与激光引入剧场,打造大型新形式剧场模式。
建筑体量巨大、新颖,建筑由两片巨型屋顶拼接而成,分别覆盖舞台与看台两大部分,并在屋顶上形成“天眼”,形成框景,便于观众观看激光秀与远处山脉,打造成为兰州区域地标建筑。建筑造型围绕舞台与看台展开,将建筑分为舞台与看台两个部分,分别以巨型拱形屋顶覆盖,屋顶表皮经过反复修改,采用外包金属板形式,由于项目邻近中国传统古镇,剧场外部造型吸收了当地传统建筑的元素,传统村落层层叠叠的屋顶排列(如固河口古镇)。外屋面板如巨鸟的羽翼一般,具有韵律地自上而下覆盖叠加。屋面饰板采用与瓦片有类似质感的材料。其他建筑部分的饰面材料采用砖石,木材,夯土等当地传统材料,使剧场能够充分融入到当地自然人文环境中。
△ 日月馆分析图
在设计过程中,采用BIM技术不断推进,推敲建筑体量、材料与空间之间的关系,同时解决技术层面的问题,为了观众不不受低温、风沙的影响,要求观众席要有屋顶。事实上多媒体设备和演出本身也需要适度的保护,将天气因素和周边公路的噪声和光污染的影响降到最低。围合结构同时可以提供大面积的投影面积,观众将获得更加身临其境,更加丰富的观赏体验。
△ 日月馆屋顶模型
日月馆的演出呈现出壮丽的视觉效果,演出围绕盘古开天地的主题,呈现中国特色的深化传说,演出运用音频、视频、激光、动画、喷泉、火焰、烟花等现代科技技术手段和艺术感染形式,形成集科技、文化、艺术、创意于一体的演出形式,带给观众一场震撼的视听盛宴。
演出技术方面,在演出中融入激光、火焰、烟花等形式,利用深埋水中、悬挂于屋顶的舞台设备,形成丰富的舞台效果,设备技术先进,可长时间浸泡于水中;位于舞台、看台周边以及场馆外部的众多机房共同为演出提供技术支持。水池和舞台上方的开洞保证水效光效烟花等的正常运转,同时通过洞口,观众有可能窥见群山,建立了与场地的联系,增强了趣味,这是设计的初衷。
兰州作为中国黄河文化的朝圣地、西北旅游风潮的引爆点、兰州城市休闲体验的新高地,综合打造一场视觉盛宴,受众人群定位年轻人、儿童等,日月馆的建筑形象及展示内容将兰州当地文化与中国传统文化相融合,打造融合古今中外的综合大型表演,建筑技术层面采用BIM技术与传统绘图技法相结合,土建部分与钢结构设计相结合,中国建筑设计及工程技术与国外投影设备与空间设计相结合,引入时尚元素,打造区域城市名片,增强当地艺术感染力,同时,日月馆与周边展示区相结合,形成主题展演和文化活动为一体的娱乐综合体。
设计图纸
△ 日月馆手绘草图
△总平面图
△一层平面图
△二层平面图
△三层平面图
△屋顶平面图
△剖面图
项目信息
项目类型:演艺建筑,展览中心,文化中心
项目地点:兰州,中国
建筑事务所:ECA2,青岛腾远设计事务所
面积:23000m²
项目年份:2019
摄影师:王恺,Julien Panie,Christophe Bernard
项目总监:赵广俊、Jean-Christophe Canizares(ECA2)
项目经理:李晓红、杨龙
方案设计:迟橙橙(ECA2)、Elodie Betoulaud(ECA2)、常振华、蔡萌、李冬艳、李凯林
建筑设计:尹慧英、常振华、李凯林、郑子明
结构设计:井彦青、刘复孝、杨志新、田始浩、周魁
钢结构设计:井彦青、李强、纪建猛、孙东邈、郁有升
给排水设计:李士会、连捷、吴相杰、杨洪伦、曹思雯、Francois Thorel(ECA2)
电气设计:熊育林、鞠远明、Clement Rabreaud(ECA2)
暖通设计:任万辉、惠祥、梁斌、Thibaut Jamin(ECA2)
室内设计:孙青山、宋启涛、兰青、李志超、詹丽文、周云龙、冯启荣、于鑫
景观设计:衣疆、王中伟、张玲玲
幕墙、Bim设计:王维、李影、王健强
智能化设计:吴磊、李树文、Quentin Carlier(ECA2)、Ken Lo(ECA2)
夜景照明设计:刘云彩、陶博、曹慧芳、孙慧萍
市政设计:李士会、连捷、吴相杰、杨洪伦
成本控制、项目管理:秦承浩、王鑫、严鹏、Emmanuelle Charotte(ECA2)、Julie Cugurno(ECA2)、崔娟、李宁、谷家星、林国超、行婉月、吴晓云、冯文东、刘晓平
项目翻译:Catherine Lee, Jocelyn Zhang, Flo Shi(ECA2)
施工方:甘肃一安建设科技集团有限公司
委托方:甘肃西戎文化旅游开发有限公司

BIM建筑网


























