项目位于无锡南禅寺脚下,旧民居群中,清名桥古运河之滨,故取名为“南禅观水”。随着时代变迁和城市更新,本哲在解构民宿建筑新含义的同时,又传承了历史文化遗产的精髓。
△ 建筑外观
原址是典型的传统三进式院落,前低后高,较为保守。旧建筑四周封闭,室内光感不强,楼道狭窄,藏匿了许多安全隐患。改造后的建筑,依旧白墙黛瓦,小桥流水,保留了这座江南小院古朴典雅的气息,增加了更多的开放空间。铁锈板、简约的落地玻璃及独特的导向系统等现代设计元素,赋予了老宅新的活力。
△ 西南墙
△ 东北墙
△ 东北墙
正门拆除了旧址厚重的土墙,往后退出左右两处空间,往前探出方形盒子般的落地窗,使原本扁平的入口处更富有层次。细木格栅窗替代了封闭阴暗的旧窗,改造后的正立面与旧民居群形成对立统一。
△ 正门
△ 西南墙
△ 西南墙
△ 阳台细部
前台入口处整体新浇的混凝土三通盒子,贯通了前台、餐厅及庭院。餐厅由榻榻米、散座和水吧组成,视野通透,高低错落。
△ 酒店接待区
项目在打造前台到房间的通道时,巧妙地设计了内外两条相互独立的路径。内路径由前台通向餐厅,再由餐厅绕道至房间,曲径通幽;外路径由前台直达二进房间,路径下沉于水面,仿佛人在水中走。漂浮在水面的茶室,别有一番“大隐隐于世”的低调与沉静。
△ 内路径
△ 内路径
△ 外路径
二进开始便进入了酒店的房间区,院中保留了旧宅原有的荷花池,走道被拓宽,池边有足够空间嬉戏观鱼。民宿共有十六间房,风格各异,像十六颗璀璨的珍珠,环绕镶嵌在这片迷人的水上庭院。房间“溯”“泛”“泊”“泽”“瀚”“澔”“润”“漾”“湛”“泓”“渡”“湉”“漪”“澹”“澈”“澄”,皆以水字旁的字命名,“水”有灵性,亦是生命之源;观水,亦观心。
△ 院落
“溯”与“渡”复古怀旧,素净的白岩墙,深棕色的原木,基克拉迪风格的拱门,为空间赋予了独特的印记。
△ 房间“溯”
“润”和“漾”是酒店打造的两间loft大跃层,磨砂不锈钢及原木与原始的裸露墙面相碰撞,节奏性的空间排序,体现出解构主义的秩序感。“漾”别具匠心地打造了一张悬空的网状休息区,标新立异,住宿体验更有趣味。
△ loft大跃层
房间“泛”和“泓”以工业风为基底,干净利落的线条,裸露的原色墙面和金属,传达克制冷艳的美感,几何性和构成性创造出中性、纯粹的空间体验,粗犷别致之中不乏细腻的笔触。
△ 工业风房间
改造后的后院别有意趣,枯山水的禅意淡泊宁静。新造混凝土墙体及楼梯与原有山墙相衔接,赤裸冷冽。拾级而上,阳光透过圆孔,将光与影的虚实之美发挥到极致。
△ 后院
挚舍·南禅观水,源于历史,归于自然,让建筑、人与自然之间达到和谐共通的境界。
△ 细部
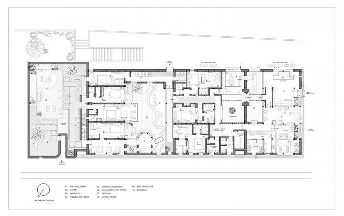
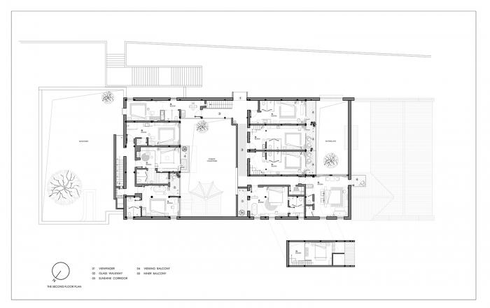
设计图纸
△ 一层平面图
△ 二层平面图
△ 正立面图
△ 侧立面图
△ 后院立面图
项目信息
项目类型:酒店,更新项目
项目地点:无锡,中国
建筑事务所:本哲建筑
面积:1280m²
项目年份:2020
摄影师:苏圣亮
主案建筑师:蒋华健
业主方:渡口空间(无锡)酒店管理有限公司

BIM建筑网



































