
BIM建筑|53° ·EKA天物,上海 / 本哲建筑
△ 由南到北鸟瞰图 ©存在建筑-建筑摄影 「53°」位于上海浦东新区金桥板块的EKA•天物艺术街区,在街区最里端,紧邻西沟港,由中船航海仪器厂工业遗产中的绿化组温室花房改建而来。原绿化组共有三栋建筑,分别为原楼号497、499、530,为上...

△ 由南到北鸟瞰图 ©存在建筑-建筑摄影 「53°」位于上海浦东新区金桥板块的EKA•天物艺术街区,在街区最里端,紧邻西沟港,由中船航海仪器厂工业遗产中的绿化组温室花房改建而来。原绿化组共有三栋建筑,分别为原楼号497、499、530,为上...

EKA天物艺术街区位于上海浦东新区金桥板块,原址为上世纪五六十年代中船航海仪器厂,受业主方委托对该地区进行整体规划改造设计。「远舰」原为航海仪器厂的机电楼,作为街区单体体量最大的建筑,且占据主入口的优势位置。在对其梳理与更新中,本哲建筑尊重...

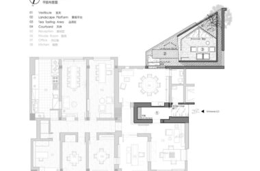
不破不立,顺势而为 受好友委托,设计一个作为平时交友、品茶、阅读的茶书房,后取名为「知舍茶书房」,由于室内空间不能满足一些功能需求,考虑把外置阳台充分利用,将室内空间向外拓展延伸。 △在夹缝中席地而坐 ©苏圣亮 △项目所在位置 ©本哲建筑 ...

半仓位于上海浦东新区金桥板块的EKA•天物园区。原址是60年代上海中船航海仪器厂-445栋仓库。受业主方委托对该地区进行整体规划改造设计,作为园区的先驱更新项目,既要有商业接待、展示展览功能,又要体现出未来园区的前瞻性。我们尊重历史发展脉络...

d-u渡咖文集坐落于有着“江南水弄堂,运河绝版地”之称的清名桥古运河景区内,与挚舍·南禅观水酒店相邻。在满足保持整体风格一致的需求下,又要体现其作为独立美学空间的多样性。 △ 咖啡厅概览©形在建筑空间摄影 贺川 老街南下塘仍旧保留着当初枕河...

项目位于浦东新区金海路,原址是一处旧厂房改建的浴场,空间布局单一,因年久失修破败不堪,既不具备明显的工业建筑特点,也缺乏历史价值。 △建筑外观局部©苏圣亮 本哲建筑在更新设计过程中梳理了七栋独立建筑之间的关系,打破原空间格局,进行空间层次的...

项目位于无锡南禅寺脚下,旧民居群中,清名桥古运河之滨,故取名为“南禅观水”。随着时代变迁和城市更新,本哲在解构民宿建筑新含义的同时,又传承了历史文化遗产的精髓。 △ 建筑外观 原址是典型的传统三进式院落,前低后高,较为保守。旧建筑四周封闭,...
项目地址位于中国上海市复兴东路上,毗邻豫园,故取谐(BIM工程师)音“渝舍印象”。项目原是一家旧招待所兼棋牌室,随着时代变迁和城市再造更新,业主希望在加固原有结构的基础上解构新的民宿含义。 原招待所由四栋旧楼组成,楼内空间狭小,光线不足,改...