项目坐落在广州天河软件园一个尽端相对独立的丘陵用地,马蹄形山丘围绕着场地,背山面湖、环境优美;地形高差明显,建设用地窄长而不规则。根据城市设计要求,建筑高度需控制在20米内,以实现与周边山体的和谐。有趣的是,设计团队曾在多年前参与该区域城市设计并确定了这一限高,这在今天成为了富有挑战性的约束条件。
△ 总平面图
周边自然环境的特质决定了设计策略。设计将建筑切分成若干个方正的功能体量,沿用地摆开,“镶嵌”在绿色的山体环境中;体量之间采用通透的连接处理,如同铰链般消解用地曲折带来的布局问题,并使建筑融入自然环境。
建筑造型设计富于实体感,如巨石般的强烈体积感既与山体及湖面形成合理的对比关系,又满足了室内环境的控光需求。
建筑体的连接部位设置为“服务性”功能——入口、卫生间、交通核心以及室外楼梯等,使之成为使用者必经的空间;并采用“立体园林”的方式,引入阳光、绿化及丰富的景观体验,营造良好的公共交流空间。
用地的东侧、北侧布置两栋主体办公楼,以首层的咖啡厅相连。西侧布置食堂、体育运动设施等服务功能,并在中心湖设置廊桥与办公楼连接。该策略在于鼓励IT从业者改变久坐办公的状态,在休憩、用餐或运动时,步行通过开放的平台、楼梯、廊桥,享受园区优质的环境。
室内空间采用较为粗犷的处理方式,柱体、梁、天花为素混凝土面,机电系统在天花下灵活布置,会议室等密闭空间采用独立盒体的方式植入;充分考虑了办公空间的灵活性以应对发展变化。
设计将原有自然水体扩大,形成几个连续的不同标高湖面,可汇集场地及山体的雨水。建筑体量面向开阔水面布置,利用地形风环境促进自然通风。半地下停车空间利用地形高差解决了自然采光通风,并创造了建筑形态上的悬浮感。
设计图纸
△ 总体轴测图
△ A栋一层平面图
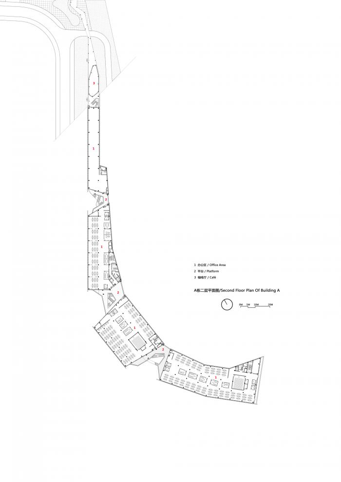
△ A栋二层平面图
△ A栋立面图
△ A栋剖面图
△ C栋一层平面图
△ C栋二层平面图
△ C栋立面图
△ D栋一层平面图
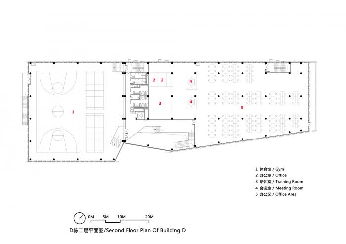
△ D栋二层平面图
△ D栋立面图
项目信息
项目地点:广州,中国
建筑事务所:东意建筑
面积:56000m²
项目年份:2019
摄影师:Zhong Chen
主创建筑师:肖毅强、刘穗杰
设计团队:肖毅强、刘穗杰、邹艳婷、黄立思、张泽礼、黄瑾、陈达文、苏竟、谢子滢、郑泽旭、李根明、梁启立、林颖佳、惠星宇
委托方:广州博冠信息科技有限公司
结构设计:广东省华城建筑设计有限公司
景观设计:广州东意建筑设计咨询有限公司
施工方:中天建设集团有限公司
合作方:广东省华城建筑设计有限公司

BIM建筑网










































