△ 幼儿园及小镇主干道
乌斯河中心幼儿园是壹基金地震灾后援建项目,位于四川省雅安市汉源县乌斯河镇,是镇上第一所公立幼儿园。小镇坐落于大渡河支流峡谷的山坡上,风貌混杂,缺乏有质量的城镇空间。
设计希望把幼儿园这一全新的功能置入其中,完成对小镇空间特征的启蒙,形成新的小镇精神和情感中心;而所创造的儿童友好环境,将成为孩子们每天向往的欢乐殿堂。
△ 幼儿园和镇中心小学
山地与平台
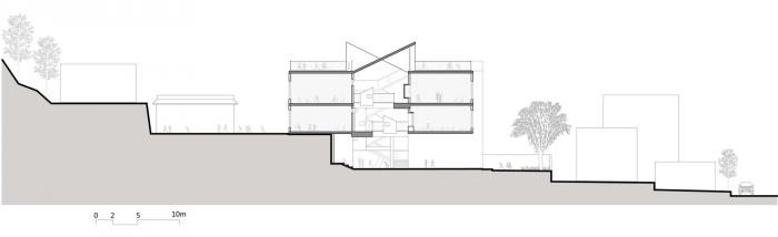
场地隐匿于商铺和民居后,仅由一条狭长的上坡路联系主要干道。我们将山地特征强化为空间营造策略。将原有场地整理成东西两个大的台地,建筑体量坐落其间,围绕共享中庭布置,首、二层分别与两个平台连接。通过各层露台和屋顶平台,在建筑外观中表达地形关系。
△ 轴测图
集聚与上升
由于场地条件所限,采用L型聚集式布局。入口处的建筑体量被刻意拉高,成为场地的制高点和视觉中心。
中庭强化了集聚的效果,并成为了整个建筑的空间核心。三层通高的中庭向上迎接天光;交叉连续的侧天窗,引入富有韵律的光线。上下午的阳光投射在不同颜色的墙面,使室内空间强调出时间属性。集聚与上升的空间策略也反映为强烈垂直感的外部形式。白色立面与周边环境的灰色主调形成对比,侧墙亮丽的色彩蕴含活力。
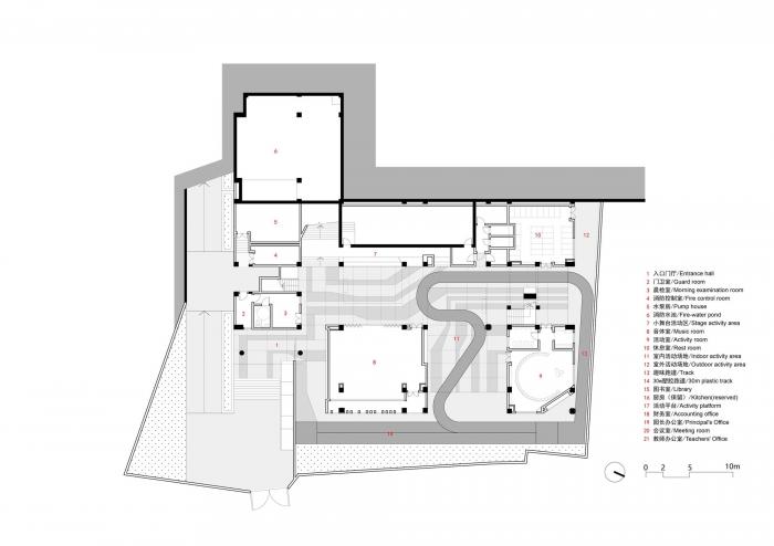
△ 总平面
△ 剖面
△ 幼儿园主入口
中心与环游
中庭作为整个建筑行为的中心,构成建筑室内外活动的水平与垂直联系。根据儿童的行为特点,各层均设置了交互环游式的体验路径,串联起中庭与室外。建筑首层仅布置少量的功能用房,环形跑道自室外引入。音体室置于中庭的中心,与小台阶构成开放的剧场空间,是全园和社区共享的活动中心。
中庭各层走廊交错,形成空间上视线与行为的游戏。各层的建筑开口将来自山谷的地形风导入中庭,结合侧天窗,形成通风采光良好、舒适的小气候。
△ 首层台阶通向侧室外平台
△ 首层中庭和小剧场
△ 首层自由活动场地和小游戏空间
△ 二层走廊
△ 二层走廊和小游戏空间
△ 三层中庭
△ 屋顶活动平台
△ 屋顶活动平台和远山
△ 音体室外格栅
设计图纸
△ 首层平面图
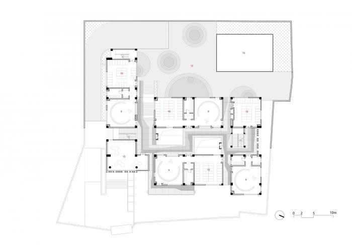
△ 二层平面图
△ 三层平面图
△ 四层平面图
△ 立面图
△ 剖面图
△ 剖面细部
项目信息
项目类型:幼儿园
项目地点:雅安市,中国
建筑事务所:东意建筑
面积:2310m²
项目年份:2019
摄影师:South Arch
主创建筑师:肖毅强、肖毅志、邹艳婷
设计团队:肖毅强、肖毅志、邹艳婷、殷实,詹峤圣,杨远景,郑泽旭,黄瑾,张宗鹏,邱天,黄力藜,黄飞亚,黎峥,郭方洁,海珊
结构设计:四川高地工程设计咨询有限公司
景观设计:广州市东意建筑设计咨询有限公司
委托方:汉源县乌斯河镇中心小学

BIM建筑网
























