项目背景:上海浦东新区华润时代广场,是一个老商场改造,主持改造的是日本设计师佐藤大,轻盈、时尚简洁的日系风是整个商场环境气质。
区域状况
由消防疏散通道连接的一个三角形和一个接近正方形的两个独立区块,单块面积不足两百个方。
△ 商铺位置©元致设计
设计策略
用“加法”
由于是两块区域,和商场走廊临界立面加起来有四十多米,用“加法”把两块区域的临界立面“加”到一起,虽说借用了商场一部分公共走廊,但是把立面放入左右邻居的大立面里来看,无论体量还是视觉效果上来看都足够起到一个很好的心里暗示(一个整体空间)。
用“减法”
考虑到瑜伽的习练者女士居多,女士的着装绚丽多彩,把这些色彩放到未来空间的使用场景里,也是设计考虑的一部分。
瑜伽的习练多是练习呼吸和静心冥想居多,同时业主也希望未来的习练者不只是练瑜伽、修形体,也可以在这里修习心境。
所以在物理空间形态上,我们用“减法”来思考,减去多余的形式和色彩,尽量消减空间的个性,还原空间的本质,营造一个模糊暧昧的空间大容器。
△从加法到减法-空间生成图解©元致设计
△ 改造后效果
用“容器”来作为未来空间的关键字
用黑白灰来调配基调,如果把“这个场所”来比喻一幅画,我希望空间是背景,活动在里面的人才是画的内容,那样每天都会出现不同的画,这样不是更有意思吗?
空间功能组织
入口动线用开放的形式回应逛街的“逛”、希望逛着逛着在下意识的情况下“误入藕花深处”。
表现形式上:我们在走廊临界处设计了卡座,在前台接待处也设计了开放式的座椅组合,椅子的最大本质就是吸引人来坐。吸引人不就是商业活动的一部分吗?让逛累的人在这里休息,在下意识的情况下瑜伽悄然无声地没准就走进了她的生活。
在临界的瑜伽大教室里也做了适当的开洞,希望在未来的运营中形成“看与被看”,一次无意的回首没准成就了一个邂逅的爱情故事……
其实这样也有一个弊端:缺少逻辑性很强的流线。接待起来有点麻烦。
在静谧私密的“SPA护理 ”区,通过一个闭合的走廊和置入一个内向的小庭院,来转换空间的属性。在走廊里刻意营造一个香烟缭绕,烛火摇曳,光影斑斓的阴翳空间来铺垫引导。
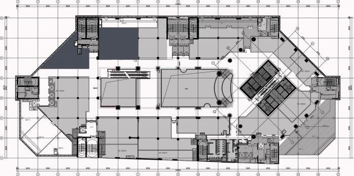
△ 平面布局图©元致设计
△ 华润立面©元致设计
△ 立面图©元致设计
项目信息
项目名称:悠伽瑜伽空间
项目地点:上海浦东新区
设计公司:YZD Studio元致设计
主创设计:赵志伟
设计团队:徐秀秀 杨晓曼
建筑面积:380平方米
公司网站:www.yzmxcc.com
联系邮箱:[email protected]
设计时间:2019/6
完工时间:2019/11
摄影团队:上海三像摄

BIM建筑网























