蜂巢住宅是一座位于古吉拉特邦,苏拉特市的智能、可适应和可持续的家庭住宅。住宅的形式生长于业主Kamalbhai Mistry的职业——其是一家从事于钻石行业的机械制造的十分成功的公司。
场地位于维苏(Vesu)——苏拉特市的一个快速发展的区域。场地东西两侧是住宅综合体。这个特别的项目位于日益壮大的Mistry家族的四个地块之一。由于对建筑非常了解,并具有机械工程方面的核心能力,业主非常清楚想要一个什么样的家——由金属打造的智能结构和一个“单空间”的起居室。除了这些基本的想法以外,业主传达了近90项任务书要求以及与各种要求相关的信息,从结构、景观、规划、材料、可持续性、隔热性能、暖通空调和管道系统到全年的太阳轨迹研究等。
△ 总平面图
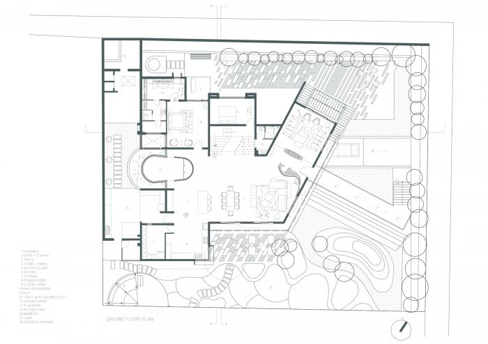
由于金属占据主导地位,大跨度、轻质、复杂形式和快速建造的概念应运而生,建筑形式的模塑生成于对外部温度、湿度、太阳辐射、云层和风向图的深度分析。建筑呈棱角分明的“V”形,朝向散布在住宅周边的绿色口袋花园。入口处有下沉庭院与阶梯花园、线性接待走廊、以及具有不同坡度可行走的绿色屋顶,创造了廊桥和山谷的体验感。这种屋顶在技术上起到了隔热的作用,降低了整体的室内温度,同时也是一个社交聚会区。
毫无疑问,建筑的外观基于太阳能传感器的立面,立面的形式是令人振奋的艺术与科学的交汇。建筑的几何形式源于自然中的六角形结构图案如蜂巢和碳晶体,这也是项目名称的由来。住宅依据结构、功能和机制进行分析,是基于结构强度、可变性和仿生性进行的设计。立面上独特的开口机制是根据室内的光照质量和热舒适水平生成的。根据经验,模块随着白昼间太阳的节律变化产生的图案创造了动人的投影。
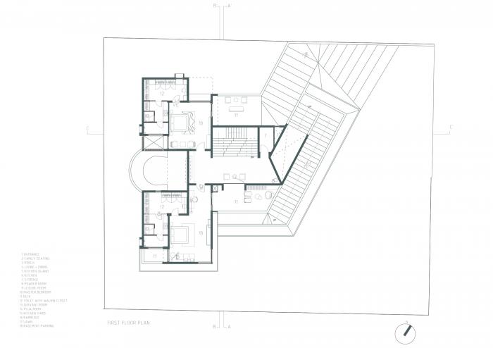
项目内部在平面和体量上被构想为开放流动的空间。由于没有分隔墙,一层的流动空间通过外围护结构和定做的雕塑般的入口门廊,在公共、私密和半私密区域之间进行了感官上的分隔。通过雕塑般的楼梯可到达二层,二层有两间卧室。由于每间卧室都有一个小花园,因此其与绿色仍然有牢固的联系。建筑材料包括立面上涂抹了SS粉末的金属,室内增添温暖感的木材和石头。
建筑师说,住宅的围护结构和其它元素的灵感来源于琐碎的日常事物。立面机制的灵感来源于机场巴士的车门,楼梯结构(横跨7米,厚38毫米)取形于宜家家居中常见的六角形直径网格。同样地,无线电天线的移动指示窗户的开口机制,堡垒(嵌入门后的门)的“Kadki门”被再次运用在入口处。
对于建筑师来说,该项目的特色在于有一位思想开明而无畏的业主,勇于尝试并实践那些没有很多先例可循的想法。业主将这座建筑视他经营的产品/机械,这就是他坚持完美打造它的原因。他追求每个细节的独到之处,这为设计团队带来了巨大的压力,以提交出不辜负业主期望的方案。因此,设计建造过程中的所有想法都要回归细致的研究和原型设计。该项目给予了建筑师进行独特思考的自信,大胆思考,同时致力于研究和关注细节,从而为在设计阶段就怀有的梦想赋予形式。
设计图纸
△ 一层平面图
△二层平面图
△立面图
△剖面图AA'
△剖面图BB'
△剖面图CC'
△节点详图
△轴测图
△爆炸轴测图
△立面切口
项目信息
项目类型:独立住宅
项目地点:苏拉特,印度
建筑设计:Openideas Architects
面积:600m²
项目年份:2019
摄影师:Fabien Charuau,Yash Parekh – Panchkon
厂家:AutoDesk,Poltrona Frau,Porada,Toto,BNB Italia,Flex Form,Hans Grohe,Hunter Douglas,Pocho Living,Remadessio,Robert McNeel & Associates,ZANOTTA
主创建筑师:Monarch Champaneri, Nilesh Gajera, Niralee Champaneri
设计团队:Vishal Patel, Sahil Soni, Nishant Chauhan, Jainika Patel, Manasi Hathiwala, Kashyap Parshala, Zeb Saiyed
立面设计:Ensemble
机械工程:Ensemble
电力工程:WNeuron

BIM建筑网




















































