双层屋盖住宅位于4×17平方米的细长场地上。住宅靠近街道的一侧退进了5米,这部分用作住宅的前院,还在沿街处放置了一个饮料贩卖台。住户共有三名家庭成员,因此住宅的建筑面积不需要太大。为了满足客户希望更多地使用自然通风的需求,我们采用了双层的瓦楞板屋盖系统,在保证屋盖轻质的同时,也能提供出色的隔热性能。
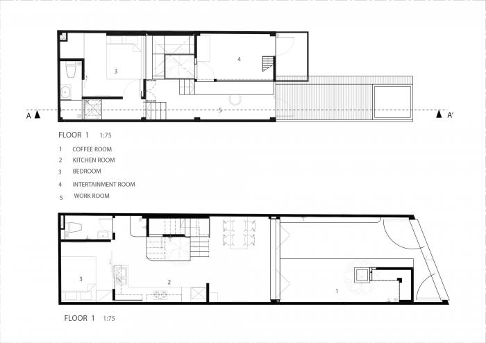
双层屋盖之间的缓冲间隙,大大降低了通过对流进入房屋的热空气。在住宅的首层,起居室的前门可以完全开启,在必要时作为饮料店的扩展空间。该层的内侧有一间卧室,供户主母亲偶尔到访时使用。
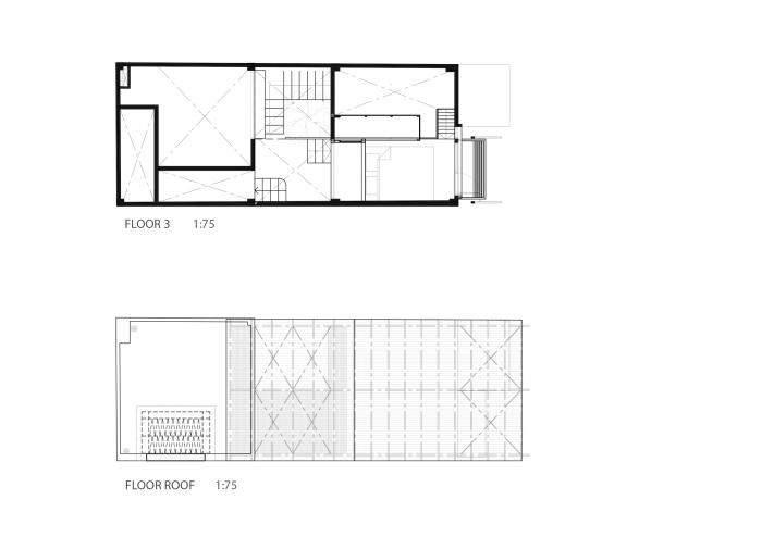
住宅的中央有一个贯穿三层的中庭,半透明屋盖为中庭提供了自然光照。中庭中栽有一棵杨桃树,楼梯围绕着树蜿蜒向上,这里是住宅的绿色核心。住宅二层的主卧室设有一个大飘窗,可望向中庭和书房。为了最大化居住空间,并给住户儿子提供个人娱乐空间,儿子卧室、书房和起居室被设置在了不同的楼层。这样的错层设计构建出了住宅正面不对齐的阳台,为住户的生活增添了更多的趣味。
我们采用的双层屋盖设计虽然简单,但成功营造了该住宅的微气候。事实证明,这样的设计能有效地隔热,为越南炎热的夏季提供了一丝清凉。
设计图纸
△ 二层平面图(上)&一层平面图(下)
△ 三层平面图(上)&屋顶平面图(下)
△ 剖面图AA'
项目信息
项目类型:独立住宅,别墅室内
项目地点:越南
建筑事务所:Khuon Studio
面积:62m²
摄影师:Thiết Vũ
设计团队:Huỳnh Anh Tuấn, Ngô Quang Hậu, Lê Đình Tân
微信公众号:xuebim
关注建筑行业BIM发展、研究建筑新技术,汇集建筑前沿信息!
← 微信扫一扫,关注我们+

BIM建筑网



































